New Homes » Kanto » Kanagawa Prefecture » Chigasaki
 
| | Chigasaki, Kanagawa Prefecture 神奈川県茅ヶ崎市 |
| JR Tokaido Line "Chigasaki" bus 12 Buntsutsumi Ayumi Sakashita 5 minutes JR東海道本線「茅ヶ崎」バス12分堤坂下歩5分 |
| ☆ There Benefits ☆ ◆ ◆ Land 45 square meters more than, Living 15 quires more ◆ A quiet residential area ◆ Cars 2 ~ Three parking possible ◆ Solar power system ☆特典あり☆◆◆土地45坪超、リビング15帖以上◆閑静な住宅街◆車2 ~ 3台駐車可能◆太陽光発電システム |
| A little out of the hustle and bustle of the city, Is it how to try to spend leisurely in a lush environment? , Car 2 ~ Three because parking possible, If you carry a little foot in the car, All right. Yang hit in the south road is good. Because there is a forest in front, It should blows cool breeze. Installed solar panels on the building. Economic prospects in the future power sales revenue. Indoor facilities, including the unit bus with bathroom dryer, Introduced a high-performance equipment of advanced. It will support a comfortable life. By all means please see once. There is a further privilege information by now if our website! Please search by all means in the "Efupi and Home". 街の雑踏を少し外れ、緑豊かな環境でのんびり過ごしてみるのは如何ですか?お買いものは近くにセブンイレブンが有るだけですが、車が2 ~ 3台駐車可能なので、車で少し足を運べば、大丈夫。南道路で陽当たりは良好。前面に森林があるので、涼しい風が吹き抜けるはずです。建物には太陽光パネルが設置。将来売電収入も見込め経済的。室内設備は浴室乾燥機付きユニットバスを始め、先進の高性能な設備を導入。快適な生活をサポートしてくれます。ぜひ一度ご覧ください。今なら弊社ホームページにてさらに特典情報がございます!是非「 エフピーアンドホーム 」で検索して下さい。 |
Features pickup 特徴ピックアップ | | Solar power system / Year Available / Parking three or more possible / Facing south / System kitchen / Bathroom Dryer / Yang per good / All room storage / LDK15 tatami mats or more / Around traffic fewer / Washbasin with shower / Face-to-face kitchen / Wide balcony / Toilet 2 places / Bathroom 1 tsubo or more / 2-story / Double-glazing / Otobasu / Warm water washing toilet seat / Underfloor Storage / The window in the bathroom / TV monitor interphone / Leafy residential area / Ventilation good / All living room flooring 太陽光発電システム /年内入居可 /駐車3台以上可 /南向き /システムキッチン /浴室乾燥機 /陽当り良好 /全居室収納 /LDK15畳以上 /周辺交通量少なめ /シャワー付洗面台 /対面式キッチン /ワイドバルコニー /トイレ2ヶ所 /浴室1坪以上 /2階建 /複層ガラス /オートバス /温水洗浄便座 /床下収納 /浴室に窓 /TVモニタ付インターホン /緑豊かな住宅地 /通風良好 /全居室フローリング | Price 価格 | | 23.8 million yen ~ 24,800,000 yen 2380万円 ~ 2480万円 | Floor plan 間取り | | 4LDK 4LDK | Units sold 販売戸数 | | 2 units 2戸 | Total units 総戸数 | | 5 units 5戸 | Land area 土地面積 | | 150.95 sq m ~ 151.37 sq m 150.95m2 ~ 151.37m2 | Building area 建物面積 | | 92.34 sq m 92.34m2 | Completion date 完成時期(築年月) | | October 2013 2013年10月 | Address 住所 | | Chigasaki, Kanagawa Prefecture Tsutsumi 3223-1 神奈川県茅ヶ崎市堤3223-1 | Traffic 交通 | | JR Tokaido Line "Chigasaki" bus 12 Buntsutsumi Ayumi Sakashita 5 minutes JR東海道本線「茅ヶ崎」バス12分堤坂下歩5分
| Related links 関連リンク | | [Related Sites of this company] 【この会社の関連サイト】 | Contact お問い合せ先 | | (Ltd.) Efupi and Home TEL: 0800-602-5956 [Toll free] mobile phone ・ Also available from PHS Caller ID is not notified Please contact the "saw SUUMO (Sumo)" If it does not lead, If the real estate company (株)エフピーアンドホームTEL:0800-602-5956【通話料無料】携帯電話・PHSからもご利用いただけます 発信者番号は通知されません 「SUUMO(スーモ)を見た」と問い合わせください つながらない方、不動産会社の方は
| Building coverage, floor area ratio 建ぺい率・容積率 | | Kenpei rate: 50% ・ 60%, Volume ratio: 100% 建ペい率:50%・60%、容積率:100% | Time residents 入居時期 | | Consultation 相談 | Land of the right form 土地の権利形態 | | Ownership 所有権 | Use district 用途地域 | | Unspecified 無指定 | Land category 地目 | | Residential land 宅地 | Company profile 会社概要 | | <Mediation> Governor of Kanagawa Prefecture (1) No. 027627 (Ltd.) Efupi and home Yubinbango253-0111 Kanagawa Prefecture dais gun samukawa Ichinomiya 7-2-6 <仲介>神奈川県知事(1)第027627号(株)エフピーアンドホーム〒253-0111 神奈川県高座郡寒川町一之宮7-2-6 |
Local appearance photo現地外観写真  4 Building ・ Local (10 May 2013) Shooting
4号棟・現地(2013年10月)撮影
Livingリビング  Indoor (10 May 2013) Shooting
室内(2013年10月)撮影
Kitchenキッチン  Indoor (10 May 2013) Shooting
室内(2013年10月)撮影
Floor plan間取り図  (3 Building), Price 24,800,000 yen, 4LDK, Land area 150.95 sq m , Building area 92.34 sq m
(3号棟)、価格2480万円、4LDK、土地面積150.95m2、建物面積92.34m2
Local appearance photo現地外観写真  Building 3 ・ Local (10 May 2013) Shooting
3号棟・現地(2013年10月)撮影
Livingリビング  Indoor (10 May 2013) Shooting
室内(2013年10月)撮影
Bathroom浴室  Indoor (10 May 2013) Shooting
室内(2013年10月)撮影
Non-living roomリビング以外の居室  Indoor (10 May 2013) Shooting
室内(2013年10月)撮影
Wash basin, toilet洗面台・洗面所  Indoor (10 May 2013) Shooting
室内(2013年10月)撮影
Toiletトイレ  Indoor (10 May 2013) Shooting
室内(2013年10月)撮影
Park公園  2174m to the Kanagawa Prefectural Chigasaki Satoyama Park
神奈川県立茅ヶ崎里山公園まで2174m
 The entire compartment Figure
全体区画図
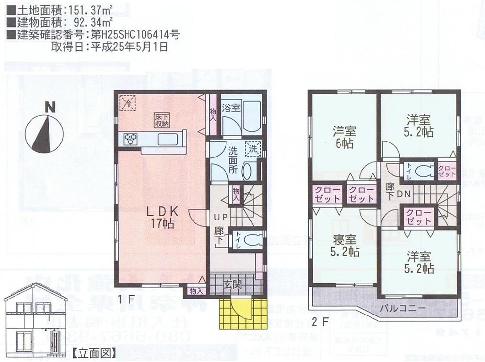
Floor plan間取り図  (4 Building), Price 23.8 million yen, 4LDK, Land area 151.37 sq m , Building area 92.34 sq m
(4号棟)、価格2380万円、4LDK、土地面積151.37m2、建物面積92.34m2
Non-living roomリビング以外の居室  Indoor (10 May 2013) Shooting
室内(2013年10月)撮影
 Indoor (10 May 2013) Shooting
室内(2013年10月)撮影
Location
|