New Homes » Kanto » Kanagawa Prefecture » Chigasaki
 
| | Chigasaki, Kanagawa Prefecture 神奈川県茅ヶ崎市 |
| JR Tokaido Line "Chigasaki" walk 8 minutes JR東海道本線「茅ヶ崎」歩8分 |
| ~ Casually build by arranging the wood to "modern" "natural" space Shiny elegant and beautiful detail high-class design ~ ~ さりげなく木を配して造る“モダン”に“ナチュラル”な空間 上品で美しいディティールの光るハイクラスなデザイン ~ |
| ■ JR "Chigasaki" station 8-minute walk! It started a large-scale shopping facilities and city hall, Close the facility is a comfortable area aligned with the living. ■ A garage 3LDK + 6 Pledge loft! Large external sink and happy outside shower to the sea the way home! ■ Distance of the bicycle about 10 minutes to the sea, It is a good location of the balance to be feel free to switch the ON and OFF. Please Visit the local combined with the surrounding environment! ■JR『茅ヶ崎』駅徒歩8分! 大型ショッピング施設や市役所をはじめ、暮らしに密接した施設が揃う快適なエリアです。■ガレージのある3LDK+6帖ロフト!海帰りにうれしい外シャワーと大きめ外シンク付!■海まで自転車約10分の距離は、ONとOFFを気軽に切り替えられるバランスの良い立地です。 周辺環境と合わせてぜひ現地をご覧ください! |
Features pickup 特徴ピックアップ | | 2 along the line more accessible / Yang per good / A quiet residential area / LDK15 tatami mats or more / Starting station / Shaping land / Shutter - garage / Toilet 2 places / Bathroom 1 tsubo or more / 2-story / loft / Underfloor Storage / The window in the bathroom / Atrium / Leafy residential area / Ventilation good / City gas / All rooms are two-sided lighting 2沿線以上利用可 /陽当り良好 /閑静な住宅地 /LDK15畳以上 /始発駅 /整形地 /シャッタ-車庫 /トイレ2ヶ所 /浴室1坪以上 /2階建 /ロフト /床下収納 /浴室に窓 /吹抜け /緑豊かな住宅地 /通風良好 /都市ガス /全室2面採光 | Price 価格 | | 34,800,000 yen 3480万円 | Floor plan 間取り | | 3LDK + S (storeroom) 3LDK+S(納戸) | Units sold 販売戸数 | | 1 units 1戸 | Land area 土地面積 | | 80.34 sq m (24.30 tsubo) (Registration) 80.34m2(24.30坪)(登記) | Building area 建物面積 | | 82.44 sq m (24.93 tsubo) (measured) 82.44m2(24.93坪)(実測) | Driveway burden-road 私道負担・道路 | | Nothing 無 | Completion date 完成時期(築年月) | | October 2013 2013年10月 | Address 住所 | | Chigasaki, Kanagawa Prefecture Jutsukenzaka 1 神奈川県茅ヶ崎市十間坂1 | Traffic 交通 | | JR Tokaido Line "Chigasaki" walk 8 minutes JR Sagami Line "Kitachigasaki" walk 19 minutes JR Sagami Line "Kagawa" walk 40 minutes JR東海道本線「茅ヶ崎」歩8分 JR相模線「北茅ヶ崎」歩19分 JR相模線「香川」歩40分
| Related links 関連リンク | | [Related Sites of this company] 【この会社の関連サイト】 | Contact お問い合せ先 | | TEL: 0800-603-0556 [Toll free] mobile phone ・ Also available from PHS Caller ID is not notified Please contact the "saw SUUMO (Sumo)" If it does not lead, If the real estate company TEL:0800-603-0556【通話料無料】携帯電話・PHSからもご利用いただけます 発信者番号は通知されません 「SUUMO(スーモ)を見た」と問い合わせください つながらない方、不動産会社の方は
| Building coverage, floor area ratio 建ぺい率・容積率 | | 60% ・ 200% 60%・200% | Time residents 入居時期 | | Consultation 相談 | Land of the right form 土地の権利形態 | | Ownership 所有権 | Structure and method of construction 構造・工法 | | Wooden 2-story 木造2階建 | Use district 用途地域 | | One dwelling 1種住居 | Overview and notices その他概要・特記事項 | | Facilities: Public Water Supply, This sewage, City gas, Parking: car space 設備:公営水道、本下水、都市ガス、駐車場:カースペース | Company profile 会社概要 | | <Mediation> Governor of Kanagawa Prefecture (7) No. 015286 (the Company), Kanagawa Prefecture Building Lots and Buildings Transaction Business Association (Corporation) metropolitan area real estate Fair Trade Council member THR housing distribution Group Co., Ltd., Toho House Shonan Yubinbango251-0025 Fujisawa, Kanagawa Prefecture Kugenumaishigami 1-1-14 Oka building first floor <仲介>神奈川県知事(7)第015286号(社)神奈川県宅地建物取引業協会会員 (公社)首都圏不動産公正取引協議会加盟THR住宅流通グループ(株)東宝ハウス湘南〒251-0025 神奈川県藤沢市鵠沼石上1-1-14 岡ビル1階 |
Livingリビング  Stairs of skeleton ・ Skylight ・ Hollowed out walls, etc., Design that take advantage of the space from playing the eyes. Also it makes you feel a warmth in the urban atmosphere by placing the tree in everywhere.
スケルトンの階段・天窓・くり抜かれた壁など、目線を遊ばせ空間をうまく利用したデザイン。随所に木を配することで都会的な雰囲気の中にも温もりを感じさせてくれます。
 Stairs of the skeleton leading to the 6 quires loft.
6帖のロフトへ続くスケルトンの階段。
Other introspectionその他内観  6 Pledge loft.
6帖ロフト。
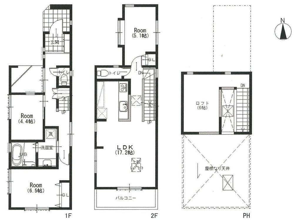
Floor plan間取り図  34,800,000 yen, 3LDK + S (storeroom), Land area 80.34 sq m , Building area 82.44 sq m floor plan.
3480万円、3LDK+S(納戸)、土地面積80.34m2、建物面積82.44m2 間取り図。
Local appearance photo現地外観写真  Classic elegant appearance to become the post. There is a garage and outside shower in the back of the parking lot.
クラシックなポストの似合う上品な外観。 駐車場の奥にガレージと外シャワーがあります。
Livingリビング  It will produce a space in which wood paste of the ceiling is a calm.
木貼りの天井が落ち着きのある空間を演出します。
Bathroom浴室  Spacious bathroom of 1 pyeong type.
1坪タイプのゆったりバスルーム。
Kitchenキッチン  kitchen.
キッチン。
Non-living roomリビング以外の居室  Western style room.
洋室。
Wash basin, toilet洗面台・洗面所  Tile pattern of wallpaper is pretty washroom.
タイル柄の壁紙が可愛らしい洗面所。
Local photos, including front road前面道路含む現地写真  It is a quiet residential area.
閑静な住宅街です。
Balconyバルコニー  balcony.
バルコニー。
Station駅  640m to Chigasaki Station
茅ヶ崎駅まで640m
Local appearance photo現地外観写真  Local and its chic mansion lined.
お洒落な邸宅が並ぶ現地。
Livingリビング  17.2 Pledge living.
17.2帖リビング。
Kitchenキッチン  Kitchen with a clean sense of the white tones.
白を基調とした清潔感のあるキッチン。
Supermarketスーパー  Ito-Yokado Chigasaki 600m to the store
イトーヨーカドー茅ヶ崎店まで600m
Local appearance photo現地外観写真  Lovely post.
可愛らしいポスト。
Livingリビング  Open living gradient ceiling.
勾配天井が開放的なリビング。
Junior high school中学校  Chigasaki until municipal Umeda Junior High School 500m
茅ヶ崎市立梅田中学校まで500m
Livingリビング  living.
リビング。
Location
|