New Homes » Kanto » Kanagawa Prefecture » Fujisawa
 
| | Fujisawa, Kanagawa Prefecture 神奈川県藤沢市 |
| JR Tokaido Line "Fujisawa" walk 5 minutes JR東海道本線「藤沢」歩5分 |
| It is a good location of "Fujisawa Station" a 5-minute walk. For the south side of the road, All building day is good. Spacious living room and a variety of equipment is recommended. 「藤沢駅」徒歩5分の好立地です。南側が道路のため、全棟日当たり良好です。多彩な設備と広々リビングはおすすめです。 |
| ※ In the case of our alliance mortgage available, The entire period up to ▲ 1.7% preferential treatment! ! ※ The application, conditions ・ There is a review. ※ Weekday ・ Saturday ・ We will guide regardless of holiday. ※ We can come to pick you up at your car! ! ※弊社の提携住宅ローン利用の場合、全期間最大▲1.7%優遇!!※適用には、条件・審査がございます。※平日・土日・祝日問わずご案内致します。※お車でお迎えに伺います!! |
Features pickup 特徴ピックアップ | | Vibration Control ・ Seismic isolation ・ Earthquake resistant / 2 along the line more accessible / LDK20 tatami mats or more / Super close / It is close to the city / Facing south / System kitchen / Bathroom Dryer / Yang per good / All room storage / Flat to the station / Corner lot / Starting station / Shaping land / Washbasin with shower / Face-to-face kitchen / Security enhancement / 3 face lighting / Barrier-free / Toilet 2 places / Natural materials / Zenshitsuminami direction / Otobasu / Warm water washing toilet seat / TV with bathroom / Underfloor Storage / The window in the bathroom / TV monitor interphone / High-function toilet / Urban neighborhood / Ventilation good / All living room flooring / Dish washing dryer / Walk-in closet / Water filter / Three-story or more / Living stairs / City gas / Storeroom / All rooms are two-sided lighting / Maintained sidewalk 制震・免震・耐震 /2沿線以上利用可 /LDK20畳以上 /スーパーが近い /市街地が近い /南向き /システムキッチン /浴室乾燥機 /陽当り良好 /全居室収納 /駅まで平坦 /角地 /始発駅 /整形地 /シャワー付洗面台 /対面式キッチン /セキュリティ充実 /3面採光 /バリアフリー /トイレ2ヶ所 /自然素材 /全室南向き /オートバス /温水洗浄便座 /TV付浴室 /床下収納 /浴室に窓 /TVモニタ付インターホン /高機能トイレ /都市近郊 /通風良好 /全居室フローリング /食器洗乾燥機 /ウォークインクロゼット /浄水器 /3階建以上 /リビング階段 /都市ガス /納戸 /全室2面採光 /整備された歩道 | Price 価格 | | 31,800,000 yen ~ 38,800,000 yen 3180万円 ~ 3880万円 | Floor plan 間取り | | 3LDK + S (storeroom) 3LDK+S(納戸) | Units sold 販売戸数 | | 3 units 3戸 | Total units 総戸数 | | 5 units 5戸 | Land area 土地面積 | | 55.45 sq m 55.45m2 | Building area 建物面積 | | 114.55 sq m 114.55m2 | Completion date 完成時期(築年月) | | 2013 late March 2013年3月下旬 | Address 住所 | | Fujisawa Fujisawa, Kanagawa Prefecture 4-545-28 神奈川県藤沢市藤沢4-545-28 | Traffic 交通 | | JR Tokaido Line "Fujisawa" walk 5 minutes Enoshima Odakyu "Fujisawa Honmachi" walk 15 minutes Enoshima Electric Railway line "Ishigami" walk 17 minutes JR東海道本線「藤沢」歩5分 小田急江ノ島線「藤沢本町」歩15分 江ノ島電鉄線「石上」歩17分
| Related links 関連リンク | | [Related Sites of this company] 【この会社の関連サイト】 | Person in charge 担当者より | | Rep Kimura 担当者木村 | Contact お問い合せ先 | | TEL: 0800-603-7122 [Toll free] mobile phone ・ Also available from PHS Caller ID is not notified Please contact the "saw SUUMO (Sumo)" If it does not lead, If the real estate company TEL:0800-603-7122【通話料無料】携帯電話・PHSからもご利用いただけます 発信者番号は通知されません 「SUUMO(スーモ)を見た」と問い合わせください つながらない方、不動産会社の方は
| Time residents 入居時期 | | Consultation 相談 | Land of the right form 土地の権利形態 | | Ownership 所有権 | Use district 用途地域 | | Commerce 商業 | Overview and notices その他概要・特記事項 | | Contact: Kimura, Building confirmation number: 03413 担当者:木村、建築確認番号:03413 | Company profile 会社概要 | | <Mediation> Minister of Land, Infrastructure and Transport (2) the first 007,684 No. + HOUSE Yokohama Office (Ltd.) propoxycarbonyl life Yubinbango230-0062 Kanagawa Prefecture Tsurumi-ku, Yokohama City Toyooka-cho, 8-24 first floor <仲介>国土交通大臣(2)第007684号+HOUSE横浜Office(株)プロポライフ〒230-0062 神奈川県横浜市鶴見区豊岡町8-24 1階 |
Livingリビング  Living is the example of construction
リビング施工例です
Kitchenキッチン  Kitchen construction cases
キッチン施工例です
Bathroom浴室  Bathing is the example of construction
お風呂施工例です
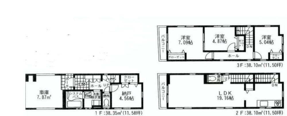
Floor plan間取り図  (4 Building), Price 31,800,000 yen, 3LDK+S, Land area 55.45 sq m , Building area 114.55 sq m
(4号棟)、価格3180万円、3LDK+S、土地面積55.45m2、建物面積114.55m2
Local photos, including front road前面道路含む現地写真  Peripheral appearance is a picture
周辺外観写真です
Otherその他  It will layout
配置図になります
Location
|