|
|
Fujisawa, Kanagawa Prefecture
神奈川県藤沢市
|
|
Enoshima Odakyu "Shonandai" walk 14 minutes
小田急江ノ島線「湘南台」歩14分
|
|
At any time you can be site tours. (It is okay weeknight) currently, Because of under construction, You can see a complete other site.
いつでも現場見学が可能です。(平日の夜でも大丈夫です)現在、工事中の為、他の完成現場をご覧になることができます。
|
|
● parking two Allowed ● All rooms are two-sided lighting ● design house performance with evaluation ● wash basin with shower ● corresponds to the south-facing ● Disabled ● Flat 35S ● bathroom dryer ● LDK15 mats and more ● toilet two places ● 2-story ●
●駐車2台可●全室2面採光●設計住宅性能評価付●シャワー付洗面台●南向き●バリアフリー●フラット35Sに対応●浴室乾燥機●LDK15畳以上●トイレ2ヶ所●2階建●温水洗浄●始発駅●2沿線以上利用可●浴室に窓●対面式キッチン
|
Features pickup 特徴ピックアップ | | Design house performance with evaluation / Corresponding to the flat-35S / Parking two Allowed / 2 along the line more accessible / Facing south / System kitchen / Bathroom Dryer / LDK15 tatami mats or more / Starting station / Shaping land / Washbasin with shower / Face-to-face kitchen / Barrier-free / Toilet 2 places / 2-story / Warm water washing toilet seat / Underfloor Storage / The window in the bathroom / City gas / All rooms are two-sided lighting / Maintained sidewalk 設計住宅性能評価付 /フラット35Sに対応 /駐車2台可 /2沿線以上利用可 /南向き /システムキッチン /浴室乾燥機 /LDK15畳以上 /始発駅 /整形地 /シャワー付洗面台 /対面式キッチン /バリアフリー /トイレ2ヶ所 /2階建 /温水洗浄便座 /床下収納 /浴室に窓 /都市ガス /全室2面採光 /整備された歩道 |
Price 価格 | | 39,900,000 yen 3990万円 |
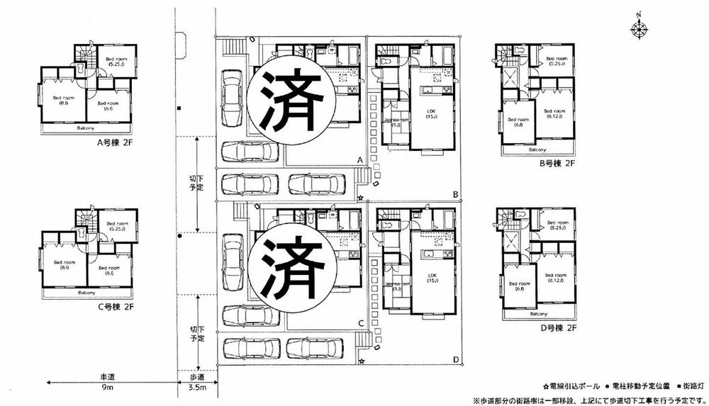
Floor plan 間取り | | 4LDK 4LDK |
Units sold 販売戸数 | | 1 units 1戸 |
Total units 総戸数 | | 4 units 4戸 |
Land area 土地面積 | | 136.7 sq m 136.7m2 |
Building area 建物面積 | | 96.25 sq m 96.25m2 |
Driveway burden-road 私道負担・道路 | | Nothing, West 16m width 無、西16m幅 |
Completion date 完成時期(築年月) | | January 2014 2014年1月 |
Address 住所 | | Fujisawa, Kanagawa Prefecture Shimotsuchidana 神奈川県藤沢市下土棚 |
Traffic 交通 | | Enoshima Odakyu "Shonandai" walk 14 minutes Blue Line "Shonandai" walk 14 minutes Sagami Railway Izumino Line "Shonandai" walk 14 minutes 小田急江ノ島線「湘南台」歩14分 ブルーライン「湘南台」歩14分 相鉄いずみ野線「湘南台」歩14分
|
Related links 関連リンク | | [Related Sites of this company] 【この会社の関連サイト】 |
Person in charge 担当者より | | Person in charge of Yasuhiko Ogaki 担当者大柿靖彦 |
Contact お問い合せ先 | | (Ltd.) Jokhang builders TEL: 0800-808-9984 [Toll free] mobile phone ・ Also available from PHS Caller ID is not notified Please contact the "saw SUUMO (Sumo)" If it does not lead, If the real estate company (株)大昭工務店TEL:0800-808-9984【通話料無料】携帯電話・PHSからもご利用いただけます 発信者番号は通知されません 「SUUMO(スーモ)を見た」と問い合わせください つながらない方、不動産会社の方は
|
Building coverage, floor area ratio 建ぺい率・容積率 | | Fifty percent ・ 80% 50%・80% |
Time residents 入居時期 | | January 2014 2014年1月 |
Land of the right form 土地の権利形態 | | Ownership 所有権 |
Structure and method of construction 構造・工法 | | Wooden 2-story 木造2階建 |
Use district 用途地域 | | Two low-rise 2種低層 |
Overview and notices その他概要・特記事項 | | Contact: Yasuhiko Ogaki, Facilities: Public Water Supply, This sewage, City gas, Building confirmation number: HPA-13-04733-1, Parking: car space 担当者:大柿靖彦、設備:公営水道、本下水、都市ガス、建築確認番号:HPA-13-04733-1、駐車場:カースペース |
Company profile 会社概要 | | <Mediation> Governor of Kanagawa Prefecture (4) No. 021783 (Ltd.) Jokhang builders Yubinbango251-0037 Fujisawa, Kanagawa Prefecture Kugenumakaigan 7-4-4 <仲介>神奈川県知事(4)第021783号(株)大昭工務店〒251-0037 神奈川県藤沢市鵠沼海岸7-4-4 |