|
|
Fujisawa, Kanagawa Prefecture
神奈川県藤沢市
|
|
God 奈中 bus "Miyahara center" walk 3 minutes
神奈中バス「宮原中央」歩3分
|
|
Land 50 square meters or more, LDK18 tatami mats or more, A quiet residential area, garden, Leafy residential area, Development subdivision in
土地50坪以上、LDK18畳以上、閑静な住宅地、庭、緑豊かな住宅地、開発分譲地内
|
|
There is also a land area 50 square meters newly built single-family is 27,800,000 yen It is your garden with a large 4LDK.
土地面積50坪もある新築戸建が2780万円 大きな4LDKでお庭付きです。
|
Features pickup 特徴ピックアップ | | Land 50 square meters or more / LDK18 tatami mats or more / A quiet residential area / garden / Leafy residential area / Development subdivision in 土地50坪以上 /LDK18畳以上 /閑静な住宅地 /庭 /緑豊かな住宅地 /開発分譲地内 |
Price 価格 | | 26,800,000 yen 2680万円 |
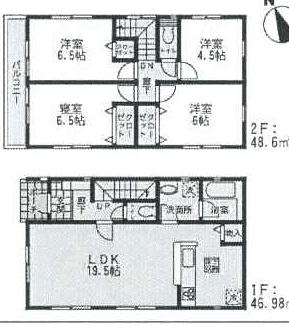
Floor plan 間取り | | 4LDK 4LDK |
Units sold 販売戸数 | | 1 units 1戸 |
Land area 土地面積 | | 166.32 sq m (registration) 166.32m2(登記) |
Building area 建物面積 | | 95.68 sq m (registration) 95.68m2(登記) |
Driveway burden-road 私道負担・道路 | | Nothing 無 |
Completion date 完成時期(築年月) | | November 2013 2013年11月 |
Address 住所 | | Fujisawa, Kanagawa Prefecture Miyahara 神奈川県藤沢市宮原 |
Traffic 交通 | | God 奈中 bus "Miyahara center" walk 3 minutes 神奈中バス「宮原中央」歩3分 |
Person in charge 担当者より | | Personnel Nobuaki Yamazaki Age: 40 Daigyokai Experience: 12 years settled in five years Shonan area (although a little out). I will do my best so that can help comfortable life! We are very happy !! If you can think that it was good the Yamazaki of Meiji 担当者山崎 伸明年齢:40代業界経験:5年湘南エリア(少し外れていますが)に居を構えて12年。快適な暮らしのお手伝いができるよう頑張ります!明治の山崎で良かったと思って頂けたら大変満足です!! |
Contact お問い合せ先 | | TEL: 0800-603-0244 [Toll free] mobile phone ・ Also available from PHS Caller ID is not notified Please contact the "saw SUUMO (Sumo)" If it does not lead, If the real estate company TEL:0800-603-0244【通話料無料】携帯電話・PHSからもご利用いただけます 発信者番号は通知されません 「SUUMO(スーモ)を見た」と問い合わせください つながらない方、不動産会社の方は
|
Time residents 入居時期 | | Consultation 相談 |
Land of the right form 土地の権利形態 | | Ownership 所有権 |
Structure and method of construction 構造・工法 | | Wooden 2-story 木造2階建 |
Overview and notices その他概要・特記事項 | | Contact: Nobuaki Yamazaki, Building confirmation number: 13-01609, Parking: car space 担当者:山崎 伸明、建築確認番号:13-01609、駐車場:カースペース |
Company profile 会社概要 | | <Mediation> Governor of Kanagawa Prefecture (10) No. 009580 (one company) Property distribution management Association (Corporation) metropolitan area real estate Fair Trade Council member Meiji Estate Co., Ltd. Shonan shop Yubinbango251-0052 Fujisawa Fujisawa, Kanagawa Prefecture 559-19 <仲介>神奈川県知事(10)第009580号(一社)不動産流通経営協会会員 (公社)首都圏不動産公正取引協議会加盟明治地所(株)湘南店〒251-0052 神奈川県藤沢市藤沢559-19 |