New Homes » Kanto » Kanagawa Prefecture » Fujisawa
 
| | Fujisawa, Kanagawa Prefecture 神奈川県藤沢市 |
| Odakyu Enoshima "Chogo" bus 18 minutes Miyahara center walk 3 minutes 小田急江ノ島線「長後」バス18分宮原中央歩3分 |
| Newly built one detached! The remaining 4 buildings! New development subdivision! All building site 45 square meters or more! The building is imposing complete. Contact car space three Allowed ahead of us! 新築一戸建!残り4棟!新規開発分譲地!全棟敷地45坪以上!建物堂々完成です。お問い合わせはお早目にカースペース3台可! |
| Newly built one detached! The remaining 4 buildings! New development subdivision! All building site 45 square meters or more! The building is imposing complete. Contact car space three Allowed ahead of us! 新築一戸建!残り4棟!新規開発分譲地!全棟敷地45坪以上!建物堂々完成です。お問い合わせはお早目にカースペース3台可! |
Features pickup 特徴ピックアップ | | Pre-ground survey / Year Available / Parking three or more possible / LDK18 tatami mats or more / System kitchen / Bathroom Dryer / Yang per good / All room storage / A quiet residential area / Around traffic fewer / Japanese-style room / Shaping land / Idyll / garden / Washbasin with shower / Face-to-face kitchen / Wide balcony / Toilet 2 places / Bathroom 1 tsubo or more / 2-story / South balcony / Underfloor Storage / The window in the bathroom / TV monitor interphone / Leafy residential area / Ventilation good / All living room flooring / Water filter / City gas / Storeroom / A large gap between the neighboring house / Flat terrain / Development subdivision in 地盤調査済 /年内入居可 /駐車3台以上可 /LDK18畳以上 /システムキッチン /浴室乾燥機 /陽当り良好 /全居室収納 /閑静な住宅地 /周辺交通量少なめ /和室 /整形地 /田園風景 /庭 /シャワー付洗面台 /対面式キッチン /ワイドバルコニー /トイレ2ヶ所 /浴室1坪以上 /2階建 /南面バルコニー /床下収納 /浴室に窓 /TVモニタ付インターホン /緑豊かな住宅地 /通風良好 /全居室フローリング /浄水器 /都市ガス /納戸 /隣家との間隔が大きい /平坦地 /開発分譲地内 | Price 価格 | | 26,800,000 yen ~ 30,800,000 yen 2680万円 ~ 3080万円 | Floor plan 間取り | | 4LDK ~ 4LDK + S (storeroom) 4LDK ~ 4LDK+S(納戸) | Units sold 販売戸数 | | 4 units 4戸 | Total units 総戸数 | | 6 units 6戸 | Land area 土地面積 | | 150.28 sq m ~ 150.83 sq m (45.45 tsubo ~ 45.62 tsubo) (Registration) 150.28m2 ~ 150.83m2(45.45坪 ~ 45.62坪)(登記) | Building area 建物面積 | | 87.47 sq m ~ 92.34 sq m (26.45 tsubo ~ 27.93 tsubo) (Registration) 87.47m2 ~ 92.34m2(26.45坪 ~ 27.93坪)(登記) | Completion date 完成時期(築年月) | | 2013 in late November 2013年11月下旬 | Address 住所 | | Miyahara Fujisawa, Kanagawa Prefecture 1503 神奈川県藤沢市宮原1503 | Traffic 交通 | | Odakyu Enoshima "Chogo" bus 18 minutes Miyahara center walk 3 minutes 小田急江ノ島線「長後」バス18分宮原中央歩3分
| Person in charge 担当者より | | The person in charge Inoue Hee 予門 Age: 30 Daigyokai experience: I was born and raised in the 10 years Kugenumakaigan. Also I think that if you can tell honestly including Shonan good place and a bad place of. seriously, We are honestly to help customers. First, please feel free to contact. 担当者井上 喜予門年齢:30代業界経験:10年鵠沼海岸で生まれ育ちました。 湘南の良い所と悪い所も含め正直にお伝え出来ればと思っています。 真剣に、正直にお客様のお手伝いをさせて頂いております。 まずはお気軽にご連絡下さい。 | Contact お問い合せ先 | | TEL: 0800-603-0246 [Toll free] mobile phone ・ Also available from PHS Caller ID is not notified Please contact the "saw SUUMO (Sumo)" If it does not lead, If the real estate company TEL:0800-603-0246【通話料無料】携帯電話・PHSからもご利用いただけます 発信者番号は通知されません 「SUUMO(スーモ)を見た」と問い合わせください つながらない方、不動産会社の方は
| Building coverage, floor area ratio 建ぺい率・容積率 | | Kenpei rate: 50%, Volume ratio: 80% 建ペい率:50%、容積率:80% | Time residents 入居時期 | | Consultation 相談 | Land of the right form 土地の権利形態 | | Ownership 所有権 | Structure and method of construction 構造・工法 | | Wooden 2-story 木造2階建 | Use district 用途地域 | | One dwelling 1種住居 | Land category 地目 | | Residential land 宅地 | Other limitations その他制限事項 | | Regulations have by the Landscape Act, Quasi-fire zones 景観法による規制有、準防火地域 | Overview and notices その他概要・特記事項 | | Contact: Inoue Hee 予門, Building confirmation number: 13UDI1W Ken 01609 No. other 担当者:井上 喜予門、建築確認番号:13UDI1W建01609号他 | Company profile 会社概要 | | <Mediation> Governor of Kanagawa Prefecture (10) No. 009580 (one company) Property distribution management Association (Corporation) metropolitan area real estate Fair Trade Council member Meiji Estate Co., housing Plaza store Yubinbango253-0044 Chigasaki, Kanagawa Prefecture Shinsakae-cho 8-7 <仲介>神奈川県知事(10)第009580号(一社)不動産流通経営協会会員 (公社)首都圏不動産公正取引協議会加盟明治地所(株)ハウジングプラザ店〒253-0044 神奈川県茅ヶ崎市新栄町8-7 |
Kitchenキッチン  Local (12 May 2013) Shooting
現地(2013年12月)撮影
Local photos, including front road前面道路含む現地写真  Local (11 May 2013) Shooting
現地(2013年11月)撮影
Livingリビング  Local (12 May 2013) Shooting
現地(2013年12月)撮影
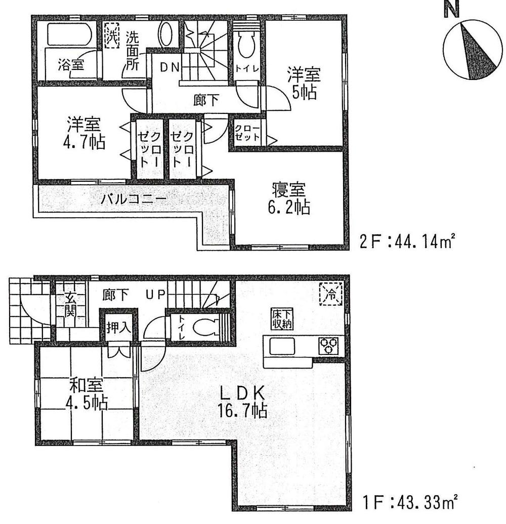
Floor plan間取り図  ((1) Building), Price 32,300,000 yen, 4LDK, Land area 150.52 sq m , Building area 87.47 sq m
((1)号棟)、価格3230万円、4LDK、土地面積150.52m2、建物面積87.47m2
Local appearance photo現地外観写真  Local (11 May 2013) Shooting
現地(2013年11月)撮影
Livingリビング  Local (12 May 2013) Shooting
現地(2013年12月)撮影
Bathroom浴室  Local (12 May 2013) Shooting
現地(2013年12月)撮影
Non-living roomリビング以外の居室  Local (12 May 2013) Shooting
現地(2013年12月)撮影
Entrance玄関  Local (12 May 2013) Shooting
現地(2013年12月)撮影
Wash basin, toilet洗面台・洗面所  Local (12 May 2013) Shooting
現地(2013年12月)撮影
Receipt収納  Indoor (12 May 2013) Shooting
室内(2013年12月)撮影
Toiletトイレ  Local (12 May 2013) Shooting
現地(2013年12月)撮影
Local photos, including front road前面道路含む現地写真  Local (12 May 2013) Shooting
現地(2013年12月)撮影
Balconyバルコニー  Local (12 May 2013) Shooting
現地(2013年12月)撮影
Otherその他  layout drawing
配置図
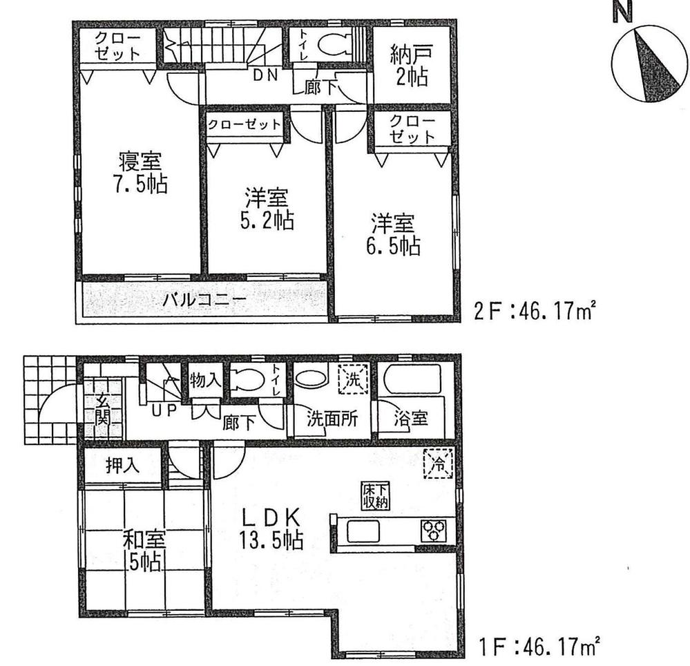
Floor plan間取り図  ((2) Building), Price 30,800,000 yen, 4LDK+S, Land area 150.28 sq m , Building area 92.34 sq m
((2)号棟)、価格3080万円、4LDK+S、土地面積150.28m2、建物面積92.34m2
Local appearance photo現地外観写真  Local (12 May 2013) Shooting
現地(2013年12月)撮影
Livingリビング  Local (12 May 2013) Shooting
現地(2013年12月)撮影
Non-living roomリビング以外の居室  Local (12 May 2013) Shooting
現地(2013年12月)撮影
Floor plan間取り図  ((3) Building), Price 27,800,000 yen, 4LDK, Land area 166.32 sq m , Building area 95.58 sq m
((3)号棟)、価格2780万円、4LDK、土地面積166.32m2、建物面積95.58m2
Livingリビング  Indoor (12 May 2013) Shooting
室内(2013年12月)撮影
Location
|