|
|
Fujisawa, Kanagawa Prefecture
神奈川県藤沢市
|
|
Enoshima Odakyu "good deed" bus 11 minutes bus stop walk 2 minutes
小田急江ノ島線「善行」バス11分バス停歩2分
|
|
Designer house. Convenient storage in bright W-click with rosette loft in the living room atrium. 2 car parking Allowed car. City gas this
デザイナーズ住宅。リビング吹抜けで明るくWクロゼットロフト付で収納便利。車2台分駐車可。都市ガス本
|
|
Piece nearest elementary school about 670m, Oba junior high school about 485m, Oba civic center about 1000m, hack
駒寄小学校約670m、大庭中学校約485m、大庭市民センター約1000m、ハック
|
Features pickup 特徴ピックアップ | | Facing south / System kitchen / Bathroom Dryer / LDK15 tatami mats or more / Face-to-face kitchen / 2-story / Warm water washing toilet seat / Underfloor Storage / TV monitor interphone / Walk-in closet / City gas 南向き /システムキッチン /浴室乾燥機 /LDK15畳以上 /対面式キッチン /2階建 /温水洗浄便座 /床下収納 /TVモニタ付インターホン /ウォークインクロゼット /都市ガス |
Price 価格 | | 34,480,000 yen 3448万円 |
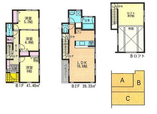
Floor plan 間取り | | 3LDK + S (storeroom) 3LDK+S(納戸) |
Units sold 販売戸数 | | 1 units 1戸 |
Land area 土地面積 | | 93.55 sq m (registration) 93.55m2(登記) |
Building area 建物面積 | | 80.73 sq m 80.73m2 |
Driveway burden-road 私道負担・道路 | | Nothing, West 5.9m width 無、西5.9m幅 |
Completion date 完成時期(築年月) | | November 2013 2013年11月 |
Address 住所 | | Fujisawa, Kanagawa Prefecture Oba 神奈川県藤沢市大庭 |
Traffic 交通 | | Enoshima Odakyu "good deed" bus 11 minutes bus stop walk 2 minutes 小田急江ノ島線「善行」バス11分バス停歩2分
|
Related links 関連リンク | | [Related Sites of this company] 【この会社の関連サイト】 |
Contact お問い合せ先 | | TEL: 0800-603-3667 [Toll free] mobile phone ・ Also available from PHS Caller ID is not notified Please contact the "saw SUUMO (Sumo)" If it does not lead, If the real estate company TEL:0800-603-3667【通話料無料】携帯電話・PHSからもご利用いただけます 発信者番号は通知されません 「SUUMO(スーモ)を見た」と問い合わせください つながらない方、不動産会社の方は
|
Building coverage, floor area ratio 建ぺい率・容積率 | | 60% ・ 200% 60%・200% |
Time residents 入居時期 | | Consultation 相談 |
Land of the right form 土地の権利形態 | | Ownership 所有権 |
Structure and method of construction 構造・工法 | | Wooden 2-story 木造2階建 |
Use district 用途地域 | | Quasi-residence 準住居 |
Other limitations その他制限事項 | | Organize Code: 3658-1, 整理コード:3658-1、 |
Overview and notices その他概要・特記事項 | | Facilities: This sewage, City gas, Building confirmation number: Architecture confirmed 設備:本下水、都市ガス、建築確認番号:建築確認済 |
Company profile 会社概要 | | <Mediation> Kanagawa Governor (2) No. 025536 (the company), Kanagawa Prefecture Building Lots and Buildings Transaction Business Association (Corporation) metropolitan area real estate Fair Trade Council member Century 21 brokerage Plaza Co., Ltd. Yubinbango252-0804 Fujisawa, Kanagawa Prefecture Shonandai 1-4-2 Pinosubiru fifth floor <仲介>神奈川県知事(2)第025536号(社)神奈川県宅地建物取引業協会会員 (公社)首都圏不動産公正取引協議会加盟センチュリー21仲介プラザ(株)〒252-0804 神奈川県藤沢市湘南台1-4-2 ピノスビル5階 |