New Homes » Kanto » Kanagawa Prefecture » Fujisawa
 
| | Fujisawa, Kanagawa Prefecture 神奈川県藤沢市 |
| Enoshima Odakyu "Katase Enoshima" walk 5 minutes 小田急江ノ島線「片瀬江ノ島」歩5分 |
| Construction housing performance with evaluation, Design house performance with evaluation, Corresponding to the flat-35S, Immediate Available, Facing south, System kitchen, Bathroom Dryer, Yang per good, All room storage, Flat to the station, Siemens south road 建設住宅性能評価付、設計住宅性能評価付、フラット35Sに対応、即入居可、南向き、システムキッチン、浴室乾燥機、陽当り良好、全居室収納、駅まで平坦、南側道路面す |
| ■ Katase Enoshima Station 5-minute walk ■ Facing the southwest road ■ The first floor living room ・ Water around, 2 Kaikyoshitsu ■ A quiet residential area ■片瀬江ノ島駅徒歩5分■南西道路に面する■1階リビング・水廻り、2階居室■閑静な住宅街 |
Features pickup 特徴ピックアップ | | Construction housing performance with evaluation / Design house performance with evaluation / Corresponding to the flat-35S / Immediate Available / Facing south / System kitchen / Bathroom Dryer / Yang per good / All room storage / Flat to the station / Siemens south road / A quiet residential area / Shaping land / Toilet 2 places / 2-story / The window in the bathroom / Ventilation good / All living room flooring / Flat terrain 建設住宅性能評価付 /設計住宅性能評価付 /フラット35Sに対応 /即入居可 /南向き /システムキッチン /浴室乾燥機 /陽当り良好 /全居室収納 /駅まで平坦 /南側道路面す /閑静な住宅地 /整形地 /トイレ2ヶ所 /2階建 /浴室に窓 /通風良好 /全居室フローリング /平坦地 | Price 価格 | | 34,500,000 yen ~ 35,300,000 yen 3450万円 ~ 3530万円 | Floor plan 間取り | | 3LDK 3LDK | Units sold 販売戸数 | | 2 units 2戸 | Total units 総戸数 | | 2 units 2戸 | Land area 土地面積 | | 93.62 sq m ~ 94.22 sq m (28.31 tsubo ~ 28.50 tsubo) (Registration) 93.62m2 ~ 94.22m2(28.31坪 ~ 28.50坪)(登記) | Building area 建物面積 | | 72.86 sq m ~ 75.35 sq m (22.04 tsubo ~ 22.79 tsubo) (measured) 72.86m2 ~ 75.35m2(22.04坪 ~ 22.79坪)(実測) | Completion date 完成時期(築年月) | | 2013 end of October 2013年10月末 | Address 住所 | | Fujisawa, Kanagawa Prefecture Katasekaigan 3-13-11 神奈川県藤沢市片瀬海岸3-13-11 | Traffic 交通 | | Enoshima Odakyu "Katase Enoshima" walk 5 minutes 小田急江ノ島線「片瀬江ノ島」歩5分
| Person in charge 担当者より | | Person in charge of real-estate and building real estate consulting skills registrant Nagai Takashioya Age: 30 Daigyokai experience: Buy 10 years ・ sale ・ Relocation ・ Tax ・ Inheritance anything, please contact us. It was our H24_nendokamihankikeiyakusu NO.1 Thanks. I was really allowed to study. Also devote more and more so that it does not live up to this name now. 担当者宅建不動産コンサルティング技能登録者永井 孝親年齢:30代業界経験:10年購入・売却・住み替え・税務・相続何でもご相談ください。おかげさまで当社H24年度上半期契約数NO.1でした。本当に勉強させていただきました。これからもこの名に恥じないようにますます精進します。 | Contact お問い合せ先 | | TEL: 0800-603-0246 [Toll free] mobile phone ・ Also available from PHS Caller ID is not notified Please contact the "saw SUUMO (Sumo)" If it does not lead, If the real estate company TEL:0800-603-0246【通話料無料】携帯電話・PHSからもご利用いただけます 発信者番号は通知されません 「SUUMO(スーモ)を見た」と問い合わせください つながらない方、不動産会社の方は
| Time residents 入居時期 | | Immediate available 即入居可 | Land of the right form 土地の権利形態 | | Ownership 所有権 | Use district 用途地域 | | One low-rise 1種低層 | Other limitations その他制限事項 | | Regulations have by the Landscape Act 景観法による規制有 | Overview and notices その他概要・特記事項 | | The person in charge: Nagai Takashioya 担当者:永井 孝親 | Company profile 会社概要 | | <Mediation> Governor of Kanagawa Prefecture (10) No. 009580 (one company) Property distribution management Association (Corporation) metropolitan area real estate Fair Trade Council member Meiji Estate Co., housing Plaza store Yubinbango253-0044 Chigasaki, Kanagawa Prefecture Shinsakae-cho 8-7 <仲介>神奈川県知事(10)第009580号(一社)不動産流通経営協会会員 (公社)首都圏不動産公正取引協議会加盟明治地所(株)ハウジングプラザ店〒253-0044 神奈川県茅ヶ崎市新栄町8-7 |
Local appearance photo現地外観写真  Local (11 May 2013) Shooting
現地(2013年11月)撮影
 Local (11 May 2013) Shooting
現地(2013年11月)撮影
Local photos, including front road前面道路含む現地写真  Local (11 May 2013) Shooting
現地(2013年11月)撮影
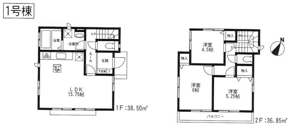
Floor plan間取り図  (1 Building), Price 37,300,000 yen, 3LDK, Land area 94.22 sq m , Building area 75.35 sq m
(1号棟)、価格3730万円、3LDK、土地面積94.22m2、建物面積75.35m2
Local appearance photo現地外観写真  Local (11 May 2013) Shooting
現地(2013年11月)撮影
Livingリビング  Indoor (11 May 2013) Shooting
室内(2013年11月)撮影
Bathroom浴室  Indoor (11 May 2013) Shooting
室内(2013年11月)撮影
Kitchenキッチン  Indoor (11 May 2013) Shooting
室内(2013年11月)撮影
Non-living roomリビング以外の居室  Indoor (11 May 2013) Shooting
室内(2013年11月)撮影
Local photos, including front road前面道路含む現地写真  Local (11 May 2013) Shooting
現地(2013年11月)撮影
The entire compartment Figure全体区画図  Compartment figure
区画図
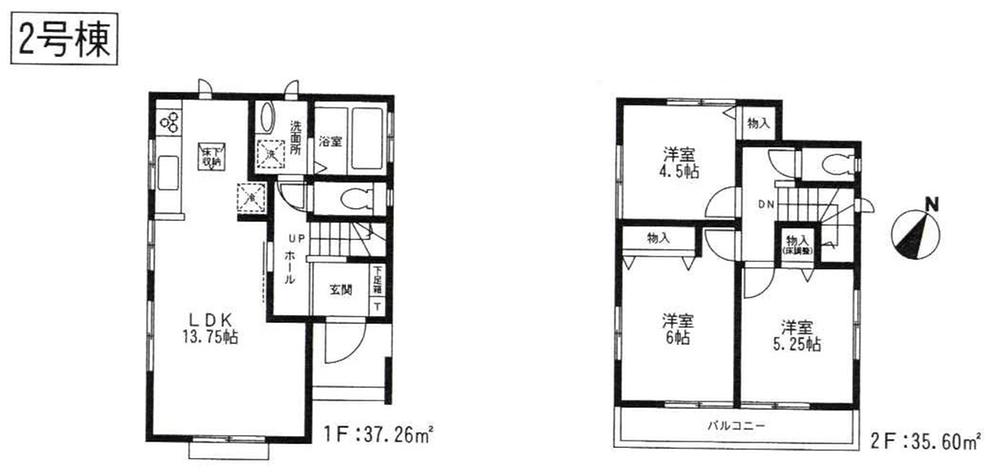
Floor plan間取り図  (Building 2), Price 36.5 million yen, 3LDK, Land area 93.62 sq m , Building area 72.86 sq m
(2号棟)、価格3650万円、3LDK、土地面積93.62m2、建物面積72.86m2
Kitchenキッチン  Indoor (11 May 2013) Shooting
室内(2013年11月)撮影
Non-living roomリビング以外の居室  Indoor (11 May 2013) Shooting
室内(2013年11月)撮影
Location
|