|
|
Isehara City, Kanagawa Prefecture
神奈川県伊勢原市
|
|
Odawara Line Odakyu "Isehara" 10 minutes Ayumi Numame 3 minutes by bus
小田急小田原線「伊勢原」バス10分沼目歩3分
|
|
The first kind low-rise exclusive residential area ・ Car space two Allowed ・ Second floor LDK ・ Face-to-face kitchen ・ Housing wealth ・ Fully equipped
第一種低層住居専用地域・カースペース2台可・2階LDK・対面式キッチン・収納豊富・設備充実
|
|
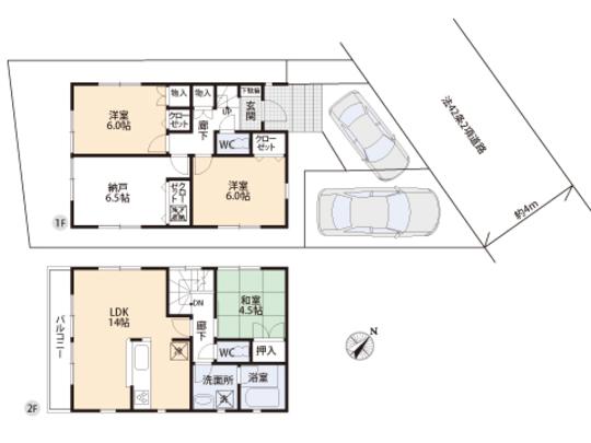
The first is a kind low-rise exclusive residential quiet residential area of the region. Parking spaces in the can park two car. It is encouraging even when the visitor. It may wind street by placing the LDK on the second floor, Bright sunshine and plenty. To protect the family's privacy at the same time. Popular face-to-face kitchen seems to me also spread circle of family. Since one Kaiyaku 6.5 Pledge of closet is you can use it as a room, It can also accommodate a variety of lifestyle. Each room in there is also a storage because the room is also clean Katazuki likely. All room pair glass, It is also happy extensive facilities, such as motion sensors with a porch light. Please contact us by all means.
第一種低層住居専用地域の閑静な住宅街です。駐車スペースにはお車2台駐車可能。来客時にも心強いですね。2階にLDKを配することで風通りも良く、明るい陽射しもたっぷり。同時にご家族のプライバシーを守ります。人気の対面式キッチンはご家族の輪も広げてくれそうです。1階約6.5帖の納戸は居室としてもお使いいただけますので、様々なライフスタイルにも対応できます。各居室に収納もありますのでお部屋もすっきり片付きそうです。全居室ペアガラス、人感センサー付き玄関灯など充実した設備もうれしいですね。ぜひお問い合わせ下さいませ。
|
Price 価格 | | 17.8 million yen 1780万円 |
Floor plan 間取り | | 3LDK 3LDK |
Units sold 販売戸数 | | 1 units 1戸 |
Land area 土地面積 | | 102.85 sq m (measured) 102.85m2(実測) |
Building area 建物面積 | | 85.86 sq m (measured) 85.86m2(実測) |
Driveway burden-road 私道負担・道路 | | Nothing 無 |
Completion date 完成時期(築年月) | | October 2013 2013年10月 |
Address 住所 | | Isehara, Kanagawa Prefecture Numame 5 神奈川県伊勢原市沼目5 |
Traffic 交通 | | Odawara Line Odakyu "Isehara" 10 minutes Ayumi Numame 3 minutes by bus 小田急小田原線「伊勢原」バス10分沼目歩3分
|
Related links 関連リンク | | [Related Sites of this company] 【この会社の関連サイト】 |
Contact お問い合せ先 | | TEL: 0800-805-6280 [Toll free] mobile phone ・ Also available from PHS Caller ID is not notified Please contact the "saw SUUMO (Sumo)" If it does not lead, If the real estate company TEL:0800-805-6280【通話料無料】携帯電話・PHSからもご利用いただけます 発信者番号は通知されません 「SUUMO(スーモ)を見た」と問い合わせください つながらない方、不動産会社の方は
|
Building coverage, floor area ratio 建ぺい率・容積率 | | Fifty percent ・ Hundred percent 50%・100% |
Time residents 入居時期 | | Consultation 相談 |
Land of the right form 土地の権利形態 | | Ownership 所有権 |
Structure and method of construction 構造・工法 | | Wooden 2-story 木造2階建 |
Use district 用途地域 | | One low-rise 1種低層 |
Overview and notices その他概要・特記事項 | | Facilities: Public Water Supply, This sewage, Individual LPG, Building confirmation number: No. 109727, Parking: No 設備:公営水道、本下水、個別LPG、建築確認番号:109727号、駐車場:無 |
Company profile 会社概要 | | <Mediation> Minister of Land, Infrastructure and Transport (3) No. 006,183 housing Information Center Isehara store Seongnam Construction (Ltd.) Yubinbango259-1105 Isehara, Kanagawa Prefecture Osumidai 1-12-3 <仲介>国土交通大臣(3)第006183号住宅情報館 伊勢原店城南建設(株)〒259-1105 神奈川県伊勢原市大住台1-12-3 |