New Homes » Kanto » Kanagawa Prefecture » Kamakura city


Kamakura, Kanagawa Prefecture
JR Yokosuka Line "Kita Kamakura" walk 2 minutes
Lush landscape has spread comfortably in a quiet residential area away from the hustle and bustle of the city. Of the building, which is built in quiet appearance is building a two-family house is also diversity and the use
Land 50 square meters or more, A quiet residential area, garden, Toilet 2 places, 2-story, Underfloor Storage, Leafy residential area, City gas
Features pickup
Land 50 square meters or more / A quiet residential area / garden / Toilet 2 places / 2-story / Underfloor Storage / Leafy residential area / City gas
Price
74 million yen
Floor plan
3LDK
Units sold
1 units
Total units
2 units
Land area
170.62 sq m (registration)
Building area
100.6 sq m (registration)
Driveway burden-road
Nothing
Completion date
December 2012
Address
Kamakura, Kanagawa Prefecture Yamanouchi
Traffic
JR Yokosuka Line "Kita Kamakura" walk 2 minutes
Related links
[Related Sites of this company]
Person in charge
Person in charge of real-estate and building Sugata Shonan Masahiro is local. Please leave!
Contact
TEL: 0800-603-0850 [Toll free] mobile phone ・ Also available from PHS
Caller ID is not notified
Please contact the "saw SUUMO (Sumo)"
If it does not lead, If the real estate company
Building coverage, floor area ratio
40% ・ 150%
Time residents
Consultation
Land of the right form
Ownership
Structure and method of construction
Wooden 2-story
Use district
One middle and high
Other limitations
Regulations have by the Law for the Protection of Cultural Properties, Regulations have by the Landscape Act, Scenic zone
Overview and notices
Contact: Sugata Masahiro, Facilities: Public Water Supply, This sewage, City gas
Company profile
<Mediation> Governor of Kanagawa Prefecture (9) No. 013104 (the Company), Kanagawa Prefecture Building Lots and Buildings Transaction Business Association (Corporation) metropolitan area real estate Fair Trade Council member Kowa home sales Co., Ltd. headquarters building sales department Yubinbango249-0006 Kanagawa Prefecture Zushi Zushi 5-6-7


Other local

Other local. A taste is the entrance.
A taste is the entrance.

Local appearance photo

Local appearance photo. appearance
appearance

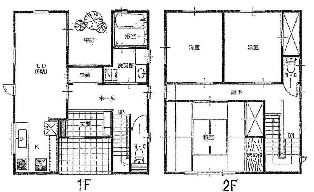
Floor plan

Floor plan. 74 million yen, 3LDK, Land area 170.62 sq m , Building area 100.6 sq m floor plan
74 million yen, 3LDK, Land area 170.62 sq m , Building area 100.6 sq m floor plan

Bathroom
Bathroom

Local appearance photo

Local appearance photo. appearance
appearance

Living
Living

Non-living room

Non-living room. Japanese style room
Japanese style room

Entrance
Entrance

Local photos, including front road

Local photos, including front road. local
local

Station

station. JR Kitakamakura
JR Kitakamakura

Other introspection

Other introspection. hole
hole

Other local

Other local. approach
approach

Local appearance photo

Local appearance photo. appearance
appearance

Local photos, including front road

Local photos, including front road. local
local

Other Environmental Photo

Other Environmental Photo. Meigetsuin
Meigetsuin

Other introspection

Other introspection. Stairs (2F)
Stairs (2F)

Local appearance photo

Local appearance photo. appearance
appearance

Other introspection

Other introspection. Introspection
Introspection



Location