New Homes » Kanto » Kanagawa Prefecture » Kawasaki City Asao-ku
 
| | Kawasaki City, Kanagawa Prefecture Aso-ku 神奈川県川崎市麻生区 |
| Tamasen Odakyu "Kasuga field" walk 6 minutes 小田急多摩線「はるひ野」歩6分 |
| ◆ ◆ ◆ We finally made the final sale 1 House ◆ ◆ ◆ The fine sense of satisfaction Haruhino Station hill of the 6-minute walk of taste by live here, , Please experience the beautiful mansion of Sumitomo Forestry! ◆◆◆いよいよ最終分譲1邸となりました◆◆◆ここに住まうことで味わえるのは上質な満足感はるひ野駅徒歩6分の高台に、住友林業の美しき邸宅をご体感ください! |
| ■ Model house published in! ■ Please look at the variation rich plan of your own eyes ■ Click the button in the upper right corner of the document request is still better! ■モデルハウス公開中! ■バリエーション豊かなプランをご自身の目でご覧ください■資料請求がまだの方は右上のボタンをクリック! |
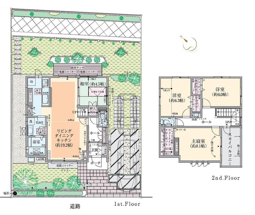
Seller comments 売主コメント | | 8 Building 8号棟 | Local guide map 現地案内図 | | Local guide map 現地案内図 | Property name 物件名 | | Sumitomo Forestry Symphonia Kasuga field 住友林業 シンフォニアはるひ野 | Price 価格 | | 67,400,000 yen 6740万円 | Floor plan 間取り | | 4LDK 4LDK | Units sold 販売戸数 | | 1 units 1戸 | Total units 総戸数 | | 69 units 69戸 | Land area 土地面積 | | 205.28 sq m 205.28m2 | Building area 建物面積 | | 109.57 sq m 109.57m2 | Driveway burden-road 私道負担・道路 | | Width 6m, 8m, 11.32m asphalt concrete pavement (no driveway burden) 幅員6m、8m、11.32mアスファルトコンクリート舗装(私道負担なし) | Completion date 完成時期(築年月) | | In late October 2012 2012年10月下旬 | Address 住所 | | Kawasaki City, Kanagawa Prefecture Aso-ku Kasuga field 1-6-22 神奈川県川崎市麻生区はるひ野1-6-22(地番) | Traffic 交通 | | Tamasen Odakyu "Kasuga field" walk 6 minutes Keio Sagamihara Line "Wakabadai" walk 10 minutes JR Nambu Line "Minamitama" car 18.9km 小田急多摩線「はるひ野」歩6分 京王相模原線「若葉台」歩10分 JR南武線「南多摩」車18.9km
| Related links 関連リンク | | [Related Sites of this company] 【この会社の関連サイト】 | Contact お問い合せ先 | | Sumitomo Forestry "Symphonia Kasuga field" local sales center TEL: 0120-009-962 [Toll free] Please contact the "saw SUUMO (Sumo)" 住友林業 「シンフォニアはるひ野」現地販売センターTEL:0120-009-962【通話料無料】「SUUMO(スーモ)を見た」と問い合わせください | Sale schedule 販売スケジュール | | ■ First-come-first-served basis application being accepted! place / Sumitomo Forestry reception building (38 Building) come please direct to. time / 9:30 ~ 17:30 regular holiday / Every Tuesday ・ Wednesday ※ When you sign up, Your seal, 2012 years' worth of income proof (withholding slip ・ Final return, etc.), Identification proof (driver's license ・ Health insurance card, etc.) is required. ※ Per first-come-first-served basis sale, Please pardon the occasion of the conclusion of a contract already. ■先着順申込受付中!場所/住友林業受付棟(38号棟)へ直接お越し下さい。時間/9:30 ~ 17:30定休日/毎週火・水曜日※お申込の際は、ご印鑑、平成24年分の収入証明(源泉徴収票・確定申告書等)、本人確認証明(運転免許証・健康保険証等)が必要です。※先着順販売につき、成約済の際はご容赦ください。 | Event information イベント情報 | | Model house schedule / Every Saturday, Sunday and public holidays time / 9:30 ~ 17:30 ■ Contact Us ・ Tour reservation until the toll-free ( ※ Your tour hope to weekdays, You will need reservation in advance. ) [Property Description Additional Notes] Building Completion date In late October the building occupancy period 2012 Immediate Available ※ After various procedures <Notice of year-end and New Year holiday> December 27 (Friday) ~ Until January 3 (gold), I will consider it as the year-end and New Year holiday. New Year will be open from January 4 (Saturday). モデルハウス日程/毎週土日祝時間/9:30 ~ 17:30■お問い合わせ・見学予約はフリーダイヤルまで(※平日に見学希望のお客様は、事前に予約が必要となります。)【物件概要補足事項】建物完成時期 2012年10月下旬建物入居時期 即入居可 ※諸手続き後<年末年始休業のお知らせ>12月27日(金) ~ 1月3日(金)までの間は、年末年始休業とさせて頂きます。新年は1月4日(土)より営業いたします。 | Building coverage, floor area ratio 建ぺい率・容積率 | | Building coverage: 50% Volume ratio: 100% 建ぺい率:50% 容積率:100% | Time residents 入居時期 | | Immediate available 即入居可 | Land of the right form 土地の権利形態 | | Ownership 所有権 | Structure and method of construction 構造・工法 | | Wooden construction method 2-story (multi-balance construction method) 木造軸組工法2階建(マルチバランス構法) | Use district 用途地域 | | One low-rise 1種低層 | Land category 地目 | | Residential land 宅地 | Other limitations その他制限事項 | | Residential land development construction regulation area, Height district, Height ceiling Yes, Shade limit Yes, Corner-cutting Yes, Setback Yes, District planning area (Kurokawa district district plan ・ Low-rise residential area B), Law Article 22 designated area 宅地造成工事規制区域、高度地区、高さ最高限度有、日影制限有、隅切り有、壁面後退有、地区計画区域(黒川地区地区計画・低層住宅地区B)、法22条指定区域 | Overview and notices その他概要・特記事項 | | Building confirmation number: the East No. -11-01-3351 (2011 December 16, 2008), The total development area: 16015.24 sq m , Car space (all households), Tokyo Electric Power Co., Tokyo Gas (city gas), Public Water Supply, Rainwater sewage diversion system (connected to the public sewage) 建築確認番号:第東日本-11-01-3351号(平成23年12月16日)、総開発面積:16015.24m2、カースペース(全戸)、東京電力、東京ガス(都市ガス)、公営水道、雨水汚水分流方式(公共下水に接続) | Company profile 会社概要 | | <Land seller ・ Building seller> Minister of Land, Infrastructure and Transport (13) No. 687 Minister of Land, Infrastructure and Transport permit (JP -22) No. 4237 (one company) Real Estate Association (Corporation) metropolitan area real estate Fair Trade Council member Sumitomo Forestry Co., Ltd. Housing Division Town Planning sales department Yubinbango100-8270 Otemachi, Chiyoda-ku, Tokyo 1-3-2 (Keidanren Kaikan) <marketing alliance (agency)> Minister of Land, Infrastructure and Transport (14) No. 220 (one company) Property distribution management Association, (Corporation) metropolitan area real estate transactions Council Member, (Corporation) Tokyo Metropolitan Government Building Lots and Buildings Transaction Business Association Sumitomo Forestry Home Service Co., Ltd. 160-0023 Tokyo Nishi-Shinjuku, Shinjuku-ku, 3-2-11 <土地売主・建物売主>国土交通大臣(13)第687号 国土交通大臣許可(特-22)第4237号(一社)不動産協会会員 (公社)首都圏不動産公正取引協議会加盟住友林業(株) 住宅事業本部 まちづくり営業部〒100-8270 東京都千代田区大手町1-3-2 (経団連会館)<販売提携(代理)>国土交通大臣(14)第220号(一社)不動産流通経営協会会員、(公社)首都圏不動産取引協議会加盟、(公社)東京都宅地建物取引業協会会員住友林業ホームサービス(株)〒160-0023 東京都新宿区西新宿3-2-11 |
Local appearance photo現地外観写真  ■ This subdivision of the city skyline ( ※ Including sales already dwelling unit)
■今回分譲地の街並み(※販売済住戸を含む)
 Local streets (August 2012) shooting ※ Including the sale already dwelling unit
現地街並み(2012年8月)撮影※分譲済住戸を含む
Livingリビング  7 Building: Living (December 2012) Shooting ※ Sales already dwelling unit
7号棟:リビング(2012年12月)撮影※販売済住戸
 7 Building: Living (December 2012) Shooting ※ Sales already dwelling unit
7号棟:リビング(2012年12月)撮影※販売済住戸
 Model building: Living (August 2012) shooting ※ Sales already dwelling unit
モデル棟:リビング(2012年8月)撮影※販売済住戸
Non-living roomリビング以外の居室  Model building: Western-style (August 2012) shooting ※ Sales already dwelling unit
モデル棟:洋室(2012年8月)撮影※販売済住戸
 Model building: main bedroom (August 2012) shooting ※ Sales already dwelling unit
モデル棟:主寝室(2012年8月)撮影※販売済住戸
View photos from the dwelling unit住戸からの眺望写真  View from 69 buildings (January 2013) Shooting ※ Sales already dwelling unit
69棟からの眺望(2013年1月)撮影※販売済住戸
Local guide map現地案内図  ■ Local guide map Odakyu line Tamasen "Kasuga field" station walk 6 minutes Sagamihara Line Keio "Wakabadai" station a 10-minute walk
■現地案内図小田急線多摩線「はるひ野」駅徒歩6分京王相模原線「若葉台」駅徒歩10分
■ Route map 2 Station 2 routes available and comfortable access to the city center■路線図2駅2路線利用可能で都心まで快適アクセス  ■ route map
■路線図
Local appearance photo現地外観写真  Symbolic Taiki of landscape to be planted at a house one Mansion, Has become a above all sectioning of blessing is dazzling south-facing the center of the sun. Local (May 2012) shooting
一邸一邸に植えられるシンボリックな大樹の景観は、何より太陽の祝福が眩い南向き中心の区割りとなっています。現地(2012年5月)撮影
Floor plan間取り図  ■ This subdivision of the city skyline ( ※ Including sales already dwelling unit)
■今回分譲地の街並み(※販売済住戸を含む)
Shopping centreショッピングセンター  Frespo Wakabadai until EAST 840m
フレスポ若葉台EASTまで840m
Primary school小学校  Kasuga field elementary and junior high schools up to 650m
はるひ野小中学校まで650m
Library図書館  Inagi to Municipal i Plaza 590m
稲城市立 iプラザまで590m
Other Equipmentその他設備  There is a functional and clean, Is the kitchen, such as fun every day of housework. Also easy to spout water in the hand touch shower faucet ・ You can stop water. (Same specifications)
機能的で清潔感があり、毎日の家事が楽しくなるようなキッチンです。またハンドタッチシャワー水栓で簡単に吐水・止水ができます。(同仕様)
 Standard equipped with a dishwasher to all dwelling unit. We will reduce the burden of housework with excellent detergency. (Same specifications)
食器洗い乾燥機を全住戸に標準装備。優れた洗浄力で家事の負担を軽減いたします。(同仕様)
 The IH cooking heater adopted, Cleaning is also easy. (Same specifications)
IHクッキングヒーターを採用し、お掃除もカンタンに。(同仕様)
 Local guide map
現地案内図
Presentプレゼント ![Present. [Your visitors gift] We your visit to the model house, We will present the "yellow Colin goods" to customers who fill out the prescribed questionnaire. (One one-family-like) < ※ Since the gifts are subject to availability, Please pardon the case of run out. Also, Products are subject to change without notice. >](/images/kanagawa/kawasakishiasao/438e370136.jpg) [Your visitors gift] We your visit to the model house, We will present the "yellow Colin goods" to customers who fill out the prescribed questionnaire. (One one-family-like) < ※ Since the gifts are subject to availability, Please pardon the case of run out. Also, Products are subject to change without notice. >
【ご来場者プレゼント】モデルハウスにご来場いただき、所定のアンケートにご記入いただいたお客様に「きこりんグッズ」をプレゼントいたします。(1家族様1個限り)<※プレゼントは数に限りがありますので、品切れの際はご容赦ください。また、商品は予告なく変更する場合があります。>
Security equipment防犯設備  Because the color monitor, You can also check the clear appearance of the visitor.
カラーモニターなので、来訪者の様子も鮮明に確認できます。
Power generation ・ Hot water equipment発電・温水設備  Reduction of CO2 emissions ・ To contribute to the prevention of global warming, High efficiency TES heat source machine adopts the "Eco Jaws". Achieve a reduction of the improvement and the running cost of the hot water supply efficiency. . (Same specifications)
CO2排出量の削減・地球温暖化防止に貢献する、高効率TES熱源機「エコジョーズ」を採用。給湯効率の向上とランニングコストの削減を実現。。(同仕様)
Other Equipmentその他設備  Reflect midsummer of a strong solar heat outside, Adopted <heat type shielding>. Because of the high absorption performance in the ultraviolet region, UV rays also 76 percent and significantly cut not only the sunlight.
真夏の強い太陽熱を外側で反射する、<遮熱タイプ>を採用。紫外線領域の吸収性能が高いため、太陽光だけでなく紫外線も76%と大幅にカットします。
The entire compartment Figure全体区画図  ■ 2013 December 6, currently
■2013年12月6日現在
Other Environmental Photoその他環境写真  Local streets
現地街並み
 Local streets (night view)
現地街並み(夜景)
Location
|