New Homes » Kanto » Kanagawa Prefecture » Kawasaki City Asao-ku
 
| | Kawasaki City, Kanagawa Prefecture Aso-ku 神奈川県川崎市麻生区 |
| Odakyu line "Shinyurigaoka" walk 11 minutes 小田急線「新百合ヶ丘」歩11分 |
| Parking two possible. Shaping land facing the southeast road. Spacious floor plan of all rooms Corner Room. It is located in a quiet residential area. 駐車場2台可能。東南道路に面する整形地。全室角部屋のゆったり間取り。静かな住宅街に中に立地しています。 |
| ■ Convenience of ShinYuri months hill station is high. that is, Not only a variety of shops and public facilities located around the station, I also due to the goodness of the train and bus access. Odakyu line, And branches into two from ShinYuri months hill. Also to Odawara district, Station that can go to the Tama district. It further stops all types of train include the express. Further bus, Azamino Station Denentoshi Ya, Go in even direct to the airport. For business, It is also useful to leisure. ■新百合ヶ丘駅の利便性は高いです。それは、駅周辺にある様々なお店と公共施設だけじゃなく、電車とバスアクセスの良さにもよるのです。小田急線は、新百合ヶ丘から2つに分岐します。小田原方面へも、多摩方面へも行ける駅。さらに特急を含める全ての種類の電車がとまります。さらにバスは、田園都市線のあざみ野駅や、空港までも直行で行ける。ビジネスにも、レジャーにも便利です。 |
Seller comments 売主コメント | | B Building B号棟 | Features pickup 特徴ピックアップ | | Pre-ground survey / Year Available / Parking two Allowed / System kitchen / Yang per good / All room storage / A quiet residential area / LDK15 tatami mats or more / Around traffic fewer / Japanese-style room / Shaping land / Washbasin with shower / Face-to-face kitchen / Toilet 2 places / 2-story / 2 or more sides balcony / Southeast direction / South balcony / Double-glazing / Underfloor Storage / TV monitor interphone / High-function toilet / Leafy residential area / Ventilation good / Water filter / Living stairs / City gas / All rooms are two-sided lighting / Attic storage / Floor heating / Readjustment land within 地盤調査済 /年内入居可 /駐車2台可 /システムキッチン /陽当り良好 /全居室収納 /閑静な住宅地 /LDK15畳以上 /周辺交通量少なめ /和室 /整形地 /シャワー付洗面台 /対面式キッチン /トイレ2ヶ所 /2階建 /2面以上バルコニー /東南向き /南面バルコニー /複層ガラス /床下収納 /TVモニタ付インターホン /高機能トイレ /緑豊かな住宅地 /通風良好 /浄水器 /リビング階段 /都市ガス /全室2面採光 /屋根裏収納 /床暖房 /区画整理地内 | Event information イベント情報 | | Local tours (please make a reservation beforehand) schedule / Every Saturday, Sunday and public holidays time / 10:00 ~ 18:00 現地見学会(事前に必ず予約してください)日程/毎週土日祝時間/10:00 ~ 18:00 | Property name 物件名 | | Azalea Hills new lily Keoka III アゼリアヒルズ新百合ヶ丘III | Price 価格 | | 44,800,000 yen 4480万円 | Floor plan 間取り | | 4LDK 4LDK | Units sold 販売戸数 | | 1 units 1戸 | Total units 総戸数 | | 2 units 2戸 | Land area 土地面積 | | 100.26 sq m 100.26m2 | Building area 建物面積 | | 91.08 sq m 91.08m2 | Driveway burden-road 私道負担・道路 | | Road width: 4m, Concrete pavement 道路幅:4m、コンクリート舗装 | Completion date 完成時期(築年月) | | 2013 end of September 2013年9月末 | Address 住所 | | Kawasaki City, Kanagawa Prefecture Aso-ku Kanahodo 1 神奈川県川崎市麻生区金程1 | Traffic 交通 | | Odakyu line "Shinyurigaoka" walk 11 minutes Tamasen Odakyu "Satsukidai" walk 24 minutes Odakyu line "Yurikeoka" walk 24 minutes 小田急線「新百合ヶ丘」歩11分 小田急多摩線「五月台」歩24分 小田急線「百合ヶ丘」歩24分
| Related links 関連リンク | | [Related Sites of this company] 【この会社の関連サイト】 | Person in charge 担当者より | | There are a lot that do not know everyone in relation to the structure and the laws of the person in charge Taguchi St. building. After I graduated from the Department of Architecture, I will propose recommendations properties from the standpoint of utilizing the experience because I have been working for eight years to first-class architect design office. 担当者田口 聖建物の構造や法律に関して皆様が知らないことがたくさんあります。私は建築学科を卒業後、一級建築士設計事務所に8年間勤めていましたので経験を生かした立場からおすすめ物件をご提案させていただきます。 | Contact お問い合せ先 | | TEL: 0800-603-1129 [Toll free] mobile phone ・ Also available from PHS Caller ID is not notified Please contact the "saw SUUMO (Sumo)" If it does not lead, If the real estate company TEL:0800-603-1129【通話料無料】携帯電話・PHSからもご利用いただけます 発信者番号は通知されません 「SUUMO(スーモ)を見た」と問い合わせください つながらない方、不動産会社の方は
| Building coverage, floor area ratio 建ぺい率・容積率 | | Kenpei rate: 50%, Volume ratio: 100% 建ペい率:50%、容積率:100% | Time residents 入居時期 | | Consultation 相談 | Land of the right form 土地の権利形態 | | Ownership 所有権 | Structure and method of construction 構造・工法 | | Wooden 2-story 木造2階建 | Use district 用途地域 | | One low-rise 1種低層 | Land category 地目 | | Residential land 宅地 | Other limitations その他制限事項 | | Regulations have by the Landscape Act, Residential land development construction regulation area 景観法による規制有、宅地造成工事規制区域 | Overview and notices その他概要・特記事項 | | Contact: Taguchi St., Building confirmation number: No. H25 KBI00851 ・ other 担当者:田口 聖、建築確認番号:第H25 KBI00851号・他 | Company profile 会社概要 | | <Seller> Governor of Kanagawa Prefecture (1) No. 027052 (the company), Kanagawa Prefecture Building Lots and Buildings Transaction Business Association (Corporation) metropolitan area real estate Fair Trade Council member (Ltd.) Azalea Home Yubinbango214-0037 Kawasaki City, Kanagawa Prefecture Tama-ku, Nishiikuta 2-13-13 <売主>神奈川県知事(1)第027052号(社)神奈川県宅地建物取引業協会会員 (公社)首都圏不動産公正取引協議会加盟(株)アゼリアホーム〒214-0037 神奈川県川崎市多摩区西生田2-13-13 |
Local appearance photo現地外観写真  Local (11 May 2013) Shooting
現地(2013年11月)撮影
 Local (11 May 2013) Shooting
現地(2013年11月)撮影
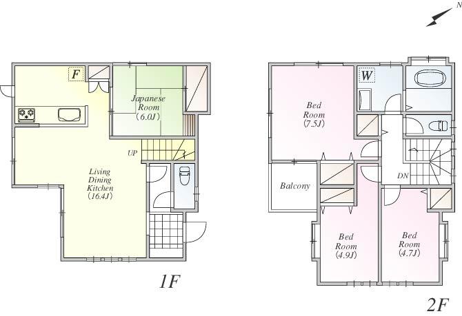
Floor plan間取り図  (B Building), Price 44,800,000 yen, 4LDK, Land area 100.26 sq m , Building area 91.08 sq m
(B号棟)、価格4480万円、4LDK、土地面積100.26m2、建物面積91.08m2
Kitchenキッチン  Indoor (11 May 2013) Shooting
室内(2013年11月)撮影
Livingリビング  Indoor (11 May 2013) Shooting
室内(2013年11月)撮影
Bathroom浴室  Indoor (11 May 2013) Shooting
室内(2013年11月)撮影
Route map路線図  Train access to the surrounding also good! (It does not include the transfer time, etc.)
周辺への電車アクセスも良好!(乗り換え時間等を含みません)
Non-living roomリビング以外の居室  Indoor (11 May 2013) Shooting
室内(2013年11月)撮影
 Indoor (11 May 2013) Shooting
室内(2013年11月)撮影
Balconyバルコニー  Local (11 May 2013) Shooting
現地(2013年11月)撮影
Non-living roomリビング以外の居室  Indoor (11 May 2013) Shooting
室内(2013年11月)撮影
Livingリビング  Indoor (11 May 2013) Shooting
室内(2013年11月)撮影
Wash basin, toilet洗面台・洗面所  Indoor (11 May 2013) Shooting
室内(2013年11月)撮影
Government office役所  1100m to Aso ward office
麻生区役所まで1100m
Other Environmental Photoその他環境写真  870m to Kawasaki City Art Center
川崎市アートセンターまで870m
 1500m to the swimming school
スイミングスクールまで1500m
 ShinYurikeoka 1200m to the peripheral station
新百合ヶ丘駅周辺まで1200m
 ShinYurikeoka 1200m to the peripheral station
新百合ヶ丘駅周辺まで1200m
Location
|