New Homes » Kanto » Kanagawa Prefecture » Kawasaki City Asao-ku
 
| | Kawasaki City, Kanagawa Prefecture Aso-ku 神奈川県川崎市麻生区 |
| Odakyu line "Shinyurigaoka" walk 14 minutes 小田急線「新百合ヶ丘」歩14分 |
| ◎ urethane foam spray insulation material ◎ standard specification! Cool in summer, Winter realize the building of warm airtight high insulation! [Energy Conservation] Measures housing! [Flat 35S] Available! ◎発砲ウレタン吹付断熱材◎標準仕様!夏は涼しく、冬は暖かい高気密高断熱の建物を実現!【省エネルギー】対策住宅!【フラット35S】利用可能! |
| ◆ Odakyu line "Shinyurigaoka" station walk 14 minutes of good location! ◆ Floor heating ・ Bathroom heating dryer ・ Dish washing dryer ・ ECOWILL ・ Card key CAZAS standard equipment! ◆ All 19 compartments, Beautiful cityscape of European mansion! ◆小田急線「新百合ヶ丘」駅徒歩14分の好立地!◆床暖房・浴室暖房乾燥機・食器洗乾燥機・エコウィル・カードキーCAZAS標準設備!◆全19区画、欧風邸宅の美しい街並み! |
Features pickup 特徴ピックアップ | | Measures to conserve energy / Corresponding to the flat-35S / Airtight high insulated houses / Pre-ground survey / Energy-saving water heaters / Super close / Facing south / System kitchen / Bathroom Dryer / Yang per good / All room storage / Siemens south road / A quiet residential area / LDK15 tatami mats or more / Or more before road 6m / Japanese-style room / Idyll / garden / Washbasin with shower / Face-to-face kitchen / Barrier-free / Toilet 2 places / Bathroom 1 tsubo or more / 2-story / South balcony / Double-glazing / Warm water washing toilet seat / Nantei / Underfloor Storage / The window in the bathroom / TV monitor interphone / Leafy residential area / Ventilation good / Good view / Dish washing dryer / Walk-in closet / Or more ceiling height 2.5m / Water filter / City gas / A large gap between the neighboring house / Attic storage / Floor heating 省エネルギー対策 /フラット35Sに対応 /高気密高断熱住宅 /地盤調査済 /省エネ給湯器 /スーパーが近い /南向き /システムキッチン /浴室乾燥機 /陽当り良好 /全居室収納 /南側道路面す /閑静な住宅地 /LDK15畳以上 /前道6m以上 /和室 /田園風景 /庭 /シャワー付洗面台 /対面式キッチン /バリアフリー /トイレ2ヶ所 /浴室1坪以上 /2階建 /南面バルコニー /複層ガラス /温水洗浄便座 /南庭 /床下収納 /浴室に窓 /TVモニタ付インターホン /緑豊かな住宅地 /通風良好 /眺望良好 /食器洗乾燥機 /ウォークインクロゼット /天井高2.5m以上 /浄水器 /都市ガス /隣家との間隔が大きい /屋根裏収納 /床暖房 | Event information イベント情報 | | (Please be sure to ask in advance) (事前に必ずお問い合わせください) | Property name 物件名 | | [Shinyurigaoka] Station 14 mins «Lagrasse new lily Keoka» newly built condominiums all 19 buildings 【新百合ヶ丘】駅徒歩14分≪ラグラス新百合ヶ丘≫新築分譲住宅全19棟 | Price 価格 | | 45,800,000 yen ~ 52,800,000 yen 4580万円 ~ 5280万円 | Floor plan 間取り | | 4LDK ~ 4LDK + S (storeroom) 4LDK ~ 4LDK+S(納戸) | Units sold 販売戸数 | | 10 units 10戸 | Total units 総戸数 | | 19 units 19戸 | Land area 土地面積 | | 102.74 sq m ~ 133.78 sq m (31.07 tsubo ~ 40.46 tsubo) (Registration) 102.74m2 ~ 133.78m2(31.07坪 ~ 40.46坪)(登記) | Building area 建物面積 | | 98.96 sq m ~ 102.47 sq m (29.93 tsubo ~ 30.99 tsubo) (measured) 98.96m2 ~ 102.47m2(29.93坪 ~ 30.99坪)(実測) | Driveway burden-road 私道負担・道路 | | Road width: 4m ~ 6m, Asphaltic pavement 道路幅:4m ~ 6m、アスファルト舗装 | Completion date 完成時期(築年月) | | February 2014 early schedule 2014年2月上旬予定 | Address 住所 | | Kawasaki City, Kanagawa Prefecture Aso-ku, Takaishi 1-1154-33 神奈川県川崎市麻生区高石1-1154-33 | Traffic 交通 | | Odakyu line "Shinyurigaoka" walk 14 minutes Odakyu line "Yurikeoka" walk 6 minutes Tamasen Odakyu "Satsukidai" walk 34 minutes 小田急線「新百合ヶ丘」歩14分 小田急線「百合ヶ丘」歩6分 小田急多摩線「五月台」歩34分
| Person in charge 担当者より | | Rep Yamazaki Length wide Age: 30 Daigyokai Experience: 14 years Danderyd ・ We have been let served as the President and store manager at Rise. I promise that I am empathetically to correspond to a variety of questions or problems. 担当者山崎 丈広年齢:30代業界経験:14年ダンデ・ライズで責任者兼店長を務めさせて頂いております。さまざまなご質問や問題に親身に対応させて頂くことをお約束致します。 | Contact お問い合せ先 | | TEL: 0800-805-3775 [Toll free] mobile phone ・ Also available from PHS Caller ID is not notified Please contact the "saw SUUMO (Sumo)" If it does not lead, If the real estate company TEL:0800-805-3775【通話料無料】携帯電話・PHSからもご利用いただけます 発信者番号は通知されません 「SUUMO(スーモ)を見た」と問い合わせください つながらない方、不動産会社の方は
| Most price range 最多価格帯 | | 46 million yen (3 units) 4600万円台(3戸) | Building coverage, floor area ratio 建ぺい率・容積率 | | Kenpei rate: 50%, Volume ratio: 100% 建ペい率:50%、容積率:100% | Time residents 入居時期 | | February 2014 late schedule 2014年2月下旬予定 | Land of the right form 土地の権利形態 | | Ownership 所有権 | Structure and method of construction 構造・工法 | | Wooden 2-story (framing method) 木造2階建(軸組工法) | Construction 施工 | | Sakura construction さくら建設 | Use district 用途地域 | | One low-rise 1種低層 | Land category 地目 | | Residential land 宅地 | Other limitations その他制限事項 | | Regulations have by the Landscape Act, Residential land development construction regulation area, Height district, Height ceiling Yes, Shade limit Yes 景観法による規制有、宅地造成工事規制区域、高度地区、高さ最高限度有、日影制限有 | Overview and notices その他概要・特記事項 | | Contact: Yamazaki Takehiro, Building confirmation number: the H24 building certification No. KBI08692 担当者:山崎 丈広、建築確認番号:第H24確認建築KBI08692号 | Company profile 会社概要 | | <Mediation> Governor of Kanagawa Prefecture (1) No. 028167 (Ltd.) Danderyd ・ Rise Yubinbango216-0004 Kawasaki City, Kanagawa Prefecture Miyamae-ku, Saginuma 3-5-28 Aguriasu Saginuma B1 <仲介>神奈川県知事(1)第028167号(株)ダンデ・ライズ〒216-0004 神奈川県川崎市宮前区鷺沼3-5-28 アグリアス鷺沼B1 |
Local photos, including front road前面道路含む現地写真  "Lagrasse new lily Keoka" whole picture, Clean streets
「ラグラス新百合ヶ丘」全体像、きれいな街並み
Local appearance photo現地外観写真  Building 3 (model building) appearance
3号棟(モデル棟)外観
Rendering (appearance)完成予想図(外観)  7 ・ 8 Building appearance
7・8号棟外観
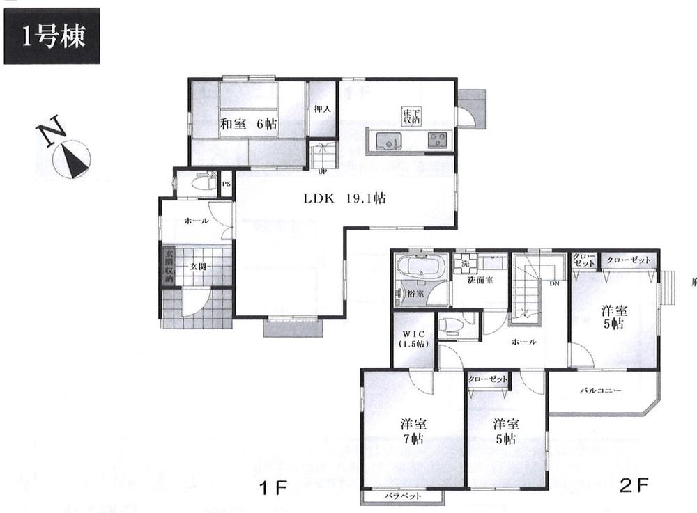
Floor plan間取り図  (1 Building), Price 47,800,000 yen, 4LDK+S, Land area 118.97 sq m , Building area 102.47 sq m
(1号棟)、価格4780万円、4LDK+S、土地面積118.97m2、建物面積102.47m2
Livingリビング  3 Building a living-dining, With floor heating
3号棟リビングダイニング、床暖房付
Bathroom浴室  3 Building Hitotsubo type unit bus, Bathroom with heating dryer
3号棟一坪タイプユニットバス、浴室暖房乾燥機付
Kitchenキッチン  Building 3 system Kitchen, Dish washing dryer ・ With water purifier, Yes your back door
3号棟システムキッチン、食器洗乾燥機・浄水器付、お勝手口あり
Non-living roomリビング以外の居室  Building 3 1 Kaiyoshitsu
3号棟1階洋室
Entrance玄関  Building 3 in the foyer
3号棟玄関内
Wash basin, toilet洗面台・洗面所  Vanity with Building 3 shower faucet
3号棟シャワー水栓付洗面化粧台
Receipt収納  3 Building second floor Western-style room in the closet
3号棟2階洋室内クローゼット
Toiletトイレ  3 Building the first floor toilet, With warm water washing toilet seat function
3号棟1階トイレ、温水洗浄便座機能付き
Garden庭  Building 3 garden
3号棟庭先
Parking lot駐車場  Building 3 car space
3号棟カースペース
Balconyバルコニー  3 Building second floor balcony
3号棟2階バルコニー
Primary school小学校  1365m to the Kawasaki Municipal Nishiikuta Elementary School
川崎市立西生田小学校まで1365m
View photos from the dwelling unit住戸からの眺望写真  Building 3 view from the balcony
3号棟バルコニーからの眺望
The entire compartment Figure全体区画図 ![The entire compartment Figure. [Lagrasse new lily Keoka] Compartment Figure](/images/kanagawa/kawasakishiasao/b5927c0021.jpg) [Lagrasse new lily Keoka] Compartment Figure
【ラグラス新百合ヶ丘】区画図
Floor plan間取り図  (Building 2), Price 48,800,000 yen, 4LDK, Land area 127.4 sq m , Building area 101.85 sq m
(2号棟)、価格4880万円、4LDK、土地面積127.4m2、建物面積101.85m2
Livingリビング  Building 3 LDK
3号棟LDK
Non-living roomリビング以外の居室  Building 3 2 Kaiyoshitsu
3号棟2階洋室
Floor plan間取り図  1365m to the Kawasaki Municipal Nishiikuta Elementary School
川崎市立西生田小学校まで1365m
 1365m to the Kawasaki Municipal Nishiikuta Elementary School
川崎市立西生田小学校まで1365m
 1365m to the Kawasaki Municipal Nishiikuta Elementary School
川崎市立西生田小学校まで1365m
 1365m to the Kawasaki Municipal Nishiikuta Elementary School
川崎市立西生田小学校まで1365m
 1365m to the Kawasaki Municipal Nishiikuta Elementary School
川崎市立西生田小学校まで1365m
 1365m to the Kawasaki Municipal Nishiikuta Elementary School
川崎市立西生田小学校まで1365m
 1365m to the Kawasaki Municipal Nishiikuta Elementary School
川崎市立西生田小学校まで1365m
Junior high school中学校  1365m to the Kawasaki Municipal Nishiikuta junior high school
川崎市立西生田中学校まで1365m
Supermarketスーパー  This is useful for day-to-day shopping 630m to lily Store lily months hill shop!
ゆりストア百合ヶ丘店まで630m 日々のお買物に便利ですよ!
Floor plan間取り図  1365m to the Kawasaki Municipal Nishiikuta Elementary School
川崎市立西生田小学校まで1365m
Supermarketスーパー  It sets a variety of things from 975m daily necessities up to super Sanwa Yuri store to grocery!
スーパー三和百合ケ丘店まで975m 日用品から食料品まで様々な物が揃います!
Station駅  Convenient commercial stores There are several to life in the 1080m Station neighborhood until the Odakyu line new lily months hill station!
小田急線新百合ヶ丘駅まで1080m 駅周辺には生活に便利な商業店舗が複数あります!
Supermarketスーパー  Please to 885m day-to-day shopping until OdakyuOX Manpukuji shop!
OdakyuOX万福寺店まで885m 日々のお買物にどうぞ!
Park公園  Manpukuji until the hill park of forest crowded with 195m cheerful children!
万福寺もりの丘公園まで195m 元気な子ども達で賑わっています!
Kindergarten ・ Nursery幼稚園・保育園  Higashiyurigaoka because it is in 585m Station near to nursery compartments cradle will be entrusted the child at the time of commuting.
東百合丘保育園分室ゆりかごまで585m 駅近くにあるので通勤の際にお子様を預けられます。
Hospital病院  Near and it will be saved at a time when ShinYuri months hill Medical Clinic to 360m emergency.
新百合ヶ丘メディカルクリニックまで360m いざという時に近くて助かります。
Location
|