|
|
Kawasaki City, Kanagawa Prefecture Aso-ku
神奈川県川崎市麻生区
|
|
Odakyu line "Yomiuri Land before" walk 19 minutes
小田急線「読売ランド前」歩19分
|
|
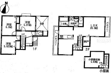
LDK20.5 spacious floor plan of the Pledge. Also the amount of storage is rich because it is with attic storage.
LDK20.5帖の広々とした間取りです。また屋根裏収納付きですので収納量が豊富です。
|
|
■ Our Sumitai the JR Yokohama Line Machida Station walk [30 seconds] ■ To suit the needs of our customers [All-day guidance] Doing ■ By staff who are familiar with each region [Wide area] Is possible. Introduction ■ Guidance from the Contact Us, Your delivery from the contract, By full-time staff of only customers up to after-sales service [Consistent support system] The available! ■ school, Supermarket, Traffic access, Such as hospitals [Neighborhood environment guidance] It will do ■ [All of the mortgage] It is possible handling of ■ Movers, Construction company, Insurance companies, etc. [A large number of partner companies] Introducing the! ■ gas, Water, Electrical, etc. [Also guidance for the various Procedures] It will do ■ By the guidance and counsel tax accountant of the necessary tax returns after the home purchase [Free Seminar]
■当社スミタイはJR横浜線町田駅徒歩【30秒】■お客様のご要望に合わせて【終日ご案内】しております■各地域に精通したスタッフによる【広域エリア】のご紹介が可能です■お問合せからご案内、ご契約からお引渡し、アフターサービスまでお客様だけの専任スタッフによる【一貫したサポート体制】をご用意!■学校、スーパー、交通アクセス、病院等の【近隣環境もご案内】致します■【全ての住宅ローン】のお取扱いが可能です■引越し業者、建築会社、保険会社など【多数の協力会社】をご紹介!■ガス、水道、電気等の【各種お手続きについてもご案内】致します■住宅購入後に必要な確定申告のご案内及び顧問税理士による【無料セミナー開催】
|
Features pickup 特徴ピックアップ | | LDK20 tatami mats or more / LDK18 tatami mats or more / Facing south / System kitchen / Bathroom Dryer / All room storage / Face-to-face kitchen / Barrier-free / Toilet 2 places / 2-story / TV monitor interphone / All living room flooring / Water filter / City gas / Attic storage LDK20畳以上 /LDK18畳以上 /南向き /システムキッチン /浴室乾燥機 /全居室収納 /対面式キッチン /バリアフリー /トイレ2ヶ所 /2階建 /TVモニタ付インターホン /全居室フローリング /浄水器 /都市ガス /屋根裏収納 |
Price 価格 | | 30,800,000 yen 3080万円 |
Floor plan 間取り | | 3LDK 3LDK |
Units sold 販売戸数 | | 1 units 1戸 |
Total units 総戸数 | | 6 units 6戸 |
Land area 土地面積 | | 131.01 sq m (registration) 131.01m2(登記) |
Building area 建物面積 | | 95.64 sq m (measured) 95.64m2(実測) |
Driveway burden-road 私道負担・道路 | | Share equity 310.98 sq m × (1 / 6), East 5.5m width 共有持分310.98m2×(1/6)、東5.5m幅 |
Completion date 完成時期(築年月) | | July 2013 2013年7月 |
Address 住所 | | Kawasaki City, Kanagawa Prefecture Aso-ku Higashiyurigaoka 1 神奈川県川崎市麻生区東百合丘1 |
Traffic 交通 | | Odakyu line "Yomiuri Land before" walk 19 minutes Odakyu line "Yurikeoka" walk 20 minutes Odakyu line "Shinyurigaoka" Taif 7 minutes of the bus in 12 minutes 小田急線「読売ランド前」歩19分 小田急線「百合ヶ丘」歩20分 小田急線「新百合ヶ丘」バス12分中の台歩7分
|
Related links 関連リンク | | [Related Sites of this company] 【この会社の関連サイト】 |
Person in charge 担当者より | | The second distribution division personnel Hiroki Sato Age: 30 Daigyokai Experience: 8 years I at the time of the guidance, We always kept in mind the "family everyone's point of view.". It is also the father of my own two children, Because feels very meaningful family exchanges through the house. We will come now also not forget the "family eyes". 担当者第2流通事業部 佐藤弘樹年齢:30代業界経験:8年私はご案内の際に、常に「家族皆様の目線」を心掛けております。それは私自身が二児の父親でもあり、住宅を通じての家族交流を大変有意義に感じているからです。これからも「家族目線」を忘れずに参ります。 |
Contact お問い合せ先 | | TEL: 0800-603-9093 [Toll free] mobile phone ・ Also available from PHS Caller ID is not notified Please contact the "saw SUUMO (Sumo)" If it does not lead, If the real estate company TEL:0800-603-9093【通話料無料】携帯電話・PHSからもご利用いただけます 発信者番号は通知されません 「SUUMO(スーモ)を見た」と問い合わせください つながらない方、不動産会社の方は
|
Building coverage, floor area ratio 建ぺい率・容積率 | | Fifty percent ・ 80% 50%・80% |
Time residents 入居時期 | | Consultation 相談 |
Land of the right form 土地の権利形態 | | Ownership 所有権 |
Structure and method of construction 構造・工法 | | Wooden 2-story 木造2階建 |
Use district 用途地域 | | One low-rise 1種低層 |
Overview and notices その他概要・特記事項 | | The person in charge: the second Distribution Division Hiroki Sato, Facilities: Public Water Supply, This sewage, City gas, Building confirmation number: 104650, Parking: car space 担当者:第2流通事業部 佐藤弘樹、設備:公営水道、本下水、都市ガス、建築確認番号:104650、駐車場:カースペース |
Company profile 会社概要 | | <Mediation> Governor of Tokyo (1) the first 090,169 No. live want information net (Ltd.) Sumitai headquarters Yubinbango194-0013 Machida, Tokyo Haramachida 1-1-3 high stone building the fourth floor <仲介>東京都知事(1)第090169号住みたい情報ネット(株)スミタイ本社〒194-0013 東京都町田市原町田1-1-3 ハイストーンビル4階 |