New Homes » Kanto » Kanagawa Prefecture » Kawasaki-ku
 
| | Kawasaki-shi, Kanagawa-ku, Kawasaki 神奈川県川崎市川崎区 |
| JR Tokaido Line "Kawasaki" walk 11 minutes JR東海道本線「川崎」歩11分 |
| ■ Terminal station "Kawasaki" good location of 11 minutes' walk from the station. "Tokyo" station 17 minutes. "Shinagawa" 8 minutes station. "Yokohama Station" 8 minutes. ■ Imposing completed already. You can preview your freely. It is possible your move before the end of the year. ■ターミナル駅「川崎」駅より徒歩11分の好立地。「東京」駅17分。「品川」駅8分。「横浜駅」8分。■堂々完成済。ご自由に内覧頂けます。年内のご入居可能です。 |
| ■ 35 with square meters clear of the land put in two cars parallel. Shaping land! ■ Okay Store, Seven-Eleven, Kawasaki, Other living facilities enhancement. ■ Urban-friendly Station Chikato Ken. Limited Building 1. ■ Floor plan of all rooms 6 tatami more leeway. ■ With wide balcony ■車2台並列で置けるゆとりの土地35坪付。整形地!■オーケーストア、セブンイレブン、ラゾーナ川崎、その他生活施設充実。■都会派向け駅近戸建。限定1棟。■全室6畳以上ゆとりの間取り。■ワイドバルコニー付 |
Local guide map 現地案内図 | | Local guide map 現地案内図 | Features pickup 特徴ピックアップ | | Corresponding to the flat-35S / Pre-ground survey / Year Available / Parking two Allowed / Immediate Available / 2 along the line more accessible / Energy-saving water heaters / Super close / It is close to the city / System kitchen / Bathroom Dryer / All room storage / Flat to the station / Japanese-style room / Shaping land / garden / Washbasin with shower / Face-to-face kitchen / Wide balcony / Barrier-free / Toilet 2 places / 2-story / Double-glazing / Warm water washing toilet seat / Underfloor Storage / The window in the bathroom / TV monitor interphone / Urban neighborhood / All room 6 tatami mats or more / Water filter / City gas / Flat terrain / Floor heating フラット35Sに対応 /地盤調査済 /年内入居可 /駐車2台可 /即入居可 /2沿線以上利用可 /省エネ給湯器 /スーパーが近い /市街地が近い /システムキッチン /浴室乾燥機 /全居室収納 /駅まで平坦 /和室 /整形地 /庭 /シャワー付洗面台 /対面式キッチン /ワイドバルコニー /バリアフリー /トイレ2ヶ所 /2階建 /複層ガラス /温水洗浄便座 /床下収納 /浴室に窓 /TVモニタ付インターホン /都市近郊 /全居室6畳以上 /浄水器 /都市ガス /平坦地 /床暖房 | Event information イベント情報 | | Open House (Please visitors to direct local) schedule / Every Saturday and Sunday time / 10:30 ~ 16:30 オープンハウス(直接現地へご来場ください)日程/毎週土日時間/10:30 ~ 16:30 | Property name 物件名 | | Libre Garden Kawasaki Honcho リーブルガーデン川崎本町 | Price 価格 | | 49,800,000 yen 4980万円 | Floor plan 間取り | | 4LDK 4LDK | Units sold 販売戸数 | | 1 units 1戸 | Total units 総戸数 | | 1 units 1戸 | Land area 土地面積 | | 116.06 sq m (measured) 116.06m2(実測) | Building area 建物面積 | | 95.22 sq m (registration) 95.22m2(登記) | Driveway burden-road 私道負担・道路 | | Nothing, Northeast 4m width (contact the road width 14.8m) 無、北東4m幅(接道幅14.8m) | Completion date 完成時期(築年月) | | November 2013 2013年11月 | Address 住所 | | Kawasaki City, Kanagawa Prefecture, Kawasaki-ku Honcho 2 神奈川県川崎市川崎区本町2 | Traffic 交通 | | JR Tokaido Line "Kawasaki" walk 11 minutes JR Keihin Tohoku Line "Kawasaki" walk 11 minutes Keikyū Daishi Line "Keikyu Kawasaki" walk 8 minutes JR東海道本線「川崎」歩11分 JR京浜東北線「川崎」歩11分 京急大師線「京急川崎」歩8分
| Related links 関連リンク | | [Related Sites of this company] 【この会社の関連サイト】 | Contact お問い合せ先 | | Cosmo Kosan (Ltd.) TEL: 0800-805-6448 [Toll free] mobile phone ・ Also available from PHS Caller ID is not notified Please contact the "saw SUUMO (Sumo)" If it does not lead, If the real estate company コスモ興産(株)TEL:0800-805-6448【通話料無料】携帯電話・PHSからもご利用いただけます 発信者番号は通知されません 「SUUMO(スーモ)を見た」と問い合わせください つながらない方、不動産会社の方は
| Building coverage, floor area ratio 建ぺい率・容積率 | | 80% ・ 240 percent 80%・240% | Time residents 入居時期 | | Immediate available 即入居可 | Land of the right form 土地の権利形態 | | Ownership 所有権 | Structure and method of construction 構造・工法 | | Wooden 2-story 木造2階建 | Use district 用途地域 | | Commerce 商業 | Other limitations その他制限事項 | | Regulations have by the Landscape Act, Fire zones 景観法による規制有、防火地域 | Overview and notices その他概要・特記事項 | | Facilities: Public Water Supply, This sewage, City gas, Building confirmation number: first 13UDI2T Ken 00175, Parking: car space 設備:公営水道、本下水、都市ガス、建築確認番号:第13UDI2T建00175、駐車場:カースペース | Company profile 会社概要 | | <Mediation> Governor of Kanagawa Prefecture (7) No. Cosmo Kosan Co., Ltd. Yubinbango210-0002 Kawasaki City, Kanagawa Prefecture, Kawasaki-ku, the first 016,531 Enomachi 2-14 <仲介>神奈川県知事(7)第016531号コスモ興産(株)〒210-0002 神奈川県川崎市川崎区榎町2-14 |
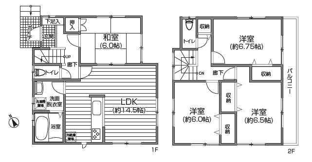
Floor plan間取り図  4LDK of room
ゆとりの4LDK
Livingリビング  14.5 Pledge of is LDK.
14.5帖のLDKです。
Floor plan間取り図  49,800,000 yen, 4LDK, Land area 116.06 sq m , Building area 95.22 sq m 4LDK
4980万円、4LDK、土地面積116.06m2、建物面積95.22m2 4LDK
 Rendering (appearance)
完成予想図(外観)
Parking lot駐車場  It is a state in which gate is open.
門扉が開いた状態です。
 Now has a gate.
門扉が付きました。
Garden庭  flower bed
花壇
Local appearance photo現地外観写真  Outer wall with a self-cleaning function
セルフクリーニング機能付の外壁
Kitchenキッチン  Panasonic system Kitchen. Popular White.
パナソニック製システムキッチン。人気のホワイト。
Livingリビング  It exhibited a table model made of paper.
紙で出来たテーブル模型を展示しています。
 View of the living room from the kitchen
キッチンからリビングの眺め
Entrance玄関  Intercom integrated post
インターフォン一体型ポスト
Non-living roomリビング以外の居室  2 Kaiyoshitsu 6.75 Pledge.
2階洋室6.75帖。
Bathroom浴室  The unit bus there is a window.
ユニットバスには窓があります。
Non-living roomリビング以外の居室  Shooting a Japanese-style room from the living room
リビングから和室を撮影
Toiletトイレ  1st floor, With the second floor each floor toilet.
1階、2階各階トイレ付。
Local photos, including front road前面道路含む現地写真  Public road 4m. As the car is not the most.
公道4m。車の通りは殆どありません。
Kitchenキッチン  There is a window in the kitchen.
キッチンには窓があります。
Livingリビング  With floor heating
床暖房付
Entrance玄関  Entrance door of the card key support
カードキー対応の玄関扉
Shopping centreショッピングセンター  Lazona to Kawasaki 930m specialty store, restaurant, 109 Cinemas and so many.
ラゾーナ川崎まで930m 専門店、飲食店、109シネマズ等々多数。
Station駅  880m 3 routes fly to Kawasaki Station. Yokohama, Downtown comfortable access.
川崎駅まで880m 3路線乗り入れ。横浜、都心快適アクセス。
 Convenient to 530m Haneda Airport available until Keikyu Kawasaki Station
京急川崎駅まで530m 羽田空港利用にも便利
Other Equipmentその他設備  Smart counter of the apron and back guard shape ・ Handle of aluminum line and refreshing ・ In flat until the feet, Silver stocker of design that was clean
前垂れとバックガード形状のスマートなカウンター・スッキリとしたアルミラインの取っ手・足元までフラットで、スッキリしたデザインのシルバーストッカー
 ・ Hard to break artificial marble ball ・ Stylish tray, such as cosmetic accessories is definitive
・割れにくい人造大理石ボール・化粧小物などがおけるスタイリッシュなトレイ
Power generation ・ Hot water equipment発電・温水設備  Enhance the thermal efficiency by effectively utilizing the waste heat that occurs when a boil water, If "energy-saving water heater" Eco Jaws, Herase the amount of gas, Since CO2 emissions also become less of, It can contribute to the prevention of global warming, In addition you can also save gas rates.
お湯を沸かすときに発生する排熱を有効利用して熱効率を高めた、“省エネ給湯器”エコジョーズなら、ガスの使用量を減らせ、CO2の排出も少なくなるので、地球温暖化防止に貢献でき、さらにガス料金の節約もできます。
 Local guide map
現地案内図
Other Equipmentその他設備  Adopt a wave counter with a space also put the basin
洗面器を置いてもゆとりのあるウェーブカウンターを採用
 ・ Since the floor of the pattern is grid processing to align in the same direction, Happy to clean.
・床のパターンが同一方向にそろうグリッド加工なので、お掃除もラクラク。
 ・ Tub of Relief hard insulation specifications heat. Saving energy costs and the number of times also to reduce reheating. ・ Cleaning folding two of Ease door because packing Les
・熱をにがしにくい断熱仕様の浴槽。追い炊き回数も減らせて光熱費を節約。・パッキンレスなのでお掃除がラクラクな2枚折りドア
Supermarketスーパー  240m until Okay store
オーケーストアまで240m
Convenience storeコンビニ  240m to Seven-Eleven
セブンイレブンまで240m
Primary school小学校  Miyamae until elementary school 900m
宮前小学校まで900m
Junior high school中学校  Fujimi 1100m until junior high school
富士見中学校まで1100m
Kindergarten ・ Nursery幼稚園・保育園  400m until the nursery Aiiku
保育所あいいくまで400m
Other Environmental Photoその他環境写真  East exit neighborhood of 900m international richness to silver willow Street Features.
銀柳街まで900m 国際色豊かさが特長の東口界隈。
Location
|