New Homes » Kanto » Kanagawa Prefecture » Kawasaki-ku
 
| | Kawasaki-shi, Kanagawa-ku, Kawasaki 神奈川県川崎市川崎区 |
| Keikyū Daishi Line "Higashimonzen" walk 5 minutes 京急大師線「東門前」歩5分 |
| Station Super ・ Home center, Also Daishikoen nearly. Small room of the hobby is in the kitchen next to, Rooftop balcony Yes. 駅前はスーパー・ホームセンター、また大師公園も近く。キッチン隣には趣味の小部屋、屋上バルコニー有。 |
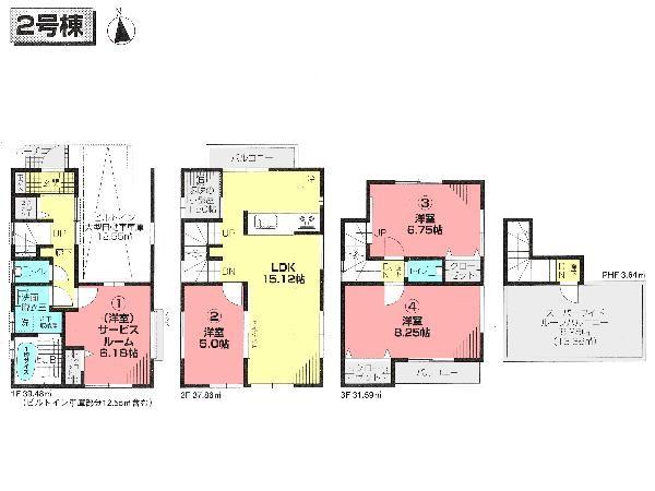
Features pickup 特徴ピックアップ | | Corresponding to the flat-35S / Pre-ground survey / 2 along the line more accessible / Energy-saving water heaters / Super close / It is close to the city / Facing south / System kitchen / Bathroom Dryer / Flat to the station / A quiet residential area / LDK15 tatami mats or more / Around traffic fewer / Starting station / Shaping land / Washbasin with shower / Face-to-face kitchen / Toilet 2 places / Bathroom 1 tsubo or more / 2 or more sides balcony / Double-glazing / Warm water washing toilet seat / The window in the bathroom / TV monitor interphone / Mu front building / Water filter / Three-story or more / Living stairs / City gas / All rooms are two-sided lighting / roof balcony / Flat terrain / terrace フラット35Sに対応 /地盤調査済 /2沿線以上利用可 /省エネ給湯器 /スーパーが近い /市街地が近い /南向き /システムキッチン /浴室乾燥機 /駅まで平坦 /閑静な住宅地 /LDK15畳以上 /周辺交通量少なめ /始発駅 /整形地 /シャワー付洗面台 /対面式キッチン /トイレ2ヶ所 /浴室1坪以上 /2面以上バルコニー /複層ガラス /温水洗浄便座 /浴室に窓 /TVモニタ付インターホン /前面棟無 /浄水器 /3階建以上 /リビング階段 /都市ガス /全室2面採光 /ルーフバルコニー /平坦地 /テラス | Price 価格 | | 39,800,000 yen 3980万円 | Floor plan 間取り | | 3LDK + S (storeroom) 3LDK+S(納戸) | Units sold 販売戸数 | | 1 units 1戸 | Land area 土地面積 | | 54.59 sq m (measured) 54.59m2(実測) | Building area 建物面積 | | 112.57 sq m (measured), Among the first floor garage 12.55 sq m 112.57m2(実測)、うち1階車庫12.55m2 | Driveway burden-road 私道負担・道路 | | Nothing, North 4m width 無、北4m幅 | Completion date 完成時期(築年月) | | March 2014 2014年3月 | Address 住所 | | Kawasaki-shi, Kanagawa-ku, Kawasaki-Daishi-cho 神奈川県川崎市川崎区大師町 | Traffic 交通 | | Keikyū Daishi Line "Higashimonzen" walk 5 minutes Keikyū Daishi Line "Kawasaki Daishi" walk 7 minutes JR Keihin Tohoku Line "Kawasaki" a 12-minute stand hectare 8 minutes by bus 京急大師線「東門前」歩5分 京急大師線「川崎大師」歩7分 JR京浜東北線「川崎」バス12分台町歩8分
| Related links 関連リンク | | [Related Sites of this company] 【この会社の関連サイト】 | Person in charge 担当者より | | Person in charge of real-estate and building FP Nishimura TsuyoshiKo Age: 40 Daigyokai experience: In the eight years, Ltd. Anshin My Home, To dispel concerns about real estate purchase even a little, We offer peace of mind as a professional real estate sales. "Appropriate purchase price," "mortgage rates comparison," "disaster", etc., Please feel free to contact us. 担当者宅建FP西村 剛行年齢:40代業界経験:8年株式会社あんしんマイホームでは、不動産購入に対する不安を少しでも払拭し、不動産販売のプロとして安心をご提供いたします。「適正な購入価格」「住宅ローン金利比較」「災害」等、お気軽にご相談下さい。 | Contact お問い合せ先 | | TEL: 0800-602-5886 [Toll free] mobile phone ・ Also available from PHS Caller ID is not notified Please contact the "saw SUUMO (Sumo)" If it does not lead, If the real estate company TEL:0800-602-5886【通話料無料】携帯電話・PHSからもご利用いただけます 発信者番号は通知されません 「SUUMO(スーモ)を見た」と問い合わせください つながらない方、不動産会社の方は
| Building coverage, floor area ratio 建ぺい率・容積率 | | 80% ・ 240 percent 80%・240% | Time residents 入居時期 | | Consultation 相談 | Land of the right form 土地の権利形態 | | Ownership 所有権 | Structure and method of construction 構造・工法 | | Wooden three-story 木造3階建 | Use district 用途地域 | | Residential 近隣商業 | Other limitations その他制限事項 | | Regulations have by the Landscape Act, Height district, Quasi-fire zones, Matrix S is the closet, Front road becomes public road plan 景観法による規制有、高度地区、準防火地域、間取Sは納戸、前面道路は公道になる予定 | Overview and notices その他概要・特記事項 | | Contact: Nishimura TsuyoshiKo, Facilities: Public Water Supply, This sewage, City gas, Building confirmation number: 3120-00427, Parking: Garage 担当者:西村 剛行、設備:公営水道、本下水、都市ガス、建築確認番号:3120-00427、駐車場:車庫 | Company profile 会社概要 | | <Mediation> Governor of Kanagawa Prefecture (1) the first 027,909 No. FP housing counseling network Co., Ltd. Anshin My Home Yubinbango213-0011 Kawasaki City, Kanagawa Prefecture Takatsu-ku, Hisamoto 3-13-10 <仲介>神奈川県知事(1)第027909号FP住宅相談ネットワーク(株)あんしんマイホーム〒213-0011 神奈川県川崎市高津区久本3-13-10 |
Floor plan間取り図  39,800,000 yen, 3LDK+S, Land area 54.59 sq m , Building area 112.57 sq m
3980万円、3LDK+S、土地面積54.59m2、建物面積112.57m2
Compartment figure区画図  39,800,000 yen, 3LDK+S, Land area 54.59 sq m , Building area 112.57 sq m
3980万円、3LDK+S、土地面積54.59m2、建物面積112.57m2
Location
|