New Homes » Kanto » Kanagawa Prefecture » Kawasaki-ku
 
| | Kawasaki-shi, Kanagawa-ku, Kawasaki 神奈川県川崎市川崎区 |
| Keikyū Daishi Line "Kawasaki Daishi" walk 4 minutes 京急大師線「川崎大師」歩4分 |
| ◆ Kawasaki Daishi station 4 minutes walk ◆ Land 21 square meters shaping land ◆ Spacious LDK23.3 Pledge ◆ 2LDK + 2S + garage ◆ A quiet residential area ◆ Color selection possible (depending on the contract period) ◆ Keikyu full-time property! Please feel free to contact us. 0120-334-711 Contact: Yamaoka ◆川崎大師駅 徒歩4分◆土地21坪 整形地◆広々 LDK23.3帖◆2LDK+2S+車庫◆閑静な住宅地◆カラーセレクト可能(ご契約時期により異なります)◆京急専任物件!お気軽にお問合せ下さい。0120-334-711 担当:山岡 |
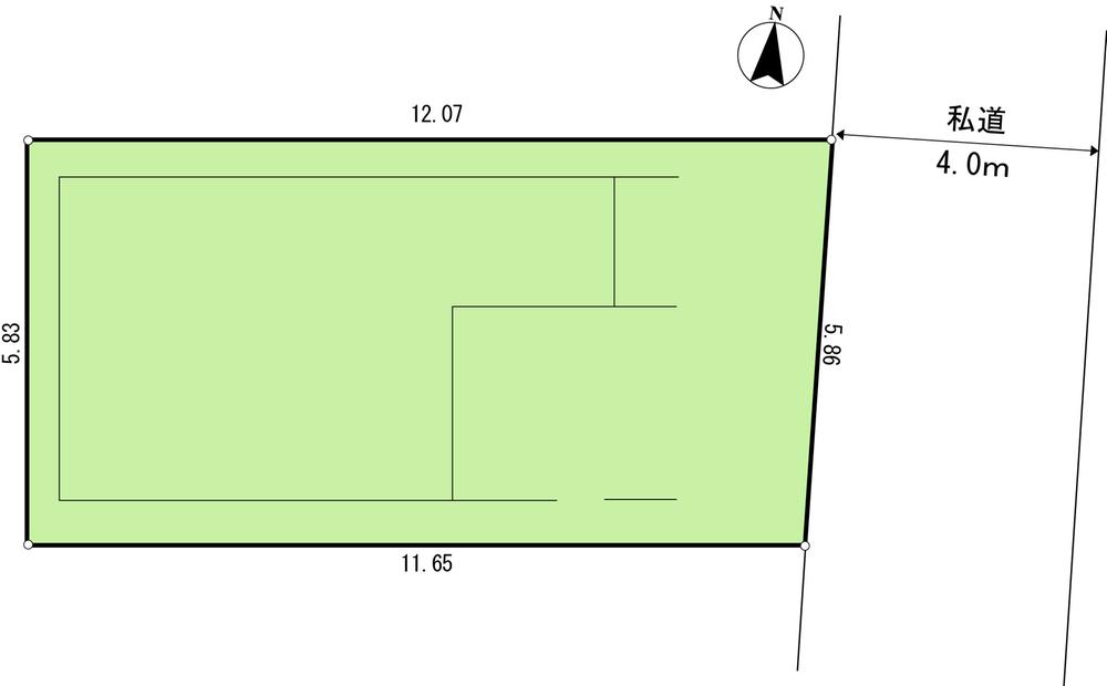
Features pickup 特徴ピックアップ | | LDK20 tatami mats or more / All room storage / Flat to the station / A quiet residential area / Shaping land / Face-to-face kitchen / Three-story or more / City gas / Flat terrain LDK20畳以上 /全居室収納 /駅まで平坦 /閑静な住宅地 /整形地 /対面式キッチン /3階建以上 /都市ガス /平坦地 | Price 価格 | | 39,800,000 yen 3980万円 | Floor plan 間取り | | 2LDK + 2S (storeroom) 2LDK+2S(納戸) | Units sold 販売戸数 | | 1 units 1戸 | Land area 土地面積 | | 69.61 sq m (registration) 69.61m2(登記) | Building area 建物面積 | | 119.88 sq m (registration), Among the first floor garage 8.91 sq m 119.88m2(登記)、うち1階車庫8.91m2 | Driveway burden-road 私道負担・道路 | | Share equity 139.61 sq m × (13270 / 139610), East 4m width (contact the road width 5.8m) 共有持分139.61m2×(13270/139610)、東4m幅(接道幅5.8m) | Completion date 完成時期(築年月) | | April 2014 2014年4月 | Address 住所 | | Kawasaki City, Kanagawa Prefecture, Kawasaki-ku, Nakase 2 神奈川県川崎市川崎区中瀬2 | Traffic 交通 | | Keikyū Daishi Line "Kawasaki Daishi" walk 4 minutes 京急大師線「川崎大師」歩4分
| Person in charge 担当者より | | Rep Yamaoka 担当者山岡 | Contact お問い合せ先 | | TEL: 0800-603-0505 [Toll free] mobile phone ・ Also available from PHS Caller ID is not notified Please contact the "saw SUUMO (Sumo)" If it does not lead, If the real estate company TEL:0800-603-0505【通話料無料】携帯電話・PHSからもご利用いただけます 発信者番号は通知されません 「SUUMO(スーモ)を見た」と問い合わせください つながらない方、不動産会社の方は
| Building coverage, floor area ratio 建ぺい率・容積率 | | 60% ・ 160% 60%・160% | Time residents 入居時期 | | April 2014 schedule 2014年4月予定 | Land of the right form 土地の権利形態 | | Ownership 所有権 | Structure and method of construction 構造・工法 | | Wooden three-story 木造3階建 | Use district 用途地域 | | Two dwellings 2種住居 | Other limitations その他制限事項 | | ※ Completion ・ Although delivery will be 2014 or after April, Sale price because of the consumption tax-included price, There is no additional 3% of the burden. ※完成・引渡しは平成26年4月以降となりますが、販売価格は消費税込価格の為、別途3%の負担はございません。 | Overview and notices その他概要・特記事項 | | Contact: Yamaoka, Facilities: Public Water Supply, This sewage, City gas, Building confirmation number: 13UDI2S Ken 02112, Parking: Garage 担当者:山岡、設備:公営水道、本下水、都市ガス、建築確認番号:13UDI2S建02112、駐車場:車庫 | Company profile 会社概要 | | <Mediation> Minister of Land, Infrastructure and Transport (13) No. 000902 (one company) Real Estate Association (Corporation) metropolitan area real estate Fair Trade Council member Keikyu Real Estate Co., Ltd., Kawasaki Yubinbango210-0007 Kawasaki City, Kanagawa Prefecture, Kawasaki-ku, Ekimaehon cho 5-2 Oboshi Kawasaki building 10 floors <仲介>国土交通大臣(13)第000902号(一社)不動産協会会員 (公社)首都圏不動産公正取引協議会加盟京急不動産(株)川崎店〒210-0007 神奈川県川崎市川崎区駅前本町5-2 大星川崎ビル10階 |
 Rendering (appearance)
完成予想図(外観)
Floor plan間取り図  39,800,000 yen, 2LDK + 2S (storeroom), Land area 69.61 sq m , Building area 119.88 sq m
3980万円、2LDK+2S(納戸)、土地面積69.61m2、建物面積119.88m2
Compartment figure区画図  39,800,000 yen, 2LDK + 2S (storeroom), Land area 69.61 sq m , Building area 119.88 sq m
3980万円、2LDK+2S(納戸)、土地面積69.61m2、建物面積119.88m2
Location
|