New Homes » Kanto » Kanagawa Prefecture » Kawasaki-ku
 
| | Kawasaki-shi, Kanagawa-ku, Kawasaki 神奈川県川崎市川崎区 |
| Keikyū Daishi Line "Higashimonzen" walk 15 minutes 京急大師線「東門前」歩15分 |
| Good living environment per quiet residential area ・ The kitchen is adopted face-to-face kitchen bouncing of conversation ・ Good day per southwestward dwelling unit ・ During preview accepted per building completed already, Please feel free to contact us. 閑静な住宅街につき住環境良好・キッチンは会話の弾む対面キッチン採用・南西向き住戸につき日当たり良好・建物完成済につき内覧受付中、お気軽にお問い合わせください。 |
| Immediate Available, System kitchen, All room storage, A quiet residential area, LDK15 tatami mats or more, Face-to-face kitchen, Toilet 2 places, The window in the bathroom, Southwestward, Three-story or more, City gas, Storeroom, All rooms are two-sided lighting 即入居可、システムキッチン、全居室収納、閑静な住宅地、LDK15畳以上、対面式キッチン、トイレ2ヶ所、浴室に窓、南西向き、3階建以上、都市ガス、納戸、全室2面採光 |
Features pickup 特徴ピックアップ | | Immediate Available / System kitchen / All room storage / A quiet residential area / LDK15 tatami mats or more / Face-to-face kitchen / Toilet 2 places / The window in the bathroom / Southwestward / Three-story or more / City gas / Storeroom / All rooms are two-sided lighting 即入居可 /システムキッチン /全居室収納 /閑静な住宅地 /LDK15畳以上 /対面式キッチン /トイレ2ヶ所 /浴室に窓 /南西向き /3階建以上 /都市ガス /納戸 /全室2面採光 | Price 価格 | | 29,800,000 yen 2980万円 | Floor plan 間取り | | 1LDK + 2S (storeroom) 1LDK+2S(納戸) | Units sold 販売戸数 | | 2 units 2戸 | Land area 土地面積 | | 64.52 sq m (19.51 tsubo) (Registration) 64.52m2(19.51坪)(登記) | Building area 建物面積 | | 79.58 sq m ~ 81.81 sq m (24.07 tsubo ~ 24.74 tsubo) (Registration) 79.58m2 ~ 81.81m2(24.07坪 ~ 24.74坪)(登記) | Driveway burden-road 私道負担・道路 | | Alley-like portion: 18.75 sq m ~ 21.02 sq m including 路地状部分:18.75m2 ~ 21.02m2含 | Completion date 完成時期(築年月) | | 2013 end of October 2013年10月末 | Address 住所 | | Kawasaki City, Kanagawa Prefecture, Kawasaki-ku, Yotsuyakami cho 神奈川県川崎市川崎区四谷上町 | Traffic 交通 | | Keikyū Daishi Line "Higashimonzen" walk 15 minutes Keikyū Daishi Line "Kawasaki Daishi" walk 20 minutes Keikyū Daishi Line "industrial road" walking 19 minutes 京急大師線「東門前」歩15分 京急大師線「川崎大師」歩20分 京急大師線「産業道路」歩19分
| Person in charge 担当者より | | We are dedicating personnel system for each person in charge customers. [Your tour of the day is also possible! ] Inquiry of the Property Century 21 Global Home "residence of the Information Center" sales staff to please feel free to! 0800-603-7494 担当者お客様毎に専属担当者制です。【当日のご見学も可能です!】本物件のお問い合わせはセンチュリー21グローバルホーム「住まいの情報館」営業スタッフまでお気軽にどうぞ!0800-603-7494 | Contact お問い合せ先 | | TEL: 0800-603-7494 [Toll free] mobile phone ・ Also available from PHS Caller ID is not notified Please contact the "saw SUUMO (Sumo)" If it does not lead, If the real estate company TEL:0800-603-7494【通話料無料】携帯電話・PHSからもご利用いただけます 発信者番号は通知されません 「SUUMO(スーモ)を見た」と問い合わせください つながらない方、不動産会社の方は
| Building coverage, floor area ratio 建ぺい率・容積率 | | Building coverage: 60%, Volume ratio: 200% 建ぺい率:60%、容積率:200% | Time residents 入居時期 | | Immediate available 即入居可 | Land of the right form 土地の権利形態 | | Ownership 所有権 | Use district 用途地域 | | One dwelling 1種住居 | Other limitations その他制限事項 | | Irregular land 不整形地 | Overview and notices その他概要・特記事項 | | The person in charge: is dedicating personnel system for each customer. 担当者:お客様毎に専属担当者制です。 | Company profile 会社概要 | | <Mediation> Kanagawa Governor (2) the first 026,326 No. Century 21 Global Home Co., Ltd. Yubinbango221-0825 Yokohama-shi, Kanagawa, Kanagawa-ku, Sorimachi 4-37-3 Nissin building Yokohama Sorimachi first floor ・ Second floor <仲介>神奈川県知事(2)第026326号センチュリー21グローバルホーム(株)〒221-0825 神奈川県横浜市神奈川区反町4-37-3 日伸ビル横浜反町1階・2階 |
Local appearance photo現地外観写真  2013 December 17, shooting 1 Building
2013年12月17日撮影 1号棟
Livingリビング  2013 December 17, shooting 1 Building
2013年12月17日撮影 1号棟
Kitchenキッチン  2013 December 17, shooting 1 Building
2013年12月17日撮影 1号棟
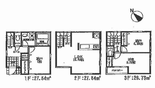
Floor plan間取り図  (1 Building), Price 29,800,000 yen, 1LDK+2S, Land area 64.52 sq m , Building area 81.81 sq m
(1号棟)、価格2980万円、1LDK+2S、土地面積64.52m2、建物面積81.81m2
Local appearance photo現地外観写真  2013 December 17, shooting Building 2
2013年12月17日撮影 2号棟
Livingリビング  2013 December 17, shooting 1 Building
2013年12月17日撮影 1号棟
Bathroom浴室  2013 December 17, shooting 1 Building
2013年12月17日撮影 1号棟
Kitchenキッチン  2013 December 17, shooting Building 2
2013年12月17日撮影 2号棟
Non-living roomリビング以外の居室  2013 December 17, shooting 1 Building
2013年12月17日撮影 1号棟
Wash basin, toilet洗面台・洗面所  2013 December 17, shooting 1 Building
2013年12月17日撮影 1号棟
Toiletトイレ  2013 December 17, shooting 1 Building
2013年12月17日撮影 1号棟
Other introspectionその他内観  2013 December 17, shooting 1 Building
2013年12月17日撮影 1号棟
View photos from the dwelling unit住戸からの眺望写真  2013 December 17, shooting Building 2
2013年12月17日撮影 2号棟
 The entire compartment Figure
全体区画図
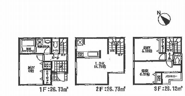
Floor plan間取り図  (Building 2), Price 29,800,000 yen, 1LDK+2S, Land area 64.52 sq m , Building area 79.58 sq m
(2号棟)、価格2980万円、1LDK+2S、土地面積64.52m2、建物面積79.58m2
Livingリビング  2013 December 17, shooting Building 2
2013年12月17日撮影 2号棟
Bathroom浴室  2013 December 17, shooting Building 2
2013年12月17日撮影 2号棟
Non-living roomリビング以外の居室  2013 December 17, shooting Building 2
2013年12月17日撮影 2号棟
Wash basin, toilet洗面台・洗面所  2013 December 17, shooting Building 2
2013年12月17日撮影 2号棟
Toiletトイレ  2013 December 17, shooting Building 2
2013年12月17日撮影 2号棟
Other introspectionその他内観  2013 December 17, shooting Building 2
2013年12月17日撮影 2号棟
Location
|