New Homes » Kanto » Kanagawa Prefecture » Kawasaki Miyamae-ku
 
| | Kawasaki City, Kanagawa Prefecture Miyamae-ku, 神奈川県川崎市宮前区 |
| Denentoshi Tokyu "Miyazakidai" walk 9 minutes 東急田園都市線「宮崎台」歩9分 |
| A quiet residential area of the popular Denentoshi wayside ・ Good day per south waterway ・ LDK with under-floor heating ・ Car space two Allowed ・ Local will guide you, Please feel free to contact us. 人気の田園都市線沿線の閑静な住宅街・南側水路につき日当たり良好・LDK床暖房付・カースペース2台可・現地ご案内致します、お気軽にお問い合わせください。 |
| Second floor Western-style all rooms 6 quires more, Storage Yes ・ LDK spacious 19 Pledge, Face-to-face kitchen adopt bouncing of conversation ・ Color monitor Hong, Bathroom heating dryer, Washlet such as in-room facilities enhancement 2階洋室全室6帖以上、収納有・LDK広々19帖、会話の弾む対面キッチン採用・カラーモニターホン、浴室暖房乾燥機、ウォシュレット等室内設備充実 |
Features pickup 特徴ピックアップ | | Year Available / Parking two Allowed / LDK18 tatami mats or more / System kitchen / Bathroom Dryer / All room storage / A quiet residential area / Or more before road 6m / Japanese-style room / Washbasin with shower / Face-to-face kitchen / Wide balcony / Toilet 2 places / Bathroom 1 tsubo or more / 2-story / South balcony / Double-glazing / Warm water washing toilet seat / loft / Nantei / Underfloor Storage / The window in the bathroom / TV monitor interphone / Dish washing dryer / Walk-in closet / Water filter / City gas / All rooms southwestward / Flat terrain / Floor heating 年内入居可 /駐車2台可 /LDK18畳以上 /システムキッチン /浴室乾燥機 /全居室収納 /閑静な住宅地 /前道6m以上 /和室 /シャワー付洗面台 /対面式キッチン /ワイドバルコニー /トイレ2ヶ所 /浴室1坪以上 /2階建 /南面バルコニー /複層ガラス /温水洗浄便座 /ロフト /南庭 /床下収納 /浴室に窓 /TVモニタ付インターホン /食器洗乾燥機 /ウォークインクロゼット /浄水器 /都市ガス /全室南西向き /平坦地 /床暖房 | Event information イベント情報 | | Local guide Board (Please be sure to ask in advance) schedule / Every Saturday, Sunday and public holidays time / 9:00 ~ 21:00 ※ Local guide the Board does not matter especially time. For example, a weekday night 20 pm ~ , 21 pm ~ Also we will correspond (such as Wednesday ・ First except Tuesdays). Please feel free to tell us. 現地案内会(事前に必ずお問い合わせください)日程/毎週土日祝時間/9:00 ~ 21:00※現地案内会は特に時間は問いません。例えば平日夜20時 ~ 、21時 ~ などでも対応いたします(水曜日・第1火曜日を除きます)。お気軽にお申し付けください。 | Price 価格 | | 54,800,000 yen 5480万円 | Floor plan 間取り | | 4LDK 4LDK | Units sold 販売戸数 | | 1 units 1戸 | Total units 総戸数 | | 1 units 1戸 | Land area 土地面積 | | 141.24 sq m (42.72 tsubo) (Registration) 141.24m2(42.72坪)(登記) | Building area 建物面積 | | 104.74 sq m (31.68 tsubo) (Registration) 104.74m2(31.68坪)(登記) | Driveway burden-road 私道負担・道路 | | Nothing, East 6.5m width 無、東6.5m幅 | Completion date 完成時期(築年月) | | October 2013 2013年10月 | Address 住所 | | Kawasaki-shi, Kanagawa-ku, Miyamae Miyazaki 3 神奈川県川崎市宮前区宮崎3 | Traffic 交通 | | Denentoshi Tokyu "Miyazakidai" walk 9 minutes Denentoshi Tokyu "Miyamaedaira" walk 14 minutes JR Nambu Line "Musashimizonokuchi" walk 30 minutes 東急田園都市線「宮崎台」歩9分 東急田園都市線「宮前平」歩14分 JR南武線「武蔵溝ノ口」歩30分
| Related links 関連リンク | | [Related Sites of this company] 【この会社の関連サイト】 | Person in charge 担当者より | | We are dedicating personnel system for each person in charge customers. 担当者お客様毎に専属担当者制です。 | Contact お問い合せ先 | | TEL: 0800-603-7494 [Toll free] mobile phone ・ Also available from PHS Caller ID is not notified Please contact the "saw SUUMO (Sumo)" If it does not lead, If the real estate company TEL:0800-603-7494【通話料無料】携帯電話・PHSからもご利用いただけます 発信者番号は通知されません 「SUUMO(スーモ)を見た」と問い合わせください つながらない方、不動産会社の方は
| Building coverage, floor area ratio 建ぺい率・容積率 | | Fifty percent ・ 80% 50%・80% | Time residents 入居時期 | | Consultation 相談 | Land of the right form 土地の権利形態 | | Ownership 所有権 | Structure and method of construction 構造・工法 | | Wooden 2-story 木造2階建 | Use district 用途地域 | | One low-rise 1種低層 | Other limitations その他制限事項 | | Residential land development construction regulation area, Height district, Height ceiling Yes, Site area minimum Yes, On-site part of high-voltage lines under 宅地造成工事規制区域、高度地区、高さ最高限度有、敷地面積最低限度有、敷地内一部高圧線下 | Overview and notices その他概要・特記事項 | | The person in charge: is dedicating personnel system for each customer. , Facilities: This sewage, City gas, Building confirmation number: first H25SBC- Make 00732Y No., Parking: car space 担当者:お客様毎に専属担当者制です。、設備:本下水、都市ガス、建築確認番号:第H25SBC-確00732Y号、駐車場:カースペース | Company profile 会社概要 | | <Mediation> Kanagawa Governor (2) the first 026,326 No. Century 21 Global Home Co., Ltd. Yubinbango221-0825 Yokohama-shi, Kanagawa, Kanagawa-ku, Sorimachi 4-37-3 Nissin building Yokohama Sorimachi first floor ・ Second floor <仲介>神奈川県知事(2)第026326号センチュリー21グローバルホーム(株)〒221-0825 神奈川県横浜市神奈川区反町4-37-3 日伸ビル横浜反町1階・2階 |
Station駅  9-minute walk from Shibuya to 21 minutes Denentoshi "miyazakidai station". Elementary school is also near good location!
渋谷まで21分の田園都市線『宮崎台駅』から徒歩9分。小学校もほど近い好立地です!
Local appearance photo現地外観写真  Many space in each direction, Day is good! September 19, 2013 shooting
各方向に空間が多く、日当たり良好です!2013年9月19日撮影
Livingリビング  About 19.8 tatami. kitchen ・ dining ・ It will be firmly use wide as the living! 2013 October 15, shooting
約19.8畳。キッチン・ダイニング・リビングとしっかり使える広さになります!2013年10月15日撮影
Kitchenキッチン  Face-to-face kitchen considering the sense of unity with the living. Dish washing and drying machine ・ It features a water purifier. 2013 October 15, shooting
リビングとの一体感を考えた対面キッチン。食器洗浄乾燥機・浄水器を備えています。2013年10月15日撮影
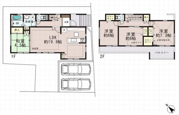
Floor plan間取り図  54,800,000 yen, 4LDK, Land area 141.24 sq m , Building area 104.74 sq m All rooms southwestward, It is a two-story 4LDK, which is also a little garden.
5480万円、4LDK、土地面積141.24m2、建物面積104.74m2 全室南西向きで、ちょっとした庭もある2階建て4LDKです。
Local appearance photo現地外観写真  In the place where there is a shovel car, It is under construction a parallel two available parking car space. September 19, 2013 shooting
ショベルカーがあるところに、並列2台駐車可能なカースペースを施工中です。2013年9月19日撮影
Livingリビング  Living as seen from the kitchen part ・ Is a Japanese-style room. Cloudy weather of the is regrettable ・ ・ ・ . 2013 October 15, shooting
キッチン部から見たリビング・和室です。曇天なのが残念です・・・。2013年10月15日撮影
Bathroom浴室  1 pyeong type, It is the unit bus with a bathroom dryer. 2013 October 15, shooting
1坪タイプ、浴室乾燥機付のユニットバスです。2013年10月15日撮影
Non-living roomリビング以外の居室  1F that Japanese and about 19.8 tatami mats of living continues. It will be to connect and about 24.3 tatami large space! 2013 October 15, shooting
和室と約19.8畳のリビングが続く1F。つなげると約24.3畳の大型スペースになります!2013年10月15日撮影
Entrance玄関  It is decorated in muted colors. 2013 October 15, shooting.
落ち着いた色合いの内装です。2013年10月15日撮影。
Wash basin, toilet洗面台・洗面所  Vanity with a triple mirror. There is a separate storage space in the wash room. 2013 October 15, shooting
三面鏡付の化粧台。洗面室には別に収納スペースがあります。2013年10月15日撮影
Toiletトイレ  Shower is equipped with toilet. 2013 October 15, shooting
シャワートイレ付です。2013年10月15日撮影
Local photos, including front road前面道路含む現地写真  Tough hill to the station is not particularly! September 19, 2013 shooting
駅まできつい坂は特にないです!2013年9月19日撮影
Garden庭  Living is the southwest side of the garden. 2013 October 15, shooting
リビング南西側の庭です。2013年10月15日撮影
Balconyバルコニー  Length connected to the second floor of three rooms ~ It has a balcony. Although cloudy weather is today, Per Tamehi of southwest-facing is down pat! 2013 October 15, shooting
2階の3室に連なる長 ~ いバルコニーです。今日は曇天ですが、南西向きの為陽当たりはバッチリです!2013年10月15日撮影
Station駅  21 minutes without transfer to 720m Shibuya to miyazakidai station. Tokyo access to each district is also convenient.
宮崎台駅まで720m 渋谷まで乗り換えなしで21分。都内各方面へのアクセスも便利です。
Livingリビング  There are also housed in the living room itself. 2013 October 15, shooting
リビング自体にも収納があります。2013年10月15日撮影
Non-living roomリビング以外の居室  Tatami of Hiroshi Japanese-style, Not yet put in order to prevent sunburn. 2013 October 15, shooting
洋和室の畳は、日焼け防止の為にまだ入れていません。2013年10月15日撮影
Balconyバルコニー  Before the main bedroom, The width of the balcony is also doubled! 2013 October 15, shooting
主寝室の前は、バルコニーの幅も倍です!2013年10月15日撮影
Supermarketスーパー  In the 800m in front of the station super until Miyazakidai Tokyu Store Chain, It is open until 1 am from 7 am!
宮崎台東急ストアまで800m 駅前のスーパーで、朝7時から午前1時まで営業しています!
Non-living roomリビング以外の居室  2 Kaiyoshitsu 6 tatami. Has become a window arrangement eyes was also consideration of the surrounding of your house. 2013 October 15, shooting
2階洋室6畳。周囲のお宅との目線も配慮した窓配置になっています。2013年10月15日撮影
Supermarketスーパー  Life until Miyazakidai shop 550m 10 May 15, pre-open ・ 16-day grand opening, It is possible to have been Hoyahoya shops!
ライフ宮崎台店まで550m 10月15日プレオープン・16日グランドオープンの、できたてほやほやなお店です!
Location
|