New Homes » Kanto » Kanagawa Prefecture » Kawasaki Miyamae-ku
 
| | Kawasaki City, Kanagawa Prefecture Miyamae-ku, 神奈川県川崎市宮前区 |
| JR Nambu Line "Musashi-Shinjo" bus 10 field Kawafu 3 minutes JR南武線「武蔵新城」バス10分野川歩3分 |
| ◎ urethane foam spray insulation material ◎ standard specification! Cool in summer, Winter realize the building of warm airtight high insulation! [Energy Conservation] Measures housing! [Flat 35S] Available! ◎発砲ウレタン吹付断熱材◎標準仕様!夏は涼しく、冬は暖かい高気密高断熱の建物を実現!【省エネルギー】対策住宅!【フラット35S】利用可能! |
| Yang per good, LDK15 tatami mats or more, A quiet residential area, Facing south, Floor heating, Or more before road 6m, Corresponding to the flat-35S, Vibration Control ・ Seismic isolation ・ Earthquake resistant, Immediate Available, 2 along the line more accessible, Energy-saving water heaters, Super close, Bathroom Dryer, All room storage, Corner lotese-style room, Shaping land, Washbasin with shower, Face-to-face kitchen, Wide balcony, Barrier-free, Toilet 2 places, Bathroom 1 tsubo or more, 2-story, South balcony, Double-glazing, Otobasu, Nantei, Underfloor Storage, The window in the bathroom, TV monitor interphone, Leafy residential area, Ventilation good, Dish washing dryer, Water filter, Living stairs, City gas, All rooms are two-sided lighting, Located on a hill 陽当り良好、LDK15畳以上、閑静な住宅地、南向き、床暖房、前道6m以上、フラット35Sに対応、制震・免震・耐震、即入居可、2沿線以上利用可、省エネ給湯器、スーパーが近い、浴室乾燥機、全居室収納、角地、和室、整形地、シャワー付洗面台、対面式キッチン、ワイドバルコニー、バリアフリー、トイレ2ヶ所、浴室1坪以上、2階建、南面バルコニー、複層ガラス、オートバス、南庭、床下収納、浴室に窓、TVモニタ付インターホン、緑豊かな住宅地、通風良好、食器洗乾燥機、浄水器、リビング階段、都市ガス、全室2面採光、高台に立地 |
Features pickup 特徴ピックアップ | | Corresponding to the flat-35S / Vibration Control ・ Seismic isolation ・ Earthquake resistant / Immediate Available / 2 along the line more accessible / Energy-saving water heaters / Super close / Facing south / Bathroom Dryer / Yang per good / All room storage / A quiet residential area / LDK15 tatami mats or more / Or more before road 6m / Corner lot / Japanese-style room / Shaping land / Washbasin with shower / Face-to-face kitchen / Wide balcony / Barrier-free / Toilet 2 places / Bathroom 1 tsubo or more / 2-story / South balcony / Double-glazing / Otobasu / Nantei / Underfloor Storage / The window in the bathroom / TV monitor interphone / Leafy residential area / Ventilation good / Dish washing dryer / Water filter / Living stairs / City gas / All rooms are two-sided lighting / Located on a hill / Floor heating フラット35Sに対応 /制震・免震・耐震 /即入居可 /2沿線以上利用可 /省エネ給湯器 /スーパーが近い /南向き /浴室乾燥機 /陽当り良好 /全居室収納 /閑静な住宅地 /LDK15畳以上 /前道6m以上 /角地 /和室 /整形地 /シャワー付洗面台 /対面式キッチン /ワイドバルコニー /バリアフリー /トイレ2ヶ所 /浴室1坪以上 /2階建 /南面バルコニー /複層ガラス /オートバス /南庭 /床下収納 /浴室に窓 /TVモニタ付インターホン /緑豊かな住宅地 /通風良好 /食器洗乾燥機 /浄水器 /リビング階段 /都市ガス /全室2面採光 /高台に立地 /床暖房 | Price 価格 | | 36,800,000 yen ~ 37,800,000 yen 3680万円 ~ 3780万円 | Floor plan 間取り | | 3LDK + S (storeroom) ~ 4LDK 3LDK+S(納戸) ~ 4LDK | Units sold 販売戸数 | | 3 units 3戸 | Total units 総戸数 | | 7 units 7戸 | Land area 土地面積 | | 105.34 sq m ~ 105.55 sq m (31.86 tsubo ~ 31.92 tsubo) (Registration) 105.34m2 ~ 105.55m2(31.86坪 ~ 31.92坪)(登記) | Building area 建物面積 | | 101.02 sq m ~ 114.27 sq m (30.55 tsubo ~ 34.56 tsubo) (measured) 101.02m2 ~ 114.27m2(30.55坪 ~ 34.56坪)(実測) | Driveway burden-road 私道負担・道路 | | Driveway 18.16 sq m 私道 18.16m2 | Completion date 完成時期(築年月) | | 2013 end of September 2013年9月末 | Address 住所 | | Kawasaki City, Kanagawa Prefecture Miyamae-ku, Nogawa 神奈川県川崎市宮前区野川 | Traffic 交通 | | JR Nambu Line "Musashi-Shinjo" bus 10 field Kawafu 3 minutes Tokyu Toyoko Line "Musashi Kosugi" bus 20 field Kawafu 3 minutes Denentoshi Tokyu "Saginuma" bus 24 field Kawafu 3 minutes JR南武線「武蔵新城」バス10分野川歩3分 東急東横線「武蔵小杉」バス20分野川歩3分 東急田園都市線「鷺沼」バス24分野川歩3分
| Person in charge 担当者より | | Rep Kubo Ikuko Age: 20 Daigyokai Experience: 1 year sales and, We are responsible for the office, It is a company of the mood maker! I asked to cherish always friendly seniors. It is in training to catch up quickly to serious and orthodox seniors! 担当者久保 郁子年齢:20代業界経験:1年営業兼、事務を担当しております、会社のムードメーカーです!優しい先輩方にいつも可愛がってもらってます。真面目で正統派な先輩たちに早く追いつけるよう修行中です! | Contact お問い合せ先 | | TEL: 0800-805-3775 [Toll free] mobile phone ・ Also available from PHS Caller ID is not notified Please contact the "saw SUUMO (Sumo)" If it does not lead, If the real estate company TEL:0800-805-3775【通話料無料】携帯電話・PHSからもご利用いただけます 発信者番号は通知されません 「SUUMO(スーモ)を見た」と問い合わせください つながらない方、不動産会社の方は
| Building coverage, floor area ratio 建ぺい率・容積率 | | Building coverage: 60%, Volume ratio: 200% 建ぺい率:60%、容積率:200% | Time residents 入居時期 | | Immediate available 即入居可 | Land of the right form 土地の権利形態 | | Ownership 所有権 | Use district 用途地域 | | One dwelling 1種住居 | Land category 地目 | | Residential land 宅地 | Other limitations その他制限事項 | | Regulations have by the Landscape Act, Residential land development construction regulation area, Height district, Quasi-fire zones, Shade limit Yes 景観法による規制有、宅地造成工事規制区域、高度地区、準防火地域、日影制限有 | Overview and notices その他概要・特記事項 | | Contact: Kubo Ikuko 担当者:久保 郁子 | Company profile 会社概要 | | <Mediation> Governor of Kanagawa Prefecture (1) No. 028167 (Ltd.) Danderyd ・ Rise Yubinbango216-0004 Kawasaki City, Kanagawa Prefecture Miyamae-ku, Saginuma 3-5-28 Aguriasu Saginuma B1 <仲介>神奈川県知事(1)第028167号(株)ダンデ・ライズ〒216-0004 神奈川県川崎市宮前区鷺沼3-5-28 アグリアス鷺沼B1 |
Local appearance photo現地外観写真  Mansion of chalk in the fashionable
オシャレで白亜の邸宅
Garden庭  Garden on the south side
南側に庭付き
Livingリビング  Bright and airy LD 18.6 Pledge!
明るく開放的なLDは18.6帖!
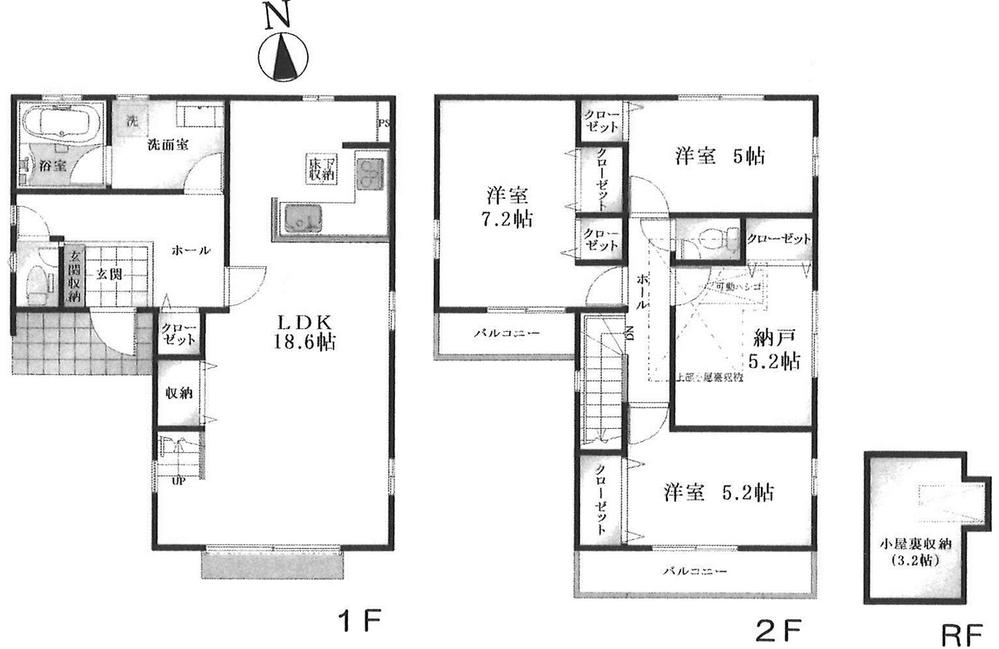
Floor plan間取り図  (Building 2), Price 36,800,000 yen, 4LDK, Land area 105.55 sq m , Building area 102.27 sq m
(2号棟)、価格3680万円、4LDK、土地面積105.55m2、建物面積102.27m2
Livingリビング  LDK18.6 Pledge!
LDK18.6帖!
Bathroom浴室  Unit bus 1 tsubo!
ユニットバス1坪!
Kitchenキッチン  Face-to-face open kitchen! Dishwasher ・ With water purifier!
対面式オープンキッチン!食洗器・浄水器付!
Non-living roomリビング以外の居室  Bright master bedroom!
明るい主寝室!
Entrance玄関  Bright and spacious entrance
明るく広い玄関
Wash basin, toilet洗面台・洗面所  Washroom
洗面所
Receipt収納  This storage capacity abundance of house!
収納力豊富の家です!
 Toilet
トイレ
Balconyバルコニー  South-facing balcony
南向きのバルコニー
Supermarketスーパー  This is useful for day-to-day shopping because until Bengabenga Nogawa shop in the 240m Nearby!
ベンガベンガ野川店まで240m 近所にあるので日々のお買物に便利ですよ!
Otherその他  6 Building Floor It comes with attic storage!
6号棟間取り 小屋裏収納付いています!
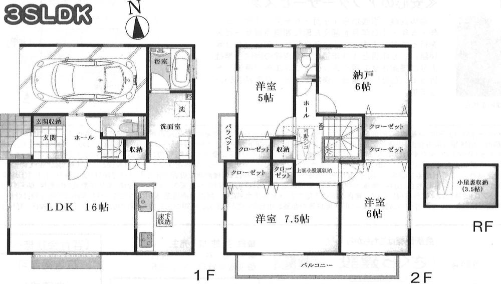
Floor plan間取り図  (7 Building), Price 37,800,000 yen, 3LDK+S, Land area 105.34 sq m , Building area 114.27 sq m
(7号棟)、価格3780万円、3LDK+S、土地面積105.34m2、建物面積114.27m2
Park公園  Nogawa children spacious and 270m will play full energy to the park!
野川公園まで270m 広々としていて子ども達が元気いっぱい遊べます!
Primary school小学校  800m to Kawasaki Tateno River Elementary School
川崎市立野川小学校まで800m
Junior high school中学校  1500m up to junior high school in Kawasaki Tateno River
川崎市立野川中学校まで1500m
Supermarketスーパー  350m grocery has been enhanced to okay Kawasaki Nogawa shop!
オーケー川崎野川店まで350m 食料品が充実しています!
Kindergarten ・ Nursery幼稚園・保育園  Miyamae 750m to kindergarten
宮前幼稚園まで750m
Location
|