New Homes » Kanto » Kanagawa Prefecture » Kawasaki Miyamae-ku
 
| | Kawasaki City, Kanagawa Prefecture Miyamae-ku, 神奈川県川崎市宮前区 |
| Denentoshi Tokyu "Miyazakidai" walk 24 minutes 東急田園都市線「宮崎台」歩24分 |
| LDK20 tatami mats or more, Parking two Allowed, Or more before road 6m, Living stairs, Atrium, Face-to-face kitchen, Corresponding to the flat-35S, Airtight high insulated houses, Pre-ground survey, Seismic fit, 2 along the line more accessible, Energy saving LDK20畳以上、駐車2台可、前道6m以上、リビング階段、吹抜け、対面式キッチン、フラット35Sに対応、高気密高断熱住宅、地盤調査済、耐震適合、2沿線以上利用可、省エネ |
| LDK20 tatami mats or more, Parking two Allowed, Or more before road 6m, Living stairs, Atrium, Face-to-face kitchen, Corresponding to the flat-35S, Airtight high insulated houses, Pre-ground survey, Seismic fit, 2 along the line more accessible, Energy-saving water heaters, Super close, Bathroom Dryer, Yang per good, All room storage, Around traffic fewer, Shaping land, Washbasin with shower, Wide balcony, Barrier-free, Toilet 2 places, Bathroom 1 tsubo or more, 2-story, 2 or more sides balcony, Double-glazing, Otobasu, Warm water washing toilet seat, Underfloor Storage, The window in the bathroom, TV monitor interphone, All living room flooring, Wood deck, IH cooking heater, Dish washing dryer, Walk-in closet, Or more ceiling height 2.5m, Water filter, Storeroom, All rooms southwestward, Flat terrain, Floor heating LDK20畳以上、駐車2台可、前道6m以上、リビング階段、吹抜け、対面式キッチン、フラット35Sに対応、高気密高断熱住宅、地盤調査済、耐震適合、2沿線以上利用可、省エネ給湯器、スーパーが近い、浴室乾燥機、陽当り良好、全居室収納、周辺交通量少なめ、整形地、シャワー付洗面台、ワイドバルコニー、バリアフリー、トイレ2ヶ所、浴室1坪以上、2階建、2面以上バルコニー、複層ガラス、オートバス、温水洗浄便座、床下収納、浴室に窓、TVモニタ付インターホン、全居室フローリング、ウッドデッキ、IHクッキングヒーター、食器洗乾燥機、ウォークインクロゼット、天井高2.5m以上、浄水器、納戸、全室南西向き、平坦地、床暖 |
Features pickup 特徴ピックアップ | | Corresponding to the flat-35S / Airtight high insulated houses / Pre-ground survey / Seismic fit / Parking two Allowed / 2 along the line more accessible / LDK20 tatami mats or more / Energy-saving water heaters / Super close / Bathroom Dryer / Yang per good / All room storage / Around traffic fewer / Or more before road 6m / Shaping land / Washbasin with shower / Face-to-face kitchen / Wide balcony / Barrier-free / Toilet 2 places / Bathroom 1 tsubo or more / 2-story / 2 or more sides balcony / Double-glazing / Otobasu / Warm water washing toilet seat / Underfloor Storage / The window in the bathroom / Atrium / TV monitor interphone / All living room flooring / Wood deck / IH cooking heater / Dish washing dryer / Walk-in closet / Or more ceiling height 2.5m / Water filter / Living stairs / Storeroom / All rooms southwestward / Flat terrain / Floor heating / Readjustment land within フラット35Sに対応 /高気密高断熱住宅 /地盤調査済 /耐震適合 /駐車2台可 /2沿線以上利用可 /LDK20畳以上 /省エネ給湯器 /スーパーが近い /浴室乾燥機 /陽当り良好 /全居室収納 /周辺交通量少なめ /前道6m以上 /整形地 /シャワー付洗面台 /対面式キッチン /ワイドバルコニー /バリアフリー /トイレ2ヶ所 /浴室1坪以上 /2階建 /2面以上バルコニー /複層ガラス /オートバス /温水洗浄便座 /床下収納 /浴室に窓 /吹抜け /TVモニタ付インターホン /全居室フローリング /ウッドデッキ /IHクッキングヒーター /食器洗乾燥機 /ウォークインクロゼット /天井高2.5m以上 /浄水器 /リビング階段 /納戸 /全室南西向き /平坦地 /床暖房 /区画整理地内 | Event information イベント情報 | | Local tours (please make a reservation beforehand) schedule / Every Saturday, Sunday and public holidays time / 10:00 ~ 17:00 local sales meetings! Model room published in! By appointment only! 現地見学会(事前に必ず予約してください)日程/毎週土日祝時間/10:00 ~ 17:00現地販売会開催!モデルルーム公開中!完全予約制! | Property name 物件名 | | [Seller] Local briefings! «Dandelion Hills Nogawa stand »2-story newly built designer houses all two buildings sale 【売主】現地説明会開催!≪たんぽぽヒルズ野川台≫2階建新築デザイナーズ住宅全2棟販売 | Price 価格 | | 55,800,000 yen ・ 56,800,000 yen 5580万円・5680万円 | Floor plan 間取り | | 4LDK + S (storeroom) ~ 4LDK + 2S (storeroom) 4LDK+S(納戸) ~ 4LDK+2S(納戸) | Units sold 販売戸数 | | 2 units 2戸 | Total units 総戸数 | | 2 units 2戸 | Land area 土地面積 | | 137.04 sq m ~ 137.06 sq m (41.45 tsubo ~ 41.46 tsubo) (measured) 137.04m2 ~ 137.06m2(41.45坪 ~ 41.46坪)(実測) | Building area 建物面積 | | 108.37 sq m ~ 113.24 sq m (32.78 tsubo ~ 34.25 tsubo) (measured) 108.37m2 ~ 113.24m2(32.78坪 ~ 34.25坪)(実測) | Driveway burden-road 私道負担・道路 | | Road width: 6m, Asphaltic pavement 道路幅:6m、アスファルト舗装 | Completion date 完成時期(築年月) | | March 2014 in late schedule 2014年3月下旬予定 | Address 住所 | | Kawasaki City, Kanagawa Prefecture Miyamae-ku, Nogawa 神奈川県川崎市宮前区野川 | Traffic 交通 | | Denentoshi Tokyu "Miyazakidai" walk 24 minutes Green Line "Kita Yamata" walk 25 minutes Denentoshi Tokyu "Miyamaedaira" walk 25 minutes 東急田園都市線「宮崎台」歩24分 グリーンライン「北山田」歩25分 東急田園都市線「宮前平」歩25分
| Person in charge 担当者より | | Person in charge of real-estate and building Ogura RyuNozomi Age: 30 Daigyokai Experience: 9 years real estate sales business and the building design, We are responsible for the design! Please hear anything thing of building! 担当者宅建小倉 龍希年齢:30代業界経験:9年不動産販売業と建物設計、デザインを担当しております!建物のことは何でも聞いてください! | Contact お問い合せ先 | | TEL: 0800-805-3775 [Toll free] mobile phone ・ Also available from PHS Caller ID is not notified Please contact the "saw SUUMO (Sumo)" If it does not lead, If the real estate company TEL:0800-805-3775【通話料無料】携帯電話・PHSからもご利用いただけます 発信者番号は通知されません 「SUUMO(スーモ)を見た」と問い合わせください つながらない方、不動産会社の方は
| Sale schedule 販売スケジュール | | Arrival quasi-acceptance start from November 19,! Model room equipped! By appointment only! [Unpublished] 11月19日より先着準受付開始!モデルルーム完備!完全予約制!【未公開】 | Building coverage, floor area ratio 建ぺい率・容積率 | | Kenpei rate: 40% ・ Fifty percent, Volume ratio: 80% ・ Hundred percent 建ペい率:40%・50%、容積率:80%・100% | Time residents 入居時期 | | 2014 end of March plan 2014年3月末予定 | Land of the right form 土地の権利形態 | | Ownership 所有権 | Structure and method of construction 構造・工法 | | Wooden 2-story (2 × 4 construction method) 木造2階建(2×4工法) | Construction 施工 | | Build Art ビルドアート | Use district 用途地域 | | One low-rise, Two low-rise 1種低層、2種低層 | Land category 地目 | | Residential land 宅地 | Other limitations その他制限事項 | | Regulations have by the Landscape Act, Residential land development construction regulation area, Height district, Height ceiling Yes, Shade limit Yes 景観法による規制有、宅地造成工事規制区域、高度地区、高さ最高限度有、日影制限有 | Overview and notices その他概要・特記事項 | | Contact: Ogura RyuNozomi, Building confirmation number: No. KBI-KAW13-10-1983 担当者:小倉 龍希、建築確認番号:第KBI-KAW13-10-1983号 | Company profile 会社概要 | | <Seller> Governor of Kanagawa Prefecture (1) No. 028167 (Ltd.) Danderyd ・ Rise Yubinbango216-0004 Kawasaki City, Kanagawa Prefecture Miyamae-ku, Saginuma 3-5-28 Aguriasu Saginuma B1 <売主>神奈川県知事(1)第028167号(株)ダンデ・ライズ〒216-0004 神奈川県川崎市宮前区鷺沼3-5-28 アグリアス鷺沼B1 |
Local appearance photo現地外観写真  Appearance image photo
外観イメージ写真
Rendering (appearance)完成予想図(外観)  Design with a presence in the novel and simple!
斬新且つシンプルで存在感あるデザイン!
Same specifications photos (Other introspection)同仕様写真(その他内観)  Profound feeling and living in luxury-packed 20 Pledge!
重厚感と高級感満載のリビングは20帖!
 The kitchen is full-flat counter kitchen! Dishwasher, With water purifier!
キッチンはフルフラットカウンターキッチン!食洗器、浄水器付!
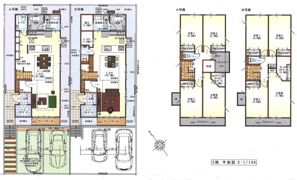
Floor plan間取り図  (A), Price 55,800,000 yen, 4LDK+S, Land area 137.06 sq m , Building area 108.37 sq m
(A)、価格5580万円、4LDK+S、土地面積137.06m2、建物面積108.37m2
Local appearance photo現地外観写真  Local was organized compartment, Former Tokyu subdivision!
現地は区画整理された、旧東急分譲地!
Same specifications photos (living)同仕様写真(リビング)  Large space of the ceiling height of about 2.7m!
天井高約2.7mの大空間!
Same specifications photo (kitchen)同仕様写真(キッチン)  Windows are many bright kitchen!
窓が多く明るいキッチン!
Local photos, including front road前面道路含む現地写真  Front road 6m public roads! Difference in height is also almost no, Flat terrain!
前面道路6m公道!高低差もほとんど無く、平坦地!
Supermarketスーパー  This is useful for day-to-day shopping because it is in 675m neighborhood until Super life Higashiarima shop!
スーパーライフ東有馬店まで675m 近所にあるので日々のお買物に便利ですよ!
Same specifications photos (Other introspection)同仕様写真(その他内観)  Since the stairs is a step stairs, Space is alive!
階段はステップ階段ですので、空間が生きます!
Same specifications photos (living)同仕様写真(リビング)  Adult of the space the image of a luxury lounge!
高級ラウンジをイメージした大人の空間!
Primary school小学校  1065m to the Kawasaki Municipal Nishinogawa Elementary School
川崎市立西野川小学校まで1065m
Same specifications photos (Other introspection)同仕様写真(その他内観)  Large release of living is good per yang!
大解放のリビングは陽当たり良好!
Same specifications photos (living)同仕様写真(リビング)  Use the luxury tile in part of the living room wall!
リビング壁の一部に高級タイルを使用!
Shopping centreショッピングセンター  Don ・ It sets a variety of things from 1215m daily necessities to Quixote Tomei Kawasaki to grocery!
ドン・キホーテ東名川崎店まで1215m 日用品から食料品まで様々な物が揃います!
Same specifications photos (Other introspection)同仕様写真(その他内観)  Taking advantage of the sky, Veranda also design space!
空を生かし、ベランダもデザイン空間!
Station駅  Denentoshi beautiful station before the 1950m row of cherry blossom trees to Miyazakidai!
田園都市線宮崎台まで1950m 桜並木の美しい駅前です!
Same specifications photos (Other introspection)同仕様写真(その他内観)  Calm bedroom sex space!
落ち着いた寝室は大人の空間!
Hospital病院  Children healthy! Ingenuity has been decorated for the 135m children to the internal medicine clinic ・ Nice waiting room! There is adjacent to also General Hospital.
こども元気!内科クリニックまで135m 子どもの為に工夫された内装・待合室がステキ!隣接して総合病院もあります。
Same specifications photos (Other introspection)同仕様写真(その他内観)  Toilet also finish in fashionable! No cutting corners!
トイレもオシャレに仕上げます!手抜きなし!
Junior high school中学校  900m up to junior high school in Kawasaki Tateno River
川崎市立野川中学校まで900m
Hospital病院  It survives and close to the time that the 435m emergency to Kawasaki City Miyamae holiday emergency clinic.
川崎市宮前休日急患診療所まで435m いざという時に近くて助かります。
Kindergarten ・ Nursery幼稚園・保育園  Arima white lily to kindergarten you hear is 765m children's cheerful voice!
有馬白百合幼稚園まで765m 子ども達の元気な声が聞こえてきます!
Park公園  Arima Nakayoshi park near 480m to the park. Since facing the road will play a child with confidence outlook is also good!
有馬なかよし公園まで480m 近くにある公園。道路に面しているので見通しも良く安心してお子様が遊べます!
Location
|