New Homes » Kanto » Kanagawa Prefecture » Nakahara-ku, Kawasaki
 
| | Kawasaki City, Kanagawa Prefecture Nakahara-ku, 神奈川県川崎市中原区 |
| Tokyu Toyoko Line "Motosumiyoshi" walk 11 minutes 東急東横線「元住吉」歩11分 |
| ● you can preview! ● birth to a flat location from the train station! New eco-housing all four buildings! Face-to-face kitchen of all building spacious LDK! Floor heating, Specification and equipment of the dishwasher, etc. enhance! ●ご内見できます!●駅から平坦なロケーションに誕生!新築エコ住宅全4棟!全棟広々LDKの対面キッチン!床暖房、食洗機等充実の仕様と設備です! |
| Flat terrain, Face-to-face kitchen, Yang per good, South balcony, Floor heating, Walk-in closet, Corresponding to the flat-35S, Pre-ground survey, 2 along the line more accessible, Fiscal year Available, Super close, System kitchen, Bathroom Dryer, All room storage, Flat to the station, LDK15 tatami mats or more, Around traffic fewer, Shaping land, Washbasin with shower, Toilet 2 places, Bathroom 1 tsubo or more, 2 or more sides balcony, Southeast direction, Double-glazing, Otobasu, Warm water washing toilet seat, Underfloor Storage, The window in the bathroom, TV monitor interphone, High-function toilet, Ventilation good, All living room flooring, Dish washing dryer, Water filter, Three-story or more, Living stairs, City gas, All rooms are two-sided lighting 平坦地、対面式キッチン、陽当り良好、南面バルコニー、床暖房、ウォークインクロゼット、フラット35Sに対応、地盤調査済、2沿線以上利用可、年度内入居可、スーパーが近い、システムキッチン、浴室乾燥機、全居室収納、駅まで平坦、LDK15畳以上、周辺交通量少なめ、整形地、シャワー付洗面台、トイレ2ヶ所、浴室1坪以上、2面以上バルコニー、東南向き、複層ガラス、オートバス、温水洗浄便座、床下収納、浴室に窓、TVモニタ付インターホン、高機能トイレ、通風良好、全居室フローリング、食器洗乾燥機、浄水器、3階建以上、リビング階段、都市ガス、全室2面採光 |
Features pickup 特徴ピックアップ | | Corresponding to the flat-35S / Pre-ground survey / 2 along the line more accessible / Fiscal year Available / Super close / System kitchen / Bathroom Dryer / Yang per good / All room storage / Flat to the station / LDK15 tatami mats or more / Around traffic fewer / Shaping land / Washbasin with shower / Face-to-face kitchen / Toilet 2 places / Bathroom 1 tsubo or more / 2 or more sides balcony / Southeast direction / South balcony / Double-glazing / Otobasu / Warm water washing toilet seat / Underfloor Storage / The window in the bathroom / TV monitor interphone / High-function toilet / Ventilation good / All living room flooring / Dish washing dryer / Walk-in closet / Water filter / Three-story or more / Living stairs / City gas / All rooms are two-sided lighting / Flat terrain / Floor heating フラット35Sに対応 /地盤調査済 /2沿線以上利用可 /年度内入居可 /スーパーが近い /システムキッチン /浴室乾燥機 /陽当り良好 /全居室収納 /駅まで平坦 /LDK15畳以上 /周辺交通量少なめ /整形地 /シャワー付洗面台 /対面式キッチン /トイレ2ヶ所 /浴室1坪以上 /2面以上バルコニー /東南向き /南面バルコニー /複層ガラス /オートバス /温水洗浄便座 /床下収納 /浴室に窓 /TVモニタ付インターホン /高機能トイレ /通風良好 /全居室フローリング /食器洗乾燥機 /ウォークインクロゼット /浄水器 /3階建以上 /リビング階段 /都市ガス /全室2面採光 /平坦地 /床暖房 | Event information イベント情報 | | It has completed construction cases available! 完成施工例ご用意しております! | Price 価格 | | 36,800,000 yen ~ 38,800,000 yen 3680万円 ~ 3880万円 | Floor plan 間取り | | 4LDK 4LDK | Units sold 販売戸数 | | 3 units 3戸 | Total units 総戸数 | | 4 units 4戸 | Land area 土地面積 | | 60.12 sq m ~ 71.39 sq m (18.18 tsubo ~ 21.59 tsubo) (measured) 60.12m2 ~ 71.39m2(18.18坪 ~ 21.59坪)(実測) | Building area 建物面積 | | 101.02 sq m ~ 109.71 sq m (30.55 tsubo ~ 33.18 tsubo) (measured) 101.02m2 ~ 109.71m2(30.55坪 ~ 33.18坪)(実測) | Driveway burden-road 私道負担・道路 | | Road width: Southeast side 4.2m public road 道路幅:東南側4.2m公道 | Completion date 完成時期(築年月) | | Mid-January 2014 2014年1月中旬予定 | Address 住所 | | Kawasaki City, Kanagawa Prefecture Nakahara-ku, Nishikase 神奈川県川崎市中原区西加瀬 | Traffic 交通 | | Tokyu Toyoko Line "Motosumiyoshi" walk 11 minutes JR Nambu Line "Hirama" walk 17 minutes Tokyu Toyoko Line "Hiyoshi" walk 20 minutes 東急東横線「元住吉」歩11分 JR南武線「平間」歩17分 東急東横線「日吉」歩20分
| Person in charge 担当者より | | It marked with a charge for each person in charge of real-estate and building FP customers. Realistic agent get by all the support from a variety of angles to the starting point of the real estate, It is unceasing at home company of smile! First, please feel free to contact us! Staff, We look forward to! 担当者宅建FPお客様毎に担当が付きます。リアルエージェントは不動産を起点に様々な角度からあらゆるサポートをさせて頂く、笑顔の絶えないアットホームな会社です!まずはお気軽にご相談下さい!スタッフ一同、心よりお待ちしております! | Contact お問い合せ先 | | TEL: 0800-809-8208 [Toll free] mobile phone ・ Also available from PHS Caller ID is not notified Please contact the "saw SUUMO (Sumo)" If it does not lead, If the real estate company TEL:0800-809-8208【通話料無料】携帯電話・PHSからもご利用いただけます 発信者番号は通知されません 「SUUMO(スーモ)を見た」と問い合わせください つながらない方、不動産会社の方は
| Building coverage, floor area ratio 建ぺい率・容積率 | | Kenpei rate: 60%, Volume ratio: 200% 建ペい率:60%、容積率:200% | Time residents 入居時期 | | February 2014 early schedule 2014年2月初旬予定 | Land of the right form 土地の権利形態 | | Ownership 所有権 | Structure and method of construction 構造・工法 | | Wooden three-story 木造3階建 | Use district 用途地域 | | Industry 工業 | Land category 地目 | | Residential land 宅地 | Other limitations その他制限事項 | | Quasi-fire zones 準防火地域 | Overview and notices その他概要・特記事項 | | Contact: marked with a charge for each customer. , Building confirmation number: 03332 No. other 担当者:お客様毎に担当が付きます。、建築確認番号:03332号他 | Company profile 会社概要 | | <Marketing alliance (mediated)> Governor of Kanagawa Prefecture (1) No. 028428 (Ltd.) realistic agent Yubinbango221-0825 Kanagawa Prefecture, Kanagawa-ku, Yokohama-shi Sorimachi 1-7-1 US-1 building the third floor <販売提携(媒介)>神奈川県知事(1)第028428号(株)リアルエージェント〒221-0825 神奈川県横浜市神奈川区反町1-7-1 US‐1ビル3階 |
Same specifications photos (appearance)同仕様写真(外観)  Same specifications complete example of construction (it has completed construction cases available! )
同仕様完成施工例(完成施工例ご用意しております!)
Same specifications photos (living)同仕様写真(リビング)  Same specifications complete example of construction (living)
同仕様完成施工例(リビング)
Same specifications photo (kitchen)同仕様写真(キッチン)  Same specifications complete example of construction (kitchen)
同仕様完成施工例(システムキッチン)
Floor plan間取り図  (1 Building), Price 37,800,000 yen, 4LDK, Land area 71.39 sq m , Building area 101.02 sq m
(1号棟)、価格3780万円、4LDK、土地面積71.39m2、建物面積101.02m2
Same specifications photos (appearance)同仕様写真(外観)  Same specifications complete example of construction (entrance)
同仕様完成施工例(玄関)
Same specifications photo (bathroom)同仕様写真(浴室)  Same specifications complete example of construction (system bus)
同仕様完成施工例(システムバス)
Local photos, including front road前面道路含む現地写真  Frontal road
前面道路
Supermarketスーパー  700m until Maxvalu
マックスバリュまで700m
Same specifications photos (Other introspection)同仕様写真(その他内観)  Same specifications complete example of construction (vanity)
同仕様完成施工例(洗面化粧台)
 The entire compartment Figure
全体区画図
Floor plan間取り図  (Building 2), Price 36,800,000 yen, 4LDK, Land area 60.14 sq m , Building area 101.02 sq m
(2号棟)、価格3680万円、4LDK、土地面積60.14m2、建物面積101.02m2
Local appearance photo現地外観写真  Local appearance (it has completed construction cases available! )
現地外観(完成施工例ご用意しております!)
Park公園  Nakahara to Peace Park 750m
中原平和公園まで750m
Same specifications photos (Other introspection)同仕様写真(その他内観)  Same specifications complete example of construction (Western-style)
同仕様完成施工例(洋室)
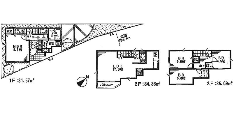
Floor plan間取り図  (4 Building), Price 38,800,000 yen, 4LDK, Land area 62.7 sq m , Building area 109.71 sq m
(4号棟)、価格3880万円、4LDK、土地面積62.7m2、建物面積109.71m2
Local appearance photo現地外観写真  Local appearance (it has completed construction cases available! )
現地外観(完成施工例ご用意しております!)
Primary school小学校  Kariyado until elementary school 450m
苅宿小学校まで450m
Junior high school中学校  Sumiyoshi 600m until junior high school
住吉中学校まで600m
Station駅  800m until Motosumiyoshi
元住吉駅まで800m
Location
|