New Homes » Kanto » Kanagawa Prefecture » Kawasaki Kou District
 
| | Kawasaki-shi, Kanagawa-ku, seafood 神奈川県川崎市幸区 |
| JR Keihin Tohoku Line "Kawasaki" walk 23 minutes JR京浜東北線「川崎」歩23分 |
| Newly built condominiums All one building site 5LDK type Earthquake resistant ・ Endurance ・ Full-scale wooden quasi-fireproof structure houses with excellent energy-saving performance! Flat 35S energy-saving standard correspondence! 新築分譲住宅 全1棟現場 5LDKタイプ 耐震・耐久・省エネ性能に優れた本格木造準耐火構造住宅!フラット35S省エネ基準対応! |
| ■ South road 7.7M, (West) adjacent land passage (east) adjacent land of garden (north) open space that because Hito ・ Ventilation good! ■ Large 5LDK type building: spacious 111.90 sq m ■ Kawasaki Station, Good location of walking distance to Kawasaki Lazona! ■ End of the year is possible tenants! ■南公道7.7M、(西側)隣地通路(東側)隣地の庭(北側)空地なので陽当・通風良好!■大型5LDKタイプ建物:広々111.90m2■川崎駅、川崎ラゾーナに徒歩圏の好立地!■年内入居可能です! |
Features pickup 特徴ピックアップ | | Corresponding to the flat-35S / Year Available / 2 along the line more accessible / Energy-saving water heaters / Super close / It is close to the city / Facing south / System kitchen / Bathroom Dryer / Yang per good / All room storage / Flat to the station / Siemens south road / A quiet residential area / LDK15 tatami mats or more / Around traffic fewer / Or more before road 6m / Shaping land / Face-to-face kitchen / Barrier-free / Bathroom 1 tsubo or more / South balcony / Urban neighborhood / Mu front building / Ventilation good / All living room flooring / Or more ceiling height 2.5m / Water filter / Three-story or more / City gas / Storeroom / A large gap between the neighboring house / Flat terrain / All rooms facing southeast フラット35Sに対応 /年内入居可 /2沿線以上利用可 /省エネ給湯器 /スーパーが近い /市街地が近い /南向き /システムキッチン /浴室乾燥機 /陽当り良好 /全居室収納 /駅まで平坦 /南側道路面す /閑静な住宅地 /LDK15畳以上 /周辺交通量少なめ /前道6m以上 /整形地 /対面式キッチン /バリアフリー /浴室1坪以上 /南面バルコニー /都市近郊 /前面棟無 /通風良好 /全居室フローリング /天井高2.5m以上 /浄水器 /3階建以上 /都市ガス /納戸 /隣家との間隔が大きい /平坦地 /全室東南向き | Price 価格 | | 42,800,000 yen 4280万円 | Floor plan 間取り | | 2LDK + 3S (storeroom) 2LDK+3S(納戸) | Units sold 販売戸数 | | 1 units 1戸 | Total units 総戸数 | | 1 units 1戸 | Land area 土地面積 | | 63.13 sq m (measured) 63.13m2(実測) | Building area 建物面積 | | 111.9 sq m 111.9m2 | Driveway burden-road 私道負担・道路 | | Nothing, South 7.7m width (contact the road width 4.8m) 無、南7.7m幅(接道幅4.8m) | Completion date 完成時期(築年月) | | December 2013 2013年12月 | Address 住所 | | Kawasaki-shi, Kanagawa-ku, seafood with Dinner 3 神奈川県川崎市幸区戸手3 | Traffic 交通 | | JR Keihin Tohoku Line "Kawasaki" walk 23 minutes Keikyū Main Line "Keikyu Kawasaki" walk 21 minutes JR Tokaido Line "Kawasaki" bus 7 minutes with Dinner apartment before walk 2 minutes JR京浜東北線「川崎」歩23分 京急本線「京急川崎」歩21分 JR東海道本線「川崎」バス7分戸手アパート前歩2分
| Related links 関連リンク | | [Related Sites of this company] 【この会社の関連サイト】 | Person in charge 担当者より | | Person in charge of Suzuki Yuichi Age: 40 Daigyokai experience: we will cheerful to help our customers as a bridge that connects the 20-year customers and real estate. I will do my best in all sincerity. "Please come to help" 担当者鈴木 祐一年齢:40代業界経験:20年お客様と不動産をつなぐ架け橋として明るく元気にお客様のお手伝いを致します。誠心誠意頑張ります。”是非お手伝いさせてください” | Contact お問い合せ先 | | TEL: 0800-603-8585 [Toll free] mobile phone ・ Also available from PHS Caller ID is not notified Please contact the "saw SUUMO (Sumo)" If it does not lead, If the real estate company TEL:0800-603-8585【通話料無料】携帯電話・PHSからもご利用いただけます 発信者番号は通知されません 「SUUMO(スーモ)を見た」と問い合わせください つながらない方、不動産会社の方は
| Time residents 入居時期 | | Consultation 相談 | Land of the right form 土地の権利形態 | | Ownership 所有権 | Structure and method of construction 構造・工法 | | Wooden three-story (framing method) 木造3階建(軸組工法) | Overview and notices その他概要・特記事項 | | Contact: Suzuki Yuichi, Building confirmation number: No. 13UDI13S Ken 00846-2, Parking: Garage 担当者:鈴木 祐一、建築確認番号:第13UDI13S建00846-2号、駐車場:車庫 | Company profile 会社概要 | | <Mediation> Kanagawa Governor (2) the first 026,196 No. Century 21 Sankei Holmes Co. Yubinbango212-0058 Kawasaki-shi, Kanagawa-ku, Saiwai Kashimada 2-6-15 <仲介>神奈川県知事(2)第026196号センチュリー21三恵ホームズ(株)〒212-0058 神奈川県川崎市幸区鹿島田2-6-15 |
Compartment figure区画図  42,800,000 yen, 2LDK + 3S (storeroom), Land area 63.13 sq m , Building area 111.9 sq m
4280万円、2LDK+3S(納戸)、土地面積63.13m2、建物面積111.9m2
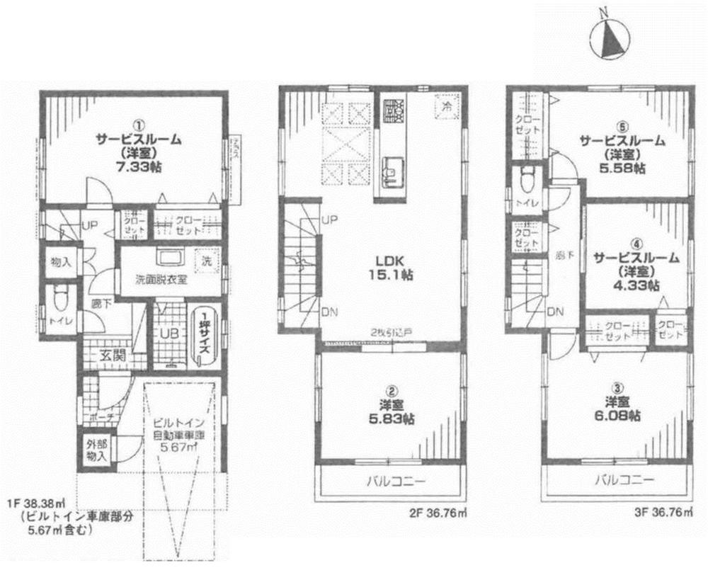
Floor plan間取り図  42,800,000 yen, 2LDK + 3S (storeroom), Land area 63.13 sq m , Building area 111.9 sq m
4280万円、2LDK+3S(納戸)、土地面積63.13m2、建物面積111.9m2
 Local appearance photo
現地外観写真
Rendering (appearance)完成予想図(外観)  Rendering
完成予想図
 Local photos, including front road
前面道路含む現地写真
Supermarketスーパー  Until Life Kawasaki Miyuki shop 832m
ライフ川崎御幸店まで832m
 Other
その他
 Local appearance photo
現地外観写真
 Local photos, including front road
前面道路含む現地写真
 Local appearance photo
現地外観写真
 Local appearance photo
現地外観写真
 Local appearance photo
現地外観写真
 Local appearance photo
現地外観写真
 Local appearance photo
現地外観写真
 Local appearance photo
現地外観写真
Location
|