New Homes » Kanto » Kanagawa Prefecture » Kawasaki Takatsu-ku
 
| | Kawasaki City, Kanagawa Prefecture Takatsu-ku 神奈川県川崎市高津区 |
| JR Nambu Line "Musashi Nakahara" walk 24 minutes JR南武線「武蔵中原」歩24分 |
| A quiet residential area of Shibokuchifujimidai steep subdivision within the land! 3 × 4 construction method, Ground guarantee, 10-year building warranty, House of peace of mind with the inspection by a third party inspection agency! Well-equipped, Shopping is the other life convenient living environment! 子母口富士見台急分譲地内の閑静な住宅街!3×4工法、地盤保証、建物10年保証、第三者検査機関による検査付きで安心の住宅!充実の設備、買物ほか生活便利な住環境です! |
| Construction housing performance with evaluation, Corresponding to the flat-35S, Super close, It is close to the city, Facing south, System kitchen, Bathroom Dryer, Yang per good, All room storage, A quiet residential area, LDK15 tatami mats or more, Or more before road 6m, Washbasin with shower, Face-to-face kitchen, Toilet 2 places, 2-story, Double-glazing, Warm water washing toilet seat, TV with bathroom, Underfloor Storage, The window in the bathroom, TV monitor interphone, Leafy residential area, Urban neighborhood, Ventilation good, All living room flooring, Dish washing dryer, Water filter 建設住宅性能評価付、フラット35Sに対応、スーパーが近い、市街地が近い、南向き、システムキッチン、浴室乾燥機、陽当り良好、全居室収納、閑静な住宅地、LDK15畳以上、前道6m以上、シャワー付洗面台、対面式キッチン、トイレ2ヶ所、2階建、複層ガラス、温水洗浄便座、TV付浴室、床下収納、浴室に窓、TVモニタ付インターホン、緑豊かな住宅地、都市近郊、通風良好、全居室フローリング、食器洗乾燥機、浄水器 |
Features pickup 特徴ピックアップ | | Construction housing performance with evaluation / Corresponding to the flat-35S / Super close / It is close to the city / Facing south / System kitchen / Bathroom Dryer / Yang per good / All room storage / A quiet residential area / LDK15 tatami mats or more / Or more before road 6m / Washbasin with shower / Face-to-face kitchen / Toilet 2 places / 2-story / Double-glazing / Warm water washing toilet seat / TV with bathroom / Underfloor Storage / The window in the bathroom / TV monitor interphone / Leafy residential area / Urban neighborhood / Ventilation good / All living room flooring / Dish washing dryer / Water filter 建設住宅性能評価付 /フラット35Sに対応 /スーパーが近い /市街地が近い /南向き /システムキッチン /浴室乾燥機 /陽当り良好 /全居室収納 /閑静な住宅地 /LDK15畳以上 /前道6m以上 /シャワー付洗面台 /対面式キッチン /トイレ2ヶ所 /2階建 /複層ガラス /温水洗浄便座 /TV付浴室 /床下収納 /浴室に窓 /TVモニタ付インターホン /緑豊かな住宅地 /都市近郊 /通風良好 /全居室フローリング /食器洗乾燥機 /浄水器 | Price 価格 | | 41,800,000 yen 4180万円 | Floor plan 間取り | | 4LDK 4LDK | Units sold 販売戸数 | | 2 units 2戸 | Land area 土地面積 | | 104.67 sq m ~ 106.75 sq m 104.67m2 ~ 106.75m2 | Building area 建物面積 | | 95.25 sq m ~ 98.68 sq m (registration) 95.25m2 ~ 98.68m2(登記) | Driveway burden-road 私道負担・道路 | | Road width: 6.3m 道路幅:6.3m | Completion date 完成時期(築年月) | | 2014 end of March plan 2014年3月末予定 | Address 住所 | | Kawasaki City, Kanagawa Prefecture Takatsu-ku, Shibokuchi Shibokuchifujimidai 54-30, 54-31 神奈川県川崎市高津区子母口子母口富士見台54-30、54-31 | Traffic 交通 | | JR Nambu Line "Musashi Nakahara" walk 24 minutes JR Nambu Line "Musashi Nakahara" bus 5 minutes shadow Mukaidera walk 4 minutes JR Nambu Line "Musashi-Shinjo" walk 26 minutes JR南武線「武蔵中原」歩24分 JR南武線「武蔵中原」バス5分影向寺歩4分 JR南武線「武蔵新城」歩26分
| Related links 関連リンク | | [Related Sites of this company] 【この会社の関連サイト】 | Person in charge 担当者より | | Rep Iwasaki Naoto Age: 20 Daigyokai experience: we will be supported by the full force of the looking for house for one year customer! 担当者岩崎 直人年齢:20代業界経験:1年お客様のためにお住まい探しを全力でサポートさせて頂きます! | Contact お問い合せ先 | | TEL: 0800-603-8928 [Toll free] mobile phone ・ Also available from PHS Caller ID is not notified Please contact the "saw SUUMO (Sumo)" If it does not lead, If the real estate company TEL:0800-603-8928【通話料無料】携帯電話・PHSからもご利用いただけます 発信者番号は通知されません 「SUUMO(スーモ)を見た」と問い合わせください つながらない方、不動産会社の方は
| Building coverage, floor area ratio 建ぺい率・容積率 | | Kenpei rate: 50%, Volume ratio: 100% 建ペい率:50%、容積率:100% | Time residents 入居時期 | | 2014 end of March plan 2014年3月末予定 | Land of the right form 土地の権利形態 | | Ownership 所有権 | Structure and method of construction 構造・工法 | | Wooden 2-story 木造2階建 | Use district 用途地域 | | One low-rise 1種低層 | Land category 地目 | | Residential land 宅地 | Overview and notices その他概要・特記事項 | | Contact: Iwasaki Naoto, Building confirmation number: No. KS113-3110-00973 other 担当者:岩崎 直人、建築確認番号:第KS113-3110-00973号他 | Company profile 会社概要 | | <Mediation> Kanagawa Governor (2) the first 026,950 No. Century 21 Corporation Yokohama estate Yubinbango222-0033 Yokohama-shi, Kanagawa-ku, Yokohama, Kohoku 3-21-12 <仲介>神奈川県知事(2)第026950号センチュリー21(株)ヨコハマ地所〒222-0033 神奈川県横浜市港北区新横浜3-21-12 |
Local appearance photo現地外観写真  Local (11 May 2013) Shooting
現地(2013年11月)撮影
 Local (11 May 2013) Shooting
現地(2013年11月)撮影
Local photos, including front road前面道路含む現地写真  Local (11 May 2013) Shooting
現地(2013年11月)撮影
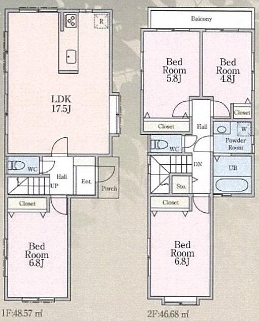
Floor plan間取り図  (4 Building), Price 41,800,000 yen, 4LDK, Land area 104.67 sq m , Building area 95.25 sq m
(4号棟)、価格4180万円、4LDK、土地面積104.67m2、建物面積95.25m2
Local photos, including front road前面道路含む現地写真  Local (11 May 2013) Shooting
現地(2013年11月)撮影
Supermarketスーパー  Until Life Shibokuchi shop 329m
ライフ子母口店まで329m
Floor plan間取り図  (5 Building), Price 41,800,000 yen, 4LDK, Land area 106.75 sq m , Building area 98.68 sq m
(5号棟)、価格4180万円、4LDK、土地面積106.75m2、建物面積98.68m2
Supermarketスーパー  Maruetsu until Shibokuchi shop 544m
マルエツ子母口店まで544m
Junior high school中学校  393m to the Kawasaki Municipal Higashitachibana junior high school
川崎市立東橘中学校まで393m
Primary school小学校  812m to the Kawasaki Municipal Shibokuchi Elementary School
川崎市立子母口小学校まで812m
Kindergarten ・ Nursery幼稚園・保育園  Tachibana 547m to kindergarten
たちばな幼稚園まで547m
 Tachibana 1500m to the central nursery
たちばな中央保育園まで1500m
Location
|