2013
27,800,000 yen ~ 31,800,000 yen, 4LDK, 90.72 sq m ~ 97.2 sq m
New Homes » Kanto » Kanagawa Prefecture » Odawara
 
| | Odawara, Kanagawa Prefecture 神奈川県小田原市 |
| JR Tokaido Line "Hayakawa" walk 13 minutes JR東海道本線「早川」歩13分 |
| If we examine the new building ready-built house! Please contact us to not take the commission! 新築建売住宅をご検討の方!手数料のかからない当社へご連絡下さい! |
Features pickup 特徴ピックアップ | | All room storage / A quiet residential area / Japanese-style room / Toilet 2 places / 2-story / South balcony 全居室収納 /閑静な住宅地 /和室 /トイレ2ヶ所 /2階建 /南面バルコニー | Price 価格 | | 27,800,000 yen ~ 31,800,000 yen 2780万円 ~ 3180万円 | Floor plan 間取り | | 4LDK 4LDK | Units sold 販売戸数 | | 3 units 3戸 | Land area 土地面積 | | 115.52 sq m ~ 123.85 sq m 115.52m2 ~ 123.85m2 | Building area 建物面積 | | 90.72 sq m ~ 97.2 sq m 90.72m2 ~ 97.2m2 | Completion date 完成時期(築年月) | | 2013 early November 2013年11月上旬 | Address 住所 | | Odawara, Kanagawa Prefecture Minami-machi 3-786 No. 1 神奈川県小田原市南町3-786番1 | Traffic 交通 | | JR Tokaido Line "Hayakawa" walk 13 minutes JR東海道本線「早川」歩13分
| Related links 関連リンク | | [Related Sites of this company] 【この会社の関連サイト】 | Contact お問い合せ先 | | TEL: 0800-808-7058 [Toll free] mobile phone ・ Also available from PHS Caller ID is not notified Please contact the "saw SUUMO (Sumo)" If it does not lead, If the real estate company TEL:0800-808-7058【通話料無料】携帯電話・PHSからもご利用いただけます 発信者番号は通知されません 「SUUMO(スーモ)を見た」と問い合わせください つながらない方、不動産会社の方は
| Time residents 入居時期 | | Consultation 相談 | Land of the right form 土地の権利形態 | | Ownership 所有権 | Use district 用途地域 | | One low-rise 1種低層 | Overview and notices その他概要・特記事項 | | Building confirmation number: No. H25SHC110849 建築確認番号:第H25SHC110849号 | Company profile 会社概要 | | <Mediation> Governor of Kanagawa Prefecture (1) No. 026996 Century 21 (stock) La ・ Vita Holmes Yubinbango258-0021 Kanagawa Prefecture ashigarakami Kaisei-cho, Yoshida Island 4458-3 <仲介>神奈川県知事(1)第026996号センチュリー21(株)ラ・ヴィータホームズ〒258-0021 神奈川県足柄上郡開成町吉田島4458-3 |
Local appearance photo現地外観写真  Local (September 2013) Shooting
現地(2013年9月)撮影
Local photos, including front road前面道路含む現地写真  Local (September 2013) Shooting
現地(2013年9月)撮影
 Other
その他
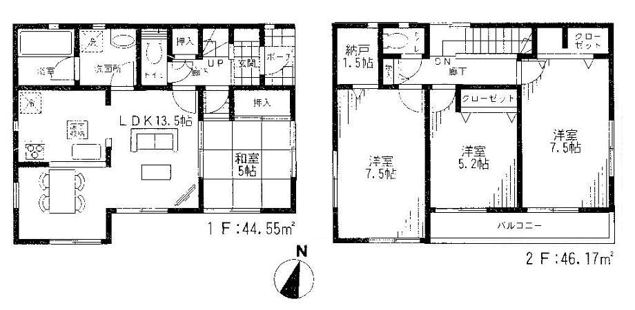
Floor plan間取り図  Price 28.8 million yen, 4LDK, Land area 115.52 sq m , Building area 90.72 sq m
価格2880万円、4LDK、土地面積115.52m2、建物面積90.72m2
Location
|