New Homes » Kanto » Kanagawa Prefecture » Sagamihara, Chuo-ku
 
| | Sagamihara City, Kanagawa Prefecture, Chuo-ku, 神奈川県相模原市中央区 |
| JR Yokohama Line "Fuchinobe" 10 minutes Aoba children tatemae walk 7 minutes by bus JR横浜線「淵野辺」バス10分青葉児童館前歩7分 |
| A quiet residential area 閑静な住宅街 |
| Aoba Elementary School 400m Midorigaoka Junior High School 600m Hayashi clinic 300m Upper groove nursery 700m Matsuzaki clinic 500m 青葉小学校400m 緑が丘中学校600m 林クリニック300m 上溝保育園700m 松崎医院500m |
Price 価格 | | 26,800,000 yen 2680万円 | Floor plan 間取り | | 4LDK 4LDK | Units sold 販売戸数 | | 1 units 1戸 | Land area 土地面積 | | 115.27 sq m (registration) 115.27m2(登記) | Building area 建物面積 | | 94.4 sq m (measured) 94.4m2(実測) | Driveway burden-road 私道負担・道路 | | Nothing, Northeast 5m width 無、北東5m幅 | Completion date 完成時期(築年月) | | October 2013 2013年10月 | Address 住所 | | Sagamihara City, Kanagawa Prefecture, Chuo-ku, Midorigaoka 2 神奈川県相模原市中央区緑が丘2 | Traffic 交通 | | JR Yokohama Line "Fuchinobe" 10 minutes Aoba children tatemae walk 7 minutes by bus JR Sagami Line "upper groove" walk 30 minutes Odakyu line "Sagami" 24 minutes Izumi junior college before walking 7 minutes by bus JR横浜線「淵野辺」バス10分青葉児童館前歩7分 JR相模線「上溝」歩30分 小田急線「相模大野」バス24分和泉短大前歩7分
| Person in charge 担当者より | | Rep Asama Yuki Age: 20 Daigyokai Experience: 10 years "that important on looking house is the concept of your own, What kind of property, where, You need want or express purpose to buy how much. That we will support from a variety of perspectives regardless only to a variety of information and comparison such as a single point also for " 担当者浅間 勇輝年齢:20代業界経験:10年「住まい探しの上で大事な事はお客様自身のコンセプトです、どんな物件を、どこで、いくらで買いたいか明確な目的が必要です。その為にも様々な情報や比較対象等一点だけに拘らず様々な視点からサポート致します」 | Contact お問い合せ先 | | TEL: 0800-603-8480 [Toll free] mobile phone ・ Also available from PHS Caller ID is not notified Please contact the "saw SUUMO (Sumo)" If it does not lead, If the real estate company TEL:0800-603-8480【通話料無料】携帯電話・PHSからもご利用いただけます 発信者番号は通知されません 「SUUMO(スーモ)を見た」と問い合わせください つながらない方、不動産会社の方は
| Building coverage, floor area ratio 建ぺい率・容積率 | | Fifty percent ・ Hundred percent 50%・100% | Time residents 入居時期 | | Consultation 相談 | Land of the right form 土地の権利形態 | | Ownership 所有権 | Structure and method of construction 構造・工法 | | Wooden 2-story 木造2階建 | Use district 用途地域 | | One low-rise 1種低層 | Overview and notices その他概要・特記事項 | | Contact: Asama Yuki, Facilities: Public Water Supply, This sewage, City gas, Building confirmation number: 03013, Parking: car space 担当者:浅間 勇輝、設備:公営水道、本下水、都市ガス、建築確認番号:03013、駐車場:カースペース | Company profile 会社概要 | | <Mediation> Kanagawa Governor (2) Article 026 475 issue (stock) residence of square HOMESyubinbango252-0231 Sagamihara, Kanagawa Prefecture, Chuo-ku, Sagamihara 5-1-2A <仲介>神奈川県知事(2)第026475号(株)住まいの広場HOMES〒252-0231 神奈川県相模原市中央区相模原5-1-2A |
 Local appearance photo
現地外観写真
 Living
リビング
 Living
リビング
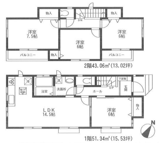
Floor plan間取り図  26,800,000 yen, 4LDK, Land area 115.27 sq m , Building area 94.4 sq m
2680万円、4LDK、土地面積115.27m2、建物面積94.4m2
 Bathroom
浴室
 Kitchen
キッチン
 Non-living room
リビング以外の居室
 Entrance
玄関
 Wash basin, toilet
洗面台・洗面所
 Receipt
収納
 Toilet
トイレ
 Parking lot
駐車場
 Balcony
バルコニー
Other Environmental Photoその他環境写真  100m up during the configuration
構成中まで100m
 Other
その他
 Non-living room
リビング以外の居室
 Receipt
収納
Otherその他  Upper groove nursery 700m
上溝保育園700m
 Non-living room
リビング以外の居室
 Non-living room
リビング以外の居室
Location
|