New Homes » Kanto » Kanagawa Prefecture » Sagamihara, Chuo-ku
 
| | Sagamihara City, Kanagawa Prefecture, Chuo-ku, 神奈川県相模原市中央区 |
| JR Yokohama Line "Fuchinobe" walk 15 minutes JR横浜線「淵野辺」歩15分 |
| Fuchinobe Station ・ ・ A 15-minute walk, Yasaka Elementary School ・ ・ 7 min walk, Yasaka Junior High School ・ ・ 9 minute walk, Super Sanwa ・ ・ Starting with 10 minutes !! Fuchinobe Aioi 3-chome walk, Each style. Condominiums will be a new birth! 淵野辺駅・・徒歩15分、弥栄小学校・・徒歩7分、弥栄中学校・・徒歩9分、スーパー三和・・徒歩10分!!淵野辺相生3丁目で始まる、それぞれのスタイル。分譲住宅が新たに誕生します! |
| 2 along the line more accessible, Super close, It is close to the city, System kitchen, Bathroom Dryer, All room storage, Flat to the station, A quiet residential area, Around traffic fewer, Shaping land, Face-to-face kitchen, Barrier-free, Bathroom 1 tsubo or more, 2-story, Atrium, TV monitor interphone, High-function toilet, All living room flooring, Dish washing dryer, Water filter, Living stairs, City gas, Flat terrain, Attic storage 2沿線以上利用可、スーパーが近い、市街地が近い、システムキッチン、浴室乾燥機、全居室収納、駅まで平坦、閑静な住宅地、周辺交通量少なめ、整形地、対面式キッチン、バリアフリー、浴室1坪以上、2階建、吹抜け、TVモニタ付インターホン、高機能トイレ、全居室フローリング、食器洗乾燥機、浄水器、リビング階段、都市ガス、平坦地、屋根裏収納 |
Features pickup 特徴ピックアップ | | 2 along the line more accessible / Super close / It is close to the city / System kitchen / Bathroom Dryer / All room storage / Flat to the station / A quiet residential area / Around traffic fewer / Shaping land / Face-to-face kitchen / Barrier-free / Bathroom 1 tsubo or more / 2-story / Atrium / TV monitor interphone / High-function toilet / All living room flooring / Dish washing dryer / Water filter / Living stairs / City gas / Flat terrain / Attic storage 2沿線以上利用可 /スーパーが近い /市街地が近い /システムキッチン /浴室乾燥機 /全居室収納 /駅まで平坦 /閑静な住宅地 /周辺交通量少なめ /整形地 /対面式キッチン /バリアフリー /浴室1坪以上 /2階建 /吹抜け /TVモニタ付インターホン /高機能トイレ /全居室フローリング /食器洗乾燥機 /浄水器 /リビング階段 /都市ガス /平坦地 /屋根裏収納 | Property name 物件名 | | Fuchinobe a 15-minute walk from the train station! ! All 34 compartments Newly built condominiums remaining five buildings! ! 淵野辺駅より徒歩15分!!全34区画 新築分譲住宅残り5棟!! | Price 価格 | | 33,800,000 yen ~ 35,800,000 yen 3380万円 ~ 3580万円 | Floor plan 間取り | | 3LDK 3LDK | Units sold 販売戸数 | | 5 units 5戸 | Total units 総戸数 | | 34 units 34戸 | Land area 土地面積 | | 90.55 sq m ~ 100.42 sq m 90.55m2 ~ 100.42m2 | Building area 建物面積 | | 86.94 sq m ~ 92.12 sq m 86.94m2 ~ 92.12m2 | Driveway burden-road 私道負担・道路 | | Road width: 4.5m, 5m, Asphaltic pavement 道路幅:4.5m、5m、アスファルト舗装 | Completion date 完成時期(築年月) | | 2013 end of November 2013年11月末 | Address 住所 | | Sagamihara City, Kanagawa Prefecture, Chuo-ku Aioi 3-6 神奈川県相模原市中央区相生3-6 | Traffic 交通 | | JR Yokohama Line "Fuchinobe" walk 15 minutes JR Yokohama Line "Yabe" walk 21 minutes JR Sagami Line "upper groove" walk 31 minutes JR横浜線「淵野辺」歩15分 JR横浜線「矢部」歩21分 JR相模線「上溝」歩31分
| Contact お問い合せ先 | | TEL: 0800-808-9018 [Toll free] mobile phone ・ Also available from PHS Caller ID is not notified Please contact the "saw SUUMO (Sumo)" If it does not lead, If the real estate company TEL:0800-808-9018【通話料無料】携帯電話・PHSからもご利用いただけます 発信者番号は通知されません 「SUUMO(スーモ)を見た」と問い合わせください つながらない方、不動産会社の方は
| Building coverage, floor area ratio 建ぺい率・容積率 | | Kenpei rate: 60%, Volume ratio: 200% 建ペい率:60%、容積率:200% | Time residents 入居時期 | | Consultation 相談 | Land of the right form 土地の権利形態 | | Ownership 所有権 | Structure and method of construction 構造・工法 | | Wooden 2-story (framing method) 木造2階建(軸組工法) | Construction 施工 | | Mito Ju販 美都住販 | Use district 用途地域 | | One middle and high 1種中高 | Land category 地目 | | Residential land 宅地 | Other limitations その他制限事項 | | Regulations have by the Landscape Act, Quasi-fire zones 景観法による規制有、準防火地域 | Overview and notices その他概要・特記事項 | | Building confirmation number: first H25SBC- sure 01111H No. 建築確認番号:第H25SBC-確01111H号 | Company profile 会社概要 | | <Seller> Kanagawa Governor (6) No. 019072 (Ltd.) Mito Ju販 Sagamihara Chuo Branch Yubinbango252-0236 Sagamihara City, Kanagawa Prefecture, Chuo-ku Fujimi 3-15-7 <売主>神奈川県知事(6)第019072号(株)美都住販相模原中央支店〒252-0236 神奈川県相模原市中央区富士見3-15-7 |
The entire compartment Figure全体区画図  Compartment figure
区画図
☆ Local (12 May 2013) Shooting ☆ No.B-10 Building was finished in stylish! !☆現地(2013年12月)撮影☆No.B-10号棟スタイリッシュに仕上がりました!!  ☆ Local (12 May 2013) Shooting ☆
☆現地(2013年12月)撮影☆
☆ Local (11 May 2013) Shooting ☆ No.8 Building model house☆現地(2013年11月)撮影☆No.8号棟モデルハウス  ☆ Local (11 May 2013) Shooting ☆
☆現地(2013年11月)撮影☆
Livingリビング  ☆ No.B-8 Building model house ☆ Also it comes with a wide housed in 18 Pledge exceeded of living!
☆No.B-8号棟モデルハウス☆18帖超えのリビングに幅広収納も付いています!
Kitchenキッチン  ☆ No.B-8 Building model house ☆ 2550 is the wider system of kitchen! With built-in water purifier! You can cook with conversation because face-to-face!
☆No.B-8号棟モデルハウス☆2550の幅広システムキッチンです!ビルトイン浄水器付!対面式だから会話しながら料理が出来ます!
Other introspectionその他内観  ☆ No.B-10 Building ☆ A feeling of opening up by blow! Brighten the more living with a skylight! !
☆No.B-10号棟☆吹抜けにより開放感アップ!天窓付きでよりリビングを明るく!!
Bathroom浴室  ☆ No.B-10 Building ☆ Spacious bathroom of 1 pyeong type! The accent panel subdued brown color, The relaxation of location, , ,
☆No.B-10号棟☆1坪タイプの広々浴室です!アクセントパネルは落ち着いたブラウン色で、寛ぎの場所に、、、
Park公園  Or of the children in the park for up to Kanuma park is full of 725m green and fountains, Or leisurely, It will be the refresh of the place!
鹿沼公園まで725m 緑と泉に溢れている公園でお子様を連れたり、のんびりしたり、リフレッシュの場となります!
Station駅  7 minutes also train to Fuchinobe Station from 1155m JR Yokohama Line "Fuchinobe Station" to walk 15 minutes !! terminal station "Machida Station"! 8 minutes in the "Hashimoto Station" train !!
淵野辺駅まで1155m JR横浜線「淵野辺駅」から徒歩15分!!ターミナル駅「町田駅」までも電車で7分!「橋本駅」電車で8分!!
Supermarketスーパー  If the closeness !! This closeness to survive the shopping in the 730m walk 10 minutes to the Super Sanwa, Walking while holding a plastic shopping bag, you can return !!
スーパー三和まで730m 徒歩10分で買い物に助かる近さ!!この近さであれば、レジ袋を持ちながら歩いて帰れます!!
Primary school小学校  Yasaka until elementary school 560m flat road, I will attend on foot 7 minutes! The proximity of the peace of mind to the children !!
弥栄小学校まで560m 平坦な道、徒歩7分で通えます!お子様に安心の近さ!!
Supermarketスーパー  840m to the Co-op Kanagawa
コープかながわまで840m
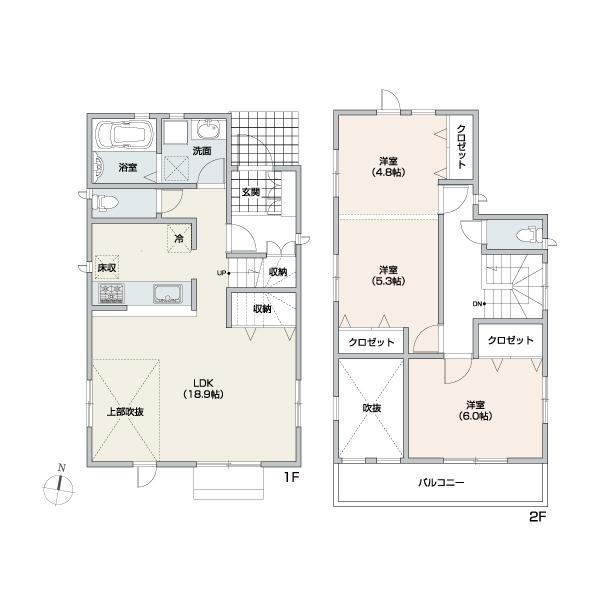
Floor plan間取り図  (No.6 compartment), Price 35,800,000 yen, 3LDK, Land area 100.4 sq m , Building area 86.94 sq m
(No.6区画)、価格3580万円、3LDK、土地面積100.4m2、建物面積86.94m2
 (No.7 compartment), Price 35,800,000 yen, 3LDK, Land area 100.38 sq m , Building area 86.94 sq m
(No.7区画)、価格3580万円、3LDK、土地面積100.38m2、建物面積86.94m2
 (No.10 compartment), Price 33,800,000 yen, 3LDK, Land area 90.55 sq m , Building area 92.12 sq m
(No.10区画)、価格3380万円、3LDK、土地面積90.55m2、建物面積92.12m2
Livingリビング  ☆ No.B-10 Building ☆
☆No.B-10号棟☆
 ☆ No.B-10 Building ☆
☆No.B-10号棟☆
Kitchenキッチン  ☆ No.B-10 Building ☆
☆No.B-10号棟☆
Toiletトイレ  ☆ No.B-10 Building ☆
☆No.B-10号棟☆
Wash basin, toilet洗面台・洗面所  ☆ No.B-10 Building ☆
☆No.B-10号棟☆
Livingリビング  ☆ No.B-8 Building model house ☆
☆No.B-8号棟モデルハウス☆
Bathroom浴室  ☆ No.B-8 Building model house ☆
☆No.B-8号棟モデルハウス☆
The entire compartment Figure全体区画図  Second quarter sales start! !
第二期販売開始!!
Supermarketスーパー  1195m until Okay store
オーケーストアまで1195m
Location
|