New Homes » Kanto » Kanagawa Prefecture » Sagamihara, Chuo-ku
 
| | Sagamihara City, Kanagawa Prefecture, Chuo-ku, 神奈川県相模原市中央区 |
| JR Sagami Line "Vanden" walk 4 minutes JR相模線「番田」歩4分 |
| All five compartment, Hashimoto Station 15-minute walk 全5区画、橋本駅徒歩15分 |
| The latest enhancement equipment specifications [kitchen] Soft-close storage, Artificial marble sink, Dish dryer, Rectification plate Smart Food [bathroom] Air-in shower, Mist sauna, 16 inches TV, Warm bath, Drying heating function ventilator [Joinery] door, Storage Interior high door etc. 最新の充実設備仕様 【キッチン】ソフトクローズ収納、人造大理石シンク、食洗乾燥機、整流板スマートフード 【浴室】エアインシャワー、ミストサウナ、16インチTV、保温浴槽、乾燥暖房機能換気扇 【建具】扉、収納インテリアハイドア etc. |
Seller comments 売主コメント | | 1 Building 1号棟 | Features pickup 特徴ピックアップ | | System kitchen / Bathroom Dryer / Yang per good / All room storage / Flat to the station / Starting station / Mist sauna / Washbasin with shower / Face-to-face kitchen / Toilet 2 places / Bathroom 1 tsubo or more / 2-story / Double-glazing / Warm water washing toilet seat / TV with bathroom / Underfloor Storage / The window in the bathroom / TV monitor interphone / Dish washing dryer / Water filter / City gas / Flat terrain / Attic storage システムキッチン /浴室乾燥機 /陽当り良好 /全居室収納 /駅まで平坦 /始発駅 /ミストサウナ /シャワー付洗面台 /対面式キッチン /トイレ2ヶ所 /浴室1坪以上 /2階建 /複層ガラス /温水洗浄便座 /TV付浴室 /床下収納 /浴室に窓 /TVモニタ付インターホン /食器洗乾燥機 /浄水器 /都市ガス /平坦地 /屋根裏収納 | Event information イベント情報 | | ~ ~ A variety of equipment ・ Standard specification ~ ~ ・ roof Hiroshi tiled ・ outer wall Soft ricin finish + Ikamu original ripple finish ・ System kitchen Soft-close storage Dishwasher All-in-one water purification plug (shower faucet) Floor sliding door Current plate with smart food ・ Wide vanity Three-sided mirror (with storage) Single lever shower faucet ・ Unit bus (the next-generation energy-saving standards) Heating function with dryer Mist sauna standard Artificial marble of warm bath (high insulation specification) Bathroom 16 inches TV Karratto floor Air-in shower ・ Entrance, Fingerprint lock ・ Intercom with color monitor (with recording function) ・ Joinery door, Receipt Interior high door specification ・ Each floor toilet Bidet Warm Rhett ・ Attic storage of effective space about 2 mat ensure ・ lighting equipment Living: Down Light 4 lights (with dimming function) ・ Aluminum sash All room part pair glass All opening screen door standard First floor of the shutter and the surface lattice standard ・ Ground survey, Ground improvement and construction according to the state ・ Construction Reinforced concrete mat foundation Basic packing method Glulam 3.5 cun angle (continuous columns 4 cun angle) etc ... ※ The above standard specifications are subject to change without prior notice. Please note. ~ ~ 多彩な設備・標準仕様 ~ ~ ・屋根 洋瓦葺き・外壁 ソフトリシン仕上げ+イーカムオリジナルリップル仕上げ・システムキッチン ソフトクローズ収納 食洗機 オールインワン浄水栓(シャワー水栓) フロアスライドドア 整流板付きスマートフード・ワイド洗面化粧台 三面鏡(収納付き) シングルレバーシャワー水栓・ユニットバス(次世代省エネ基準) 暖房機能付乾燥機 ミストサウナ標準 人造大理石の保温浴槽(高断熱仕様) 浴室16インチテレビ カッラット床 エアインシャワー・玄関、指紋認証施錠・カラーモニター付インターホン(録画機能付き)・建具 扉、収納 インテリアハイドア仕様・各階トイレ ウォシュレット ウォームレット・有効スペース約2畳確保の小屋裏収納・照明器具 リビング:ダウンライト4灯(調光機能付き)・アルミサッシ 全居室部ペアガラス 全開口部網戸標準 1階部分シャッター及び面格子標準・地盤調査、状態に応じ地盤改良施工・構造 鉄筋コンクリート造りベタ基礎 基礎パッキン工法 集成材3.5寸角(通し柱4寸角)etc…※上記標準仕様は予告なく変更する場合があります。予めご了承ください。 | Property name 物件名 | | Garbo City Vanden 8 stage ガルボシティー番田8期 | Price 価格 | | 22,800,000 yen ・ 24,800,000 yen 2280万円・2480万円 | Floor plan 間取り | | 4LDK 4LDK | Units sold 販売戸数 | | 2 units 2戸 | Total units 総戸数 | | 2 units 2戸 | Land area 土地面積 | | 92.56 sq m ・ 99.22 sq m (measured) 92.56m2・99.22m2(実測) | Building area 建物面積 | | 94.39 sq m ・ 95.73 sq m (measured) 94.39m2・95.73m2(実測) | Completion date 完成時期(築年月) | | 2013 late March 2013年3月下旬 | Address 住所 | | Sagamihara City, Kanagawa Prefecture, Chuo-ku, the upper groove 神奈川県相模原市中央区上溝 | Traffic 交通 | | JR Sagami Line "Vanden" walk 4 minutes JR相模線「番田」歩4分
| Related links 関連リンク | | [Related Sites of this company] 【この会社の関連サイト】 | Person in charge 担当者より | | [Regarding this property.] Convenient shopping at the station walk 4 minutes of good location 【この物件について】駅徒歩4分の好立地で買い物も便利 | Contact お問い合せ先 | | TEL: 0800-603-1295 [Toll free] mobile phone ・ Also available from PHS Caller ID is not notified Please contact the "saw SUUMO (Sumo)" If it does not lead, If the real estate company TEL:0800-603-1295【通話料無料】携帯電話・PHSからもご利用いただけます 発信者番号は通知されません 「SUUMO(スーモ)を見た」と問い合わせください つながらない方、不動産会社の方は
| Building coverage, floor area ratio 建ぺい率・容積率 | | Building coverage: 60%, Volume ratio: 200% 建ぺい率:60%、容積率:200% | Time residents 入居時期 | | Consultation 相談 | Land of the right form 土地の権利形態 | | Ownership 所有権 | Structure and method of construction 構造・工法 | | Wooden 2-story (framing method) 木造2階建(軸組工法) | Construction 施工 | | Ltd. Ikamu 株式会社イーカム | Use district 用途地域 | | Two mid-high 2種中高 | Land category 地目 | | Residential land 宅地 | Overview and notices その他概要・特記事項 | | Building confirmation number: the H25 building certification No. KBI04155 other 建築確認番号:第H25確認建築KBI04155号 他 | Company profile 会社概要 | | <Seller> Kanagawa Governor (2) No. 024804 (the company), Kanagawa Prefecture Building Lots and Buildings Transaction Business Association (Corporation) metropolitan area real estate Fair Trade Council member (Ltd.) Ikamu Yubinbango252-0143 Sagamihara City, Kanagawa Prefecture Midori-ku Hashimoto 3-11-8 <売主>神奈川県知事(2)第024804号(社)神奈川県宅地建物取引業協会会員 (公社)首都圏不動産公正取引協議会加盟(株)イーカム〒252-0143 神奈川県相模原市緑区橋本3-11-8 |
Local photos, including front road前面道路含む現地写真  Roof Hiroshi tiled Outer wall Ikamu original ripple finish
屋根洋瓦葺き 外壁イーカムオリジナルリップル仕上げ
Kitchenキッチン  Same specification kitchen Artificial marble sink, Dish dryer, Takara
同仕様キッチン 人造大理石シンク、食洗乾燥機、タカラ
Bathroom浴室  Same specification bathroom Air-in shower, mist, 16 inches TV, Warm bath, TOTO
同仕様浴室 エアインシャワー、ミスト、16インチTV、保温浴槽、TOTO
Floor plan間取り図  (1 Building), Price 22,800,000 yen, 4LDK, Land area 99.22 sq m , Building area 95.73 sq m
(1号棟)、価格2280万円、4LDK、土地面積99.22m2、建物面積95.73m2
Local appearance photo現地外観写真  Local (12 May 2013) Shooting
現地(2013年12月)撮影
Livingリビング  Same specifications living Joinery door interior high door specification
同仕様リビング 建具扉インテリアハイドア仕様
Non-living roomリビング以外の居室  Same specifications room
同仕様居室
Receipt収納  Ceiling height shoe closet
天井高シューズクロゼット
Supermarketスーパー  Sanwa Until Vanden shop 750m
三和 番田店まで750m
 The entire compartment Figure
全体区画図
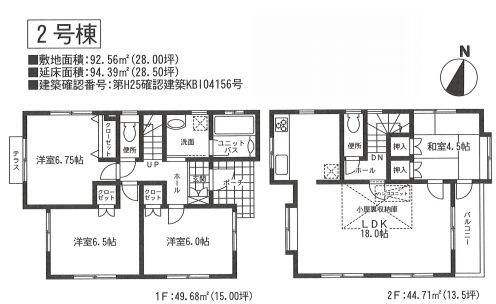
Floor plan間取り図  (Building 2), Price 24,800,000 yen, 4LDK, Land area 92.56 sq m , Building area 94.39 sq m
(2号棟)、価格2480万円、4LDK、土地面積92.56m2、建物面積94.39m2
Home centerホームセンター  Cain home until 1600m
カインズホームまで1600m
Supermarketスーパー  1900m to the Alps
アルプスまで1900m
Junior high school中学校  Sagamihara Municipal upper groove 600m to the south junior high school
相模原市立上溝南中学校まで600m
Primary school小学校  250m to Sagamihara Municipal upper groove Minami Elementary School
相模原市立上溝南小学校まで250m
Other Equipmentその他設備  Ikamu Hashimoto showrooms
イーカム橋本ショールーム
Location
|