New Homes » Kanto » Kanagawa Prefecture » Sagamihara, Chuo-ku
 
| | Sagamihara City, Kanagawa Prefecture, Chuo-ku, 神奈川県相模原市中央区 |
| JR Yokohama Line "Fuchinobe" 10 minutes Baba crossroads walk 4 minutes by bus JR横浜線「淵野辺」バス10分馬場十字路歩4分 |
| Properties that can be used a flat 35S フラット35Sを使える物件 |
| Onokita Elementary School 2000m Onokita junior high school 2200m Takahashi clinic 3200m Children's Forest kindergarten 3700m Children's Forest Nursery 3700m Parking two Allowed, Bathroom Dryer, LDK15 tatami mats or more, Shaping land, Face-to-face kitchen, 2-story, TV monitor interphone, City gas 大野北小学校2000m 大野北中学校2200m たかはしクリニック3200m 子どもの森幼稚園3700m 子どもの森保育園3700m 駐車2台可、浴室乾燥機、LDK15畳以上、整形地、対面式キッチン、2階建、TVモニタ付インターホン、都市ガス |
Features pickup 特徴ピックアップ | | Parking two Allowed / Bathroom Dryer / LDK15 tatami mats or more / Shaping land / Face-to-face kitchen / 2-story / TV monitor interphone / City gas 駐車2台可 /浴室乾燥機 /LDK15畳以上 /整形地 /対面式キッチン /2階建 /TVモニタ付インターホン /都市ガス | Price 価格 | | 26,800,000 yen 2680万円 | Floor plan 間取り | | 4LDK 4LDK | Units sold 販売戸数 | | 4 units 4戸 | Land area 土地面積 | | 120.21 sq m ~ 120.3 sq m (measured) 120.21m2 ~ 120.3m2(実測) | Building area 建物面積 | | 100.75 sq m ~ 101.23 sq m (measured) 100.75m2 ~ 101.23m2(実測) | Driveway burden-road 私道負担・道路 | | Road width: 6m 道路幅:6m | Completion date 完成時期(築年月) | | April 2014 schedule 2014年4月予定 | Address 住所 | | Sagamihara City, Kanagawa Prefecture, Chuo-ku, Kamiyabe 1 神奈川県相模原市中央区上矢部1 | Traffic 交通 | | JR Yokohama Line "Fuchinobe" 10 minutes Baba crossroads walk 4 minutes by bus Keio Sagamihara Line "Hashimoto" 15 minutes Baba crossroads walk 4 minutes by bus Keio Sagamihara Line "Tamasakai" 12 minutes Baba crossroads walk 4 minutes by bus JR横浜線「淵野辺」バス10分馬場十字路歩4分 京王相模原線「橋本」バス15分馬場十字路歩4分 京王相模原線「多摩境」バス12分馬場十字路歩4分
| Person in charge 担当者より | | Person in charge of Sakai Osamu Age: 40 Daigyokai Experience: 20 years our customers we strive every day to be able to answer the question in the spirit good faith effort. It covered in less experienced minute response and footwork. Since it is Atsugi residents, Please leave if Atsugi things. Thank you. 担当者坂井 修年齢:40代業界経験:20年お客様に精神誠意全力で質問にお答えできるよう日々努力しております。経験が少ない分レスポンスとフットワークでカバーしています。厚木在住ですので、厚木のことならお任せ下さい。宜しくお願い致します。 | Contact お問い合せ先 | | TEL: 0800-603-8480 [Toll free] mobile phone ・ Also available from PHS Caller ID is not notified Please contact the "saw SUUMO (Sumo)" If it does not lead, If the real estate company TEL:0800-603-8480【通話料無料】携帯電話・PHSからもご利用いただけます 発信者番号は通知されません 「SUUMO(スーモ)を見た」と問い合わせください つながらない方、不動産会社の方は
| Most price range 最多価格帯 | | 26 million yen (4 units) 2600万円台(4戸) | Building coverage, floor area ratio 建ぺい率・容積率 | | Kenpei rate: 60%, Volume ratio: 200% 建ペい率:60%、容積率:200% | Time residents 入居時期 | | Consultation 相談 | Land of the right form 土地の権利形態 | | Ownership 所有権 | Structure and method of construction 構造・工法 | | Wooden 2-story 木造2階建 | Use district 用途地域 | | Semi-industrial 準工業 | Land category 地目 | | Residential land 宅地 | Overview and notices その他概要・特記事項 | | Contact: Sakai Osamu, Building confirmation number: 02253 担当者:坂井 修、建築確認番号:02253 | Company profile 会社概要 | | <Mediation> Kanagawa Governor (2) Article 026 475 issue (stock) residence of square HOMESyubinbango252-0231 Sagamihara, Kanagawa Prefecture, Chuo-ku, Sagamihara 5-1-2A <仲介>神奈川県知事(2)第026475号(株)住まいの広場HOMES〒252-0231 神奈川県相模原市中央区相模原5-1-2A |
Local photos, including front road前面道路含む現地写真  But it is a beautiful cityscape in the large-scale development subdivision. It is also a good many living environment commercial facilities around.
大型開発分譲地で綺麗な街並みになります。周辺に商業施設も多く生活環境も良好です。
Same specifications photos (living)同仕様写真(リビング)  All room pair glass, Shutter shutters standard
全居室ペアガラス、シャッター雨戸標準
Same specifications photo (kitchen)同仕様写真(キッチン)  Artificial marble counter ・ Shower switching washing with water purifier ・ Built-in dishwasher
人工大理石カウンター・浄水器付シャワー切り替え水洗・ビルトイン食洗機
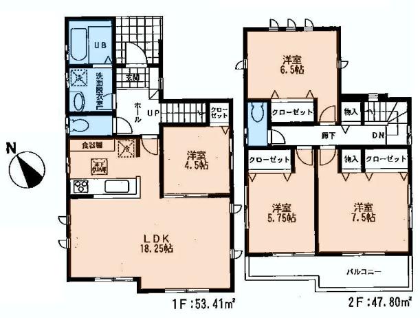
Floor plan間取り図  (31), Price 26,800,000 yen, 4LDK, Land area 120.21 sq m , Building area 101.23 sq m
(31)、価格2680万円、4LDK、土地面積120.21m2、建物面積101.23m2
 Local appearance photo
現地外観写真
Same specifications photo (bathroom)同仕様写真(浴室)  Barrier-free 1 pyeong type ・ Automatic hot water filling reheating with warmth
バリヤフリー1坪タイプ・自動湯張り追い炊き保温付
 Local photos, including front road
前面道路含む現地写真
Hospital病院  Takahashi 3200m to clinic
たかはしクリニックまで3200m
Same specifications photos (Other introspection)同仕様写真(その他内観)  (
(
 The entire compartment Figure
全体区画図
Floor plan間取り図  (30), Price 26,800,000 yen, 4LDK, Land area 120.25 sq m , Building area 101.21 sq m
(30)、価格2680万円、4LDK、土地面積120.25m2、建物面積101.21m2
 Local appearance photo
現地外観写真
 Local photos, including front road
前面道路含む現地写真
Kindergarten ・ Nursery幼稚園・保育園  3700m to the Children's Forest kindergarten
子どもの森幼稚園まで3700m
 Same specifications photos (Other introspection)
同仕様写真(その他内観)
Floor plan間取り図  (29), Price 26,800,000 yen, 4LDK, Land area 120.3 sq m , Building area 100.75 sq m
(29)、価格2680万円、4LDK、土地面積120.3m2、建物面積100.75m2
 Local appearance photo
現地外観写真
 Local photos, including front road
前面道路含む現地写真
Kindergarten ・ Nursery幼稚園・保育園  3700m to the Children's Forest Nursery
子どもの森保育園まで3700m
 Same specifications photos (Other introspection)
同仕様写真(その他内観)
Floor plan間取り図  (28), Price 26,800,000 yen, 4LDK, Land area 120.26 sq m , Building area 101.21 sq m
(28)、価格2680万円、4LDK、土地面積120.26m2、建物面積101.21m2
Location
|