New Homes » Kanto » Kanagawa Prefecture » Sagamihara Green Zone
 
| | Sagamihara City, Kanagawa Prefecture Midori-ku 神奈川県相模原市緑区 |
| Keio Sagamihara Line "Hashimoto" bus 14 minutes Ayumi Morishita 3 minutes 京王相模原線「橋本」バス14分森下歩3分 |
| Sagamihara Green Ward Aihara parking two Newly built single-family Corresponding to the flat-35S, Year Available, Parking two Allowed, 2 along the line more accessible, Facing south, System kitchen, Bathroom Dryer, All room storage, A quiet residential area, LD 相模原市緑区相原駐車2台 新築戸建 フラット35Sに対応、年内入居可、駐車2台可、2沿線以上利用可、南向き、システムキッチン、浴室乾燥機、全居室収納、閑静な住宅地、LD |
| There are a number of commercial premises in a quiet residential area but within walking distance living environment is also good. Aihara Elementary School 1600m Aihara Junior High School 2600m Aihara hospital 1100m Sagamino kindergarten 1400m Daiei Gourmet City Nihonmatsu shop 1700m Corresponding to the flat-35S, Year Available, Parking two Allowed, 2 along the line more accessible, Facing south, System kitchen, Bathroom Dryer, All room storage, A quiet residential area, LDK15 tatami mats or moreese-style room, Starting station, Shaping land, Washbasin with shower, Face-to-face kitchen, Toilet 2 places, Bathroom 1 tsubo or more, 2-story, Double-glazing, Warm water washing toilet seat, Nantei, Underfloor Storage, The window in the bathroom, TV monitor interphone, Water filter, All rooms are two-sided lighting, roof balcony 閑静な住宅街ですが徒歩圏に商業施設多数あり生活環境も良好です。 相原小学校1600m 相原中学校2600m 相原病院1100m 相模野幼稚園1400m ダイエーグルメシティ二本松店1700m フラット35Sに対応、年内入居可、駐車2台可、2沿線以上利用可、南向き、システムキッチン、浴室乾燥機、全居室収納、閑静な住宅地、LDK15畳以上、和室、始発駅、整形地、シャワー付洗面台、対面式キッチン、トイレ2ヶ所、浴室1坪以上、2階建、複層ガラス、温水洗浄便座、南庭、床下収納、浴室に窓、TVモニタ付インターホン、浄水器、全室2面採光、ルーフバルコニー |
Features pickup 特徴ピックアップ | | Corresponding to the flat-35S / Year Available / Parking two Allowed / 2 along the line more accessible / Facing south / System kitchen / Bathroom Dryer / All room storage / A quiet residential area / LDK15 tatami mats or more / Japanese-style room / Starting station / Shaping land / Washbasin with shower / Face-to-face kitchen / Toilet 2 places / Bathroom 1 tsubo or more / 2-story / Double-glazing / Warm water washing toilet seat / Nantei / Underfloor Storage / The window in the bathroom / TV monitor interphone / Water filter / All rooms are two-sided lighting / roof balcony フラット35Sに対応 /年内入居可 /駐車2台可 /2沿線以上利用可 /南向き /システムキッチン /浴室乾燥機 /全居室収納 /閑静な住宅地 /LDK15畳以上 /和室 /始発駅 /整形地 /シャワー付洗面台 /対面式キッチン /トイレ2ヶ所 /浴室1坪以上 /2階建 /複層ガラス /温水洗浄便座 /南庭 /床下収納 /浴室に窓 /TVモニタ付インターホン /浄水器 /全室2面採光 /ルーフバルコニー | Price 価格 | | 27,800,000 yen 2780万円 | Floor plan 間取り | | 4LDK 4LDK | Units sold 販売戸数 | | 1 units 1戸 | Land area 土地面積 | | 120.74 sq m (registration) 120.74m2(登記) | Building area 建物面積 | | 96.46 sq m (measured) 96.46m2(実測) | Driveway burden-road 私道負担・道路 | | Nothing, East 4.5m width 無、東4.5m幅 | Completion date 完成時期(築年月) | | October 2013 2013年10月 | Address 住所 | | Sagamihara City, Kanagawa Prefecture Midori Ward Aihara 6 神奈川県相模原市緑区相原6 | Traffic 交通 | | Keio Sagamihara Line "Hashimoto" bus 14 minutes Ayumi Morishita 3 minutes JR Yokohama Line "Sagamihara" bus 29 minutes Ayumi Morishita 3 minutes JR Chuo Line "Hachioji" 45 minutes Ayumi Morishita 3 minutes by bus 京王相模原線「橋本」バス14分森下歩3分 JR横浜線「相模原」バス29分森下歩3分 JR中央線「八王子」バス45分森下歩3分
| Person in charge 担当者より | | Personnel FP Keiji Osawa Age: 40 Daigyokai Experience: 20 years real estate purchase is difficult. That's why you cage kept in mind for the first time of the easy-to-understand carefully even better. It is not in selling all there is to it. It will be a long-term relationship. We are working responsibly. 担当者FP大澤啓二年齢:40代業界経験:20年不動産購入は難しいことです。だからこそ初めての方にもわかりやすく丁寧にを心がけて居ります。売ってお終いではありません。長いお付き合いになります。責任を持って取り組んでおります。 | Contact お問い合せ先 | | TEL: 0800-603-8480 [Toll free] mobile phone ・ Also available from PHS Caller ID is not notified Please contact the "saw SUUMO (Sumo)" If it does not lead, If the real estate company TEL:0800-603-8480【通話料無料】携帯電話・PHSからもご利用いただけます 発信者番号は通知されません 「SUUMO(スーモ)を見た」と問い合わせください つながらない方、不動産会社の方は
| Building coverage, floor area ratio 建ぺい率・容積率 | | Fifty percent ・ 80% 50%・80% | Time residents 入居時期 | | Consultation 相談 | Land of the right form 土地の権利形態 | | Ownership 所有権 | Structure and method of construction 構造・工法 | | Wooden 2-story 木造2階建 | Use district 用途地域 | | One low-rise 1種低層 | Overview and notices その他概要・特記事項 | | Contact: Keiji Osawa, Facilities: Public Water Supply, This sewage, Individual LPG, Building confirmation number: 01621, Parking: car space 担当者:大澤啓二、設備:公営水道、本下水、個別LPG、建築確認番号:01621、駐車場:カースペース | Company profile 会社概要 | | <Mediation> Kanagawa Governor (2) Article 026 475 issue (stock) residence of square HOMESyubinbango252-0231 Sagamihara, Kanagawa Prefecture, Chuo-ku, Sagamihara 5-1-2A <仲介>神奈川県知事(2)第026475号(株)住まいの広場HOMES〒252-0231 神奈川県相模原市中央区相模原5-1-2A |
Local appearance photo現地外観写真  There are a number of commercial premises in a quiet residential area but within walking distance living environment is also good.
閑静な住宅街ですが徒歩圏に商業施設多数あり生活環境も良好です。
Livingリビング  LDK15 Pledge, All room pair glass, Shutters standard
LDK15帖、全居室ペアガラス、雨戸標準
 Living
リビング
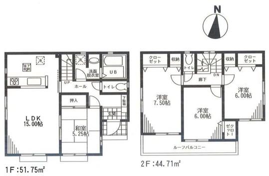
Floor plan間取り図  27,800,000 yen, 4LDK, Land area 120.74 sq m , Building area 96.46 sq m
2780万円、4LDK、土地面積120.74m2、建物面積96.46m2
Bathroom浴室  1 tsubo size ・ Barrier-free type ・ With bathroom dryer
1坪サイズ・バリアフリータイプ・浴室乾燥機付
Kitchenキッチン  Artificial marble counter ・ Pair type water purifier with system Kitchen
人造大理石カウンター・一対型浄水器付システムキッチン
 Non-living room
リビング以外の居室
 Entrance
玄関
 Wash basin, toilet
洗面台・洗面所
 Receipt
収納
 Toilet
トイレ
 Parking lot
駐車場
 Balcony
バルコニー
Hospital病院  Aihara 1100m to the hospital
相原病院まで1100m
 Other
その他
 Non-living room
リビング以外の居室
 Receipt
収納
Kindergarten ・ Nursery幼稚園・保育園  1400m until Sagamino kindergarten
相模野幼稚園まで1400m
 Non-living room
リビング以外の居室
 Receipt
収納
Other Environmental Photoその他環境写真  1700m to Daiei Gourmet City Nihonmatsu shop
ダイエーグルメシティ二本松店まで1700m
Location
|