New Homes » Kanto » Kanagawa Prefecture » Sagamihara Green Zone
 
| | Sagamihara City, Kanagawa Prefecture Midori-ku 神奈川県相模原市緑区 |
| JR Yokohama Line "Hashimoto" walk 15 minutes JR横浜線「橋本」歩15分 |
| Second floor city gas Hashimoto quiet residential area city good super flat starting station per yang to near flat land 2 wayside more accessible station close to a flat 15-minute walk the city until the station is visible near the peripheral traffic fewer mountain 橋本駅まで平坦徒歩15分 市街地が近い 閑静な住宅地 都市近郊 平坦地 2沿線以上利用可 駅まで平坦 始発駅 陽当り良好 スーパーが近い 周辺交通量少なめ 山が見える 都市ガス 2階 |
| Is convenient shopping there is Makkusubaryu Sagamihara Higashihashimoto shop in a 1-minute walk in the Hashimoto Station 15 minutes' walk of the development subdivision. Miyagami elementary school 1050m Asahi Junior High School 1250m Asahi clinic 350m Takami nursery 400m super Alps Hashimoto shop 750m city is near a quiet residential area suburban flat land 2 wayside more than ever accessible around the station near the flat starting station sun per good super traffic fewer mountain 橋本駅徒歩15分の開発分譲地で徒歩1分にマックスバリュー相模原東橋本店があり買物が便利です。宮上小学校 1050m 旭中学校 1250m あさひクリニック 350m 高見保育園 400m スーパーアルプス橋本店 750m 市街地が近い 閑静な住宅地 都市近郊 平坦地 2沿線以上利用可 駅まで平坦 始発駅 陽当り良好 スーパーが近い 周辺交通量少なめ 山が見える 都市ガス 2階建 通風良好 LDK15畳以上 和室 全居室収納 床下収納 システムキッチン 対面式キッチン 浄水器 浴室乾燥機 浴室1坪以上 オートバス 浴室に窓 シャワー付洗面台 トイレ2ヶ所 温水洗浄便座 複層ガラス |
Features pickup 特徴ピックアップ | | 2 along the line more accessible / See the mountain / Super close / It is close to the city / System kitchen / Bathroom Dryer / Yang per good / All room storage / Flat to the station / A quiet residential area / LDK15 tatami mats or more / Around traffic fewer / Japanese-style room / Starting station / Washbasin with shower / Face-to-face kitchen / Toilet 2 places / Bathroom 1 tsubo or more / 2-story / Double-glazing / Otobasu / Warm water washing toilet seat / Underfloor Storage / The window in the bathroom / Urban neighborhood / Ventilation good / Water filter / City gas / Flat terrain 2沿線以上利用可 /山が見える /スーパーが近い /市街地が近い /システムキッチン /浴室乾燥機 /陽当り良好 /全居室収納 /駅まで平坦 /閑静な住宅地 /LDK15畳以上 /周辺交通量少なめ /和室 /始発駅 /シャワー付洗面台 /対面式キッチン /トイレ2ヶ所 /浴室1坪以上 /2階建 /複層ガラス /オートバス /温水洗浄便座 /床下収納 /浴室に窓 /都市近郊 /通風良好 /浄水器 /都市ガス /平坦地 | Price 価格 | | 33,800,000 yen ~ 38,800,000 yen 3380万円 ~ 3880万円 | Floor plan 間取り | | 4LDK 4LDK | Units sold 販売戸数 | | 7 units 7戸 | Land area 土地面積 | | 101.4 sq m ~ 115.16 sq m (registration) 101.4m2 ~ 115.16m2(登記) | Building area 建物面積 | | 99.36 sq m ~ 99.99 sq m (measured) 99.36m2 ~ 99.99m2(実測) | Driveway burden-road 私道負担・道路 | | Road width: 4.5m 道路幅:4.5m | Completion date 完成時期(築年月) | | March 2014 schedule 2014年3月予定 | Address 住所 | | Sagamihara City, Kanagawa Prefecture Midori Ward Higashihashimoto 2 神奈川県相模原市緑区東橋本2 | Traffic 交通 | | JR Yokohama Line "Hashimoto" walk 15 minutes Keio Sagamihara Line "Tamasakai" walk 20 minutes JR Yokohama Line "Sagamihara" walk 28 minutes JR横浜線「橋本」歩15分 京王相模原線「多摩境」歩20分 JR横浜線「相模原」歩28分
| Person in charge 担当者より | | Rep Sugawara Tomoki Age: 20 Daigyokai experience: Nice to meet you 5 years! Industry history still has to study every day, but is shallow "I can wonder is your also wondering" creed. Please let me support you live your purchase of your ideal from both the point of view of our customers and the real estate agent. 担当者菅原 智樹年齢:20代業界経験:5年はじめまして!まだまだ業界歴は浅いですが「自分が疑問に思うことはお客様も疑問に思っている」を信条に日々勉強しています。お客様と不動産屋の両方の視点からお理想のお住まいご購入をサポートさせてください。 | Contact お問い合せ先 | | TEL: 0800-603-8480 [Toll free] mobile phone ・ Also available from PHS Caller ID is not notified Please contact the "saw SUUMO (Sumo)" If it does not lead, If the real estate company TEL:0800-603-8480【通話料無料】携帯電話・PHSからもご利用いただけます 発信者番号は通知されません 「SUUMO(スーモ)を見た」と問い合わせください つながらない方、不動産会社の方は
| Most price range 最多価格帯 | | 38 million yen (3 units) 3800万円台(3戸) | Building coverage, floor area ratio 建ぺい率・容積率 | | Kenpei rate: 60%, Volume ratio: 200% 建ペい率:60%、容積率:200% | Time residents 入居時期 | | Consultation 相談 | Land of the right form 土地の権利形態 | | Ownership 所有権 | Structure and method of construction 構造・工法 | | Wooden 2-story 木造2階建 | Use district 用途地域 | | One dwelling, Two dwellings 1種住居、2種住居 | Land category 地目 | | Residential land 宅地 | Other limitations その他制限事項 | | Irregular land 不整形地 | Overview and notices その他概要・特記事項 | | Contact: Sugawara Tomoki, Building confirmation number: 00489 担当者:菅原 智樹、建築確認番号:00489 | Company profile 会社概要 | | <Mediation> Kanagawa Governor (2) Article 026 475 issue (stock) residence of square HOMESyubinbango252-0231 Sagamihara, Kanagawa Prefecture, Chuo-ku, Sagamihara 5-1-2A <仲介>神奈川県知事(2)第026475号(株)住まいの広場HOMES〒252-0231 神奈川県相模原市中央区相模原5-1-2A |
Local photos, including front road前面道路含む現地写真  Is convenient shopping there is Makkusubaryu Sagamihara Higashihashimoto shop in a 1-minute walk in the Hashimoto Station 15 minutes' walk of the development subdivision.
橋本駅徒歩15分の開発分譲地で徒歩1分にマックスバリュー相模原東橋本店があり買物が便利です。
Same specifications photos (living)同仕様写真(リビング)  All room pair glass, Shutters standard
全居室ペアガラス、雨戸標準
Same specifications photo (kitchen)同仕様写真(キッチン)  Artificial marble counter ・ Pair type water purifier with system Kitchen
人造大理石カウンター・一対型浄水器付システムキッチン
Floor plan間取り図  (7 ●), Price 36,800,000 yen, 4LDK, Land area 115.16 sq m , Building area 99.77 sq m
(7●)、価格3680万円、4LDK、土地面積115.16m2、建物面積99.77m2
 Local appearance photo
現地外観写真
Same specifications photo (bathroom)同仕様写真(浴室)  1 tsubo size ・ Barrier-free type ・ With bathroom dryer
1坪サイズ・バリアフリータイプ・浴室乾燥機付
 Local photos, including front road
前面道路含む現地写真
Hospital病院  350m to Asahi clinic
あさひクリニックまで350m
 Same specifications photos (Other introspection)
同仕様写真(その他内観)
 The entire compartment Figure
全体区画図
Floor plan間取り図  (6 ●), Price 35,800,000 yen, 4LDK, Land area 111.55 sq m , Building area 99.78 sq m
(6●)、価格3580万円、4LDK、土地面積111.55m2、建物面積99.78m2
 Local appearance photo
現地外観写真
 Local photos, including front road
前面道路含む現地写真
Kindergarten ・ Nursery幼稚園・保育園  400m to Takami nursery
高見保育園まで400m
 Same specifications photos (Other introspection)
同仕様写真(その他内観)
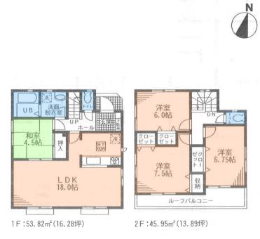
Floor plan間取り図  (5 ●), Price 38,800,000 yen, 4LDK, Land area 101.4 sq m , Building area 99.36 sq m
(5●)、価格3880万円、4LDK、土地面積101.4m2、建物面積99.36m2
 Local photos, including front road
前面道路含む現地写真
Supermarketスーパー  750m to Super Alps Hashimoto shop
スーパーアルプス橋本店まで750m
 Same specifications photos (Other introspection)
同仕様写真(その他内観)
Floor plan間取り図  (4 ●), Price 35,800,000 yen, 4LDK, Land area 114.85 sq m , Building area 99.36 sq m
(4●)、価格3580万円、4LDK、土地面積114.85m2、建物面積99.36m2
Location
|