New Homes » Kanto » Kanagawa Prefecture » Sagamihara Minami-ku
 
| | Sagamihara City, Kanagawa Prefecture, Minami-ku, 神奈川県相模原市南区 |
| JR Yokohama Line "Machida" walk 11 minutes JR横浜線「町田」歩11分 |
Property name 物件名 | | Nomura Real Estate Development Co., Ltd. Proud season Machida Second stage / Notice advertising 野村不動産 プラウドシーズン 町田 第2期/予告広告 | Price 価格 | | Undecided 未定 | Floor plan 間取り | | 4LDK 4LDK | Units sold 販売戸数 | | Undecided 未定 | Total units 総戸数 | | 38 houses 38戸 | Land area 土地面積 | | 120.58 sq m ~ 128.48 sq m 120.58m2 ~ 128.48m2 | Building area 建物面積 | | 95.99 sq m ~ 98.74 sq m 95.99m2 ~ 98.74m2 | Driveway burden-road 私道負担・道路 | | Road width: south ・ North ・ East about 6.0m on public roads, Driveway burden: No 道路幅:南側・北側・東側約6.0m公道、私道負担:無 | Completion date 完成時期(築年月) | | In late August 2013 2013年8月下旬 | Address 住所 | | Sagamihara City, Kanagawa Prefecture, Minami-ku, Unomori 3-chome No. 114 21 神奈川県相模原市南区鵜野森3丁目114番21他(地番) | Traffic 交通 | | JR Yokohama Line "Machida" walk 11 minutes Odakyu line "Machida" walk 13 minutes Odawara Line Odakyu "Sagami" walk 14 minutes JR横浜線「町田」歩11分 小田急線「町田」歩13分 小田急小田原線「相模大野」歩14分
| Related links 関連リンク | | [Related Sites of this company] 【この会社の関連サイト】 | Contact お問い合せ先 | | "Proud season Machida" Information Center TEL: 0120-385-364 [Toll free] (mobile phone ・ Also available from PHS. ) Please contact the "saw SUUMO (Sumo)" 「プラウドシーズン 町田」インフォメーションセンターTEL:0120-385-364【通話料無料】(携帯電話・PHSからもご利用いただけます。)「SUUMO(スーモ)を見た」と問い合わせください | Sale schedule 販売スケジュール | | ■ Sales started in mid-January 2014 ※ price ・ Units sold is undecided. Property data for sale dwelling units of the second phase is undetermined are inscribed things of all sales target dwelling unit of the second phase later. Determination information will be explicit in the new sale advertising. Acts that lead to secure the contract or reservation of the application and the application order to sale can not be absolutely. ■2014年1月中旬より販売開始※価格・販売戸数は未定です。第2期の販売住戸が未確定のため物件データは第2期以降の全販売対象住戸のものを表記しています。確定情報は新規分譲広告において明示いたします。販売開始まで契約または予約の申し込みおよび申し込み順位の確保につながる行為は一切できません。 | Event information イベント情報 | | ■ Model house published in! ※ Actual building ・ You can see the room. ※ Because you can see even without a reservation, Please join us feel free to. ■ 2014 1 / 4 (Sat) ・ 5 (Sunday) New Year all mansion new public! ■ 2014 1 / 4 (Sat) ・ 5 (Sun) limited two-day "New Year lottery campaign" held! ◇ gifts to choose the lucky bag We offer happy gifts also got children also adults. ◇ Property in HP "New Year lottery campaign" detail screen Please bring on the print-out. ※ Per person one-time, And it will be up to once a family. ※ It can not be used in conjunction with other campaigns. ※ During your visit, It will be limited to a person who had your tour of the fill and the model house of the questionnaire. ※ Event content are subject to change without notice. ※ Product there is a limited number. Please note that it will end as soon disappears. ■ Document request being accepted! Of the person you wish to detail, Click on the "material button to charge" in the upper right ※ We will send you the most up-to-date information to the person who was the article our claim to priority. ■モデルハウス公開中!※実際の建物・お部屋をご覧いただけます。※ご予約なしでもご覧いただけますので、お気軽にお越しください。■2014年1/4(土)・5(日)新春全邸新公開!■2014年1/4(土)・5(日)2日間限定「新春お年玉キャンペーン」開催!◇選べる福袋をプレゼント 大人の方もお子様ももらって嬉しいプレゼントをご用意しております。◇物件HPの「新春お年玉キャンペーン」詳細画面をプリントアウトの上お持ち下さい。※お1人様1回限り、1家族1回までとさせていただきます。※他のキャンペーンとの併用はできません。※ご来場の際、アンケートのご記入とモデルハウスのご見学をいただいた方に限らせていただきます。※イベント内容は予告なく変更となる場合があります。※商品は数に限りがございます。無くなり次第終了となりますので予めご了承ください。■資料請求受付中!詳細をご希望の方は、右上の「資料請求するボタン」をクリック※資料請求いただいた方には優先して最新情報をお送りいたします。 | Building coverage, floor area ratio 建ぺい率・容積率 | | Kenpei rate: 50% ・ Volume of 80% 建ペい率:50%・容積率80% | Time residents 入居時期 | | February 2014 late schedule 2014年2月下旬予定 | Land of the right form 土地の権利形態 | | Ownership 所有権 | Structure and method of construction 構造・工法 | | Wooden 2-story (2 × 4 construction method) 木造2階建(2×4工法) | Construction 施工 | | Tokyu Construction Co., Ltd., Seibukensetsu Co., Ltd. 東急建設株式会社、西武建設株式会社 | Use district 用途地域 | | One low-rise 1種低層 | Land category 地目 | | field 畑 | Overview and notices その他概要・特記事項 | | Building confirmation number: No. HPA-13-02135-1 (2013 April 17 date) Other, Facilities: Tokyo Gas, Public water supply and sewerage systems, Tokyo Electric Power Co., Car space (all households), Development total site area: 5859.27 sq m , ※ Completion date Supplement: Late August 2013, Late September, July 2014 early schedule, ※ Occupancy time Note: 2014 late February schedule, In late March schedule, Late September schedule, ※ Land category Note: field (production green space), ※ 1: 3 stops, JR Yokohama Line "Machida" station ・ Odakyu line "Machida" station ・ Trains "Sagamiono" station, 3 line and is, JR Yokohama Line ・ Odakyu Odawara Line ・ It refers to the Enoshima Odakyu. ※ 2: Rendering CG of the web is one that caused draw based on the drawings of the planning stage, In fact a slightly different. It should be noted, Details of appearance ・ Equipment ・ Piping ・ Lighting equipment, and the like, and peripheral building ・ Utility pole ・ Overhead line ・ Signs, etc., it has some omitted or simplified. Not a representation of a particular situation with regard to planting, It does not grow to about Rendering at the time of completion. ※ Regarding tile and various member is, Thing and texture ・ There is a case where the appearance of such a different color. 建築確認番号:HPA-13-02135-1号(平成25年4月17日付)他、設備:東京ガス、公共上下水道、東京電力、カースペース(全戸)、開発総敷地面積:5859.27m2、※完成時期補足:2013年8月下旬、9月下旬、2014年7月上旬予定、※入居時期補足:2014年2月下旬予定、3月下旬予定、9月下旬予定、※地目補足:畑(生産緑地)、※1:3駅とは、JR横浜線「町田」駅・小田急線「町田」駅・同線「相模大野」駅、3路線とは、JR横浜線・小田急線小田原線・小田急江ノ島線を指します。※2:掲載の完成予想図CGは計画段階の図面を基に描き起こしたもので、実際とは多少異なります。なお、外観の細部・設備機器・配管・照明機器等および周辺建物・電柱・架線・標識等は一部省略又は簡略化しております。植栽につきましては特定の状況を表現したものではなく、竣工時には完成予想図程度には成長しておりません。※タイルや各種部材につきましては、実物と質感・色等の見え方が異なる場合があります。 | Company profile 会社概要 | | <Seller> Minister of Land, Infrastructure and Transport (12) No. 1370 (one company) Real Estate Association (Corporation) metropolitan area real estate Fair Trade Council member Nomura Real Estate Development Co., Ltd. Yubinbango163-0566 Tokyo Nishi-Shinjuku, Shinjuku-ku, 1-26-2 Shinjuku Nomura Building 46th floor <売主>国土交通大臣(12)第1370号(一社)不動産協会会員 (公社)首都圏不動産公正取引協議会加盟野村不動産株式会社〒163-0566 東京都新宿区西新宿1-26-2 新宿野村ビル46階 |
Local guide map現地案内図  JR Yokohama Line ・ Odakyu line "Machida" station, Odawara Line Odakyu "Sagamiono" 3 Station Available station! It gathered Station life convenience facilities. Also dotted with large and small park in the surrounding local, Spread is living environment city functions and nature valuable to fusion. (Local guide map)
JR横浜線・小田急線「町田」駅、小田急小田原線「相模大野」駅の3駅利用可!駅前は生活利便施設が集結。また現地周辺には大小の公園も点在し、都市機能と自然が融合する価値ある住環境が広がる。(現地案内図)
Cityscape Rendering街並完成予想図  JR "Machida" station, On the Odakyu line "Sagami" station within walking distance, Birth of single-family district District of all 38 compartments. In tall buildings less peripheral located in first-class low-rise exclusive residential area, Big sky spread full of sense of openness. (Cityscape Rendering CG ※ 2)
JR「町田」駅、小田急線「相模大野」駅徒歩圏に、全38区画の一戸建て街区が誕生。第一種低層住居専用地域に位置し周辺に高い建物が少なく、開放感あふれる大きな空が広がる。(街並完成予想CG※2)
 "Machida" station and JR Yokohama line of walk 11 minutes, Big terminal station Odakyu line of walk 13 minutes to cross. Station has gathered a variety of large-scale commercial facilities. Without the outing, Be the first to start a convenient lifestyle that shopping can enjoy walking distance.
「町田」駅は徒歩11分のJR横浜線と、徒歩13分の小田急線が交差するビッグターミナル駅。駅前は多彩な大型商業施設が集結。遠出をせずに、徒歩圏でショッピングが楽しめる至便な暮らしをはじめよう。
 Opened in March 2013, "Bono Sagamiono" is, Large facilities consisting of about 180 store. Align people gather as open space and event venue of rest "Bono Square" and eateries street "Bono Alley", such as variety of facilities.
2013年3月にオープンした「ボーノ相模大野」は、約180店舗からなる大型施設。憩いの広場やイベント会場として人々が集う「ボーノ広場」や飲食店街「ボーノ横丁」など多彩な施設が揃う。
Aerial photograph航空写真  3 Station 3 routes available. JR "Machida" station walk 11 minutes, Odakyu line "Sagami" station walk 14 minutes and two big terminals living area. Local peripheral aerial photographs ( ※ Which was subjected to a CG processing in 2013 May captured aerial photographs, In fact the different. )
3駅3路線利用可能。JR「町田」駅徒歩11分、小田急線「相模大野」駅徒歩14分と2つのビッグターミナルが生活圏。 現地周辺航空写真(※2013年5月撮影した航空写真にCG加工を施したもので、実際とは異なります。)
 Floor plan
間取り図
 Floor plan
間取り図
 Floor plan
間取り図
 Floor plan
間取り図
Park公園  390m to babble park Mori servants
しももりせせらぎ公園まで390m
 470m until Kashimadai park
鹿島台公園まで470m
 Sagamiono to Central Park 830m
相模大野中央公園まで830m
Other Equipmentその他設備  To reduce the time and effort of postprandial put away, Equipped with easy-to-use pull-out of the built-in dishwasher dryer. (Same specifications)
食後の片付けの手間を軽減する、使い勝手の良い引き出し式のビルトイン食器洗浄乾燥機を標準装備。 (同仕様)
 Kalki, Reduce the impurities, such as solubility lead. Shower head can be pulled out. (Same specifications)
カルキ、溶解性鉛などの不純物を低減。シャワーヘッドは引き出しが可能。(同仕様)
 Work efficiency is also up in a wide cooking space width. Sink before also widely, Also useful when you carry the cuisine. (Same specifications)
幅の広い調理スペースで作業効率もアップ。シンク前も広く、料理を運ぶ時にも便利。(同仕様)
Local guide map現地案内図  JR Yokohama Line ・ Odakyu line "Machida" station, Odawara Line Odakyu "Sagamiono" 3 Station Available station! It gathered Station life convenience facilities. Also dotted with large and small park in the surrounding local, Spread is living environment city functions and nature valuable to fusion. (Local guide map)
JR横浜線・小田急線「町田」駅、小田急小田原線「相模大野」駅の3駅利用可!駅前は生活利便施設が集結。また現地周辺には大小の公園も点在し、都市機能と自然が融合する価値ある住環境が広がる。(現地案内図)
 Access view
交通アクセス図
Other Equipmentその他設備  To suppress the occurrence of mold in the bathroom, Also useful for drying laundry. Comfortable can pre-heating in the cold season. (Same specifications)
浴室内のカビの発生を抑え、洗濯物の乾燥にも便利。寒い季節にはあらかじめ暖房ができ快適。(同仕様)
 For future, Entrance and first floor in the toilet, Bathtub, Installing a handrail to support the safety life of the stairs, etc.. (Same specifications)
将来に備え、玄関や1階トイレ内、浴槽、階段等には暮らしの安全をサポートする手摺を設置。(同仕様)
Security equipment防犯設備  Press the button of the reader unit, 2 On the action of simply by waving the card or tag, Speedy in a locked ・ Unlock. People and children of the elderly can also be used to smooth. (Same specifications)
リーダー部のボタンを押して、カードまたはタグをかざすだけの2アクションで、スピーディに施錠・解錠。高齢の方やお子様もスムーズに使用できる。(同仕様)
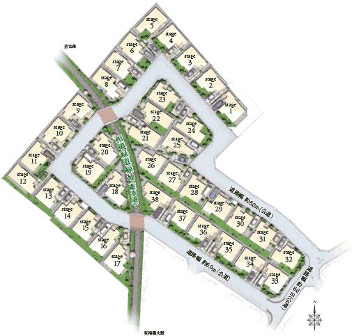
The entire compartment Figure全体区画図  Wide streets SaiHikarisei of course, Consideration to safety. Green road through the town District, Connection with the planting of each compartment, Portray the rich green scenery in the entire city block. (Compartment Rendering)
幅広の街路は彩光性はもちろん、安全性にも配慮。街区を通る緑道は、各区画の植栽ともつながり、街区全体に豊かな緑景を描き出す。(区画完成予想図)
Primary school小学校  Kashimadai until elementary school 310m
鹿島台小学校まで310m
Junior high school中学校  Unomori 880m until junior high school
鵜野森中学校まで880m
Hospital病院  Sagamiono 1350m to the hospital
相模大野病院まで1350m
Shopping centreショッピングセンター  Isetan Co., Ltd. 1170m to Sagamihara store
伊勢丹 相模原店まで1170m
 Sagamiono 1080m to Station Square
相模大野ステーションスクエアまで1080m
Government office役所  1680m to the Government Building Sagamihara Minami-ku
相模原市南区合同庁舎まで1680m
Location
|