New Homes » Kanto » Kanagawa Prefecture » Sagamihara Minami-ku
 
| | Sagamihara City, Kanagawa Prefecture, Minami-ku, 神奈川県相模原市南区 |
| JR Sagami Line "lower groove" walk 20 minutes JR相模線「下溝」歩20分 |
| All 17 buildings, Land 40 square meters or more, Spacious development subdivision of building 31 square meters 全17棟、土地40坪以上、建物31坪の広々した開発分譲地 |
| Car space 2 cars, The latest enhancement equipment specifications [kitchen] Artificial marble sink, Dish dryer, Soft clothing storage, Current plate smart hood exhaust fan [bathroom] Mist shower, 12 inches TV, Warm bath, Drying heating function ventilator etc. カースペース2台分、最新の充実設備仕様 【キッチン】人造大理石シンク、食洗乾燥機、ソフトクロージング収納、整流板スマートフード換気扇 【浴室】ミストシャワー、12インチTV、保温浴槽、乾燥暖房機能換気扇 etc. |
Seller comments 売主コメント | | 16 Building 16号棟 | Features pickup 特徴ピックアップ | | Measures to conserve energy / Corresponding to the flat-35S / Parking two Allowed / 2 along the line more accessible / LDK18 tatami mats or more / Fiscal year Available / System kitchen / Bathroom Dryer / Yang per good / A quiet residential area / Around traffic fewer / Japanese-style room / Mist sauna / Washbasin with shower / Face-to-face kitchen / Security enhancement / Wide balcony / Barrier-free / Toilet 2 places / Bathroom 1 tsubo or more / 2-story / Double-glazing / Warm water washing toilet seat / TV with bathroom / Nantei / Underfloor Storage / The window in the bathroom / TV monitor interphone / Leafy residential area / IH cooking heater / Dish washing dryer / Walk-in closet / Water filter / Attic storage / Development subdivision in 省エネルギー対策 /フラット35Sに対応 /駐車2台可 /2沿線以上利用可 /LDK18畳以上 /年度内入居可 /システムキッチン /浴室乾燥機 /陽当り良好 /閑静な住宅地 /周辺交通量少なめ /和室 /ミストサウナ /シャワー付洗面台 /対面式キッチン /セキュリティ充実 /ワイドバルコニー /バリアフリー /トイレ2ヶ所 /浴室1坪以上 /2階建 /複層ガラス /温水洗浄便座 /TV付浴室 /南庭 /床下収納 /浴室に窓 /TVモニタ付インターホン /緑豊かな住宅地 /IHクッキングヒーター /食器洗乾燥機 /ウォークインクロゼット /浄水器 /屋根裏収納 /開発分譲地内 | Event information イベント情報 | | Local guide Board (please make a reservation beforehand) schedule / Every Saturday, Sunday and public holidays time / 9:30 ~ 17:30 ~ ~ A variety of equipment ・ Standard specification ~ ~ ・ roof Hiroshi tiled ・ outer wall Soft ricin finish + Ikamu original ripple finish ・ Construction Reinforced concrete mat foundation Basic packing method Glulam 3.5 cun angle (continuous columns 4 cun angle) etc ... ・ Aluminum sash All room part pair glass All opening screen door standard First floor of the shutter and the surface lattice standard ・ Ground survey, Ground improvement and construction according to the state ・ Entrance, Fingerprint lock ・ Intercom with color monitor (with recording function) ・ System kitchen Soft close function door Dishwasher All-in-one water purification plug (shower faucet) Floor sliding door storage Current plate with smart food ・ Wide vanity Three-sided mirror (with storage) Single lever shower faucet ・ Unit bus (the next-generation energy-saving standards) Heating function with dryer Mist shower standard Artificial marble of warm bath (high insulation specification) Bathroom 16 inches TV Karratto floor ・ Joinery door, Receipt Interior high door specification ・ Each floor toilet Bidet Warm Rhett ・ Attic storage of effective space about 2 mat ensure ・ lighting equipment Living: Down Light 4 lights (with dimming function) ※ The above standard specifications are subject to change without prior notice. Please note. 現地案内会(事前に必ず予約してください)日程/毎週土日祝時間/9:30 ~ 17:30 ~ ~ 多彩な設備・標準仕様 ~ ~ ・屋根 洋瓦葺き・外壁 ソフトリシン仕上げ+イーカムオリジナルリップル仕上げ・構造 鉄筋コンクリート造りベタ基礎 基礎パッキン工法 集成材3.5寸角(通し柱4寸角)etc…・アルミサッシ 全居室部ペアガラス 全開口部網戸標準 1階部分シャッター及び面格子標準・地盤調査、状態に応じ地盤改良施工・玄関、指紋認証施錠・カラーモニター付インターホン(録画機能付き)・システムキッチン ソフトクローズ機能扉 食洗機 オールインワン浄水栓(シャワー水栓) フロアスライドドア収納 整流板付きスマートフード・ワイド洗面化粧台 三面鏡(収納付き) シングルレバーシャワー水栓・ユニットバス(次世代省エネ基準) 暖房機能付乾燥機 ミストシャワー標準 人造大理石の保温浴槽(高断熱仕様) 浴室16インチテレビ カッラット床・建具 扉、収納 インテリアハイドア仕様・各階トイレ ウォシュレット ウォームレット・有効スペース約2畳確保の小屋裏収納・照明器具 リビング:ダウンライト4灯(調光機能付き)※上記標準仕様は予告なく変更する場合があります。予めご了承ください。 | Property name 物件名 | | Garbo City Sagamihara Minami-ku Isobe 11th ガルボシティー相模原市南区磯部11期 | Price 価格 | | 23.8 million yen ~ 27,800,000 yen 2380万円 ~ 2780万円 | Floor plan 間取り | | 4LDK 4LDK | Units sold 販売戸数 | | 7 units 7戸 | Total units 総戸数 | | 17 units 17戸 | Land area 土地面積 | | 132.3 sq m ~ 151.07 sq m (40.02 tsubo ~ 45.69 tsubo) (measured) 132.3m2 ~ 151.07m2(40.02坪 ~ 45.69坪)(実測) | Building area 建物面積 | | 102.67 sq m ・ 102.68 sq m (31.05 tsubo ・ 31.06 square meters) 102.67m2・102.68m2(31.05坪・31.06坪) | Driveway burden-road 私道負担・道路 | | Road width: 5m, Asphaltic pavement 道路幅:5m、アスファルト舗装 | Completion date 完成時期(築年月) | | Mid-scheduled February 2014 2014年2月中旬予定 | Address 住所 | | Sagamihara City, Kanagawa Prefecture, Minami-ku, Isobe 神奈川県相模原市南区磯部 | Traffic 交通 | | JR Sagami Line "lower groove" walk 20 minutes Odawara Line Odakyu "Sobudaimae" walk 35 minutes JR相模線「下溝」歩20分 小田急小田原線「相武台前」歩35分
| Related links 関連リンク | | [Related Sites of this company] 【この会社の関連サイト】 | Person in charge 担当者より | | [Regarding this property.] All 17 buildings of development subdivision Building 31 square meters, Two whole building car space 【この物件について】全17棟の開発分譲地 建物31坪、全棟カースペース2台 | Contact お問い合せ先 | | TEL: 0800-603-1295 [Toll free] mobile phone ・ Also available from PHS Caller ID is not notified Please contact the "saw SUUMO (Sumo)" If it does not lead, If the real estate company TEL:0800-603-1295【通話料無料】携帯電話・PHSからもご利用いただけます 発信者番号は通知されません 「SUUMO(スーモ)を見た」と問い合わせください つながらない方、不動産会社の方は
| Most price range 最多価格帯 | | 24 million yen ・ 26 million yen ・ 27 million yen (each 2 units) 2400万円台・2600万円台・2700万円台(各2戸) | Building coverage, floor area ratio 建ぺい率・容積率 | | Building coverage: 50%, Volume ratio: 80% 建ぺい率:50%、容積率:80% | Time residents 入居時期 | | Mid-scheduled February 2014 2014年2月中旬予定 | Land of the right form 土地の権利形態 | | Ownership 所有権 | Structure and method of construction 構造・工法 | | Wooden 2-story (framing method) 木造2階建(軸組工法) | Construction 施工 | | Ltd. Ikamu 株式会社イーカム | Use district 用途地域 | | One low-rise 1種低層 | Overview and notices その他概要・特記事項 | | Building confirmation number: the H25 building certification No. KBI02873 建築確認番号:第H25確認建築KBI02873号 | Company profile 会社概要 | | <Seller ・ Some agency> Kanagawa Governor (2) No. 024804 (the company), Kanagawa Prefecture Building Lots and Buildings Transaction Business Association (Corporation) metropolitan area real estate Fair Trade Council member (Ltd.) Ikamu Yubinbango252-0143 Sagamihara City, Kanagawa Prefecture Midori-ku Hashimoto 3-11-8 <売主・一部代理>神奈川県知事(2)第024804号(社)神奈川県宅地建物取引業協会会員 (公社)首都圏不動産公正取引協議会加盟(株)イーカム〒252-0143 神奈川県相模原市緑区橋本3-11-8 |
 Two-story Roof Hiroshi tiled Outer wall soft ricin finish
2階建て 屋根洋瓦葺き 外壁ソフトリシン仕上げ
 All 17 compartments development subdivision of
全17区画の開発分譲地
The entire compartment Figure全体区画図  All 17 compartments development subdivision of
全17区画の開発分譲地
Kitchenキッチン  Same specification kitchen Artificial marble sink, Dish dryer, Soft clothing storage, Panasonic
同仕様キッチン 人造大理石シンク、食洗乾燥機、ソフトクロージング収納、パナソニック
Bathroom浴室  Same specification bathroom Mist shower, 16 inches TV, Warm bath, Drying heating function ventilator, Panasonic
同仕様浴室 ミストシャワー、16インチTV、保温浴槽、乾燥暖房機能換気扇、パナソニック
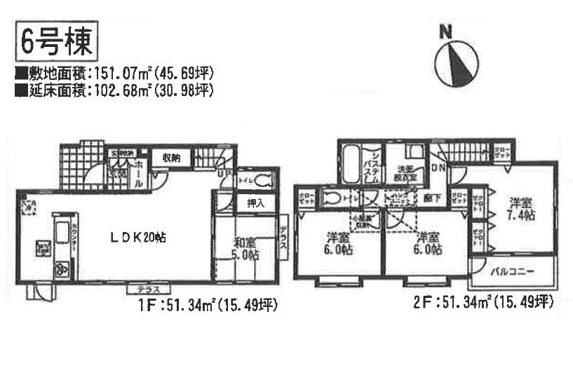
Floor plan間取り図  (6 Building), Price 24,700,000 yen, 4LDK, Land area 151.07 sq m , Building area 102.68 sq m
(6号棟)、価格2470万円、4LDK、土地面積151.07m2、建物面積102.68m2
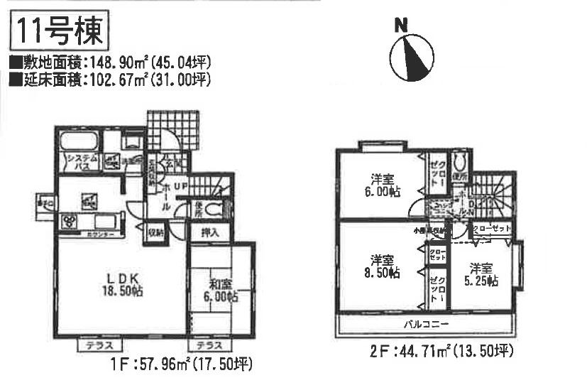
 (11 Building), Price 27,800,000 yen, 4LDK, Land area 148.9 sq m , Building area 102.67 sq m
(11号棟)、価格2780万円、4LDK、土地面積148.9m2、建物面積102.67m2
 (16 Building), Price 26.2 million yen, 4LDK, Land area 133.34 sq m , Building area 102.68 sq m
(16号棟)、価格2620万円、4LDK、土地面積133.34m2、建物面積102.68m2
Non-living roomリビング以外の居室  Same specifications room
同仕様居室
Receipt収納  Ceiling height shoe closet
天井高シューズクロゼット
Floor plan間取り図  (3 Building), Price 23.8 million yen, 4LDK, Land area 138.45 sq m , Building area 102.68 sq m
(3号棟)、価格2380万円、4LDK、土地面積138.45m2、建物面積102.68m2
 (4 Building), Price 26.5 million yen, 4LDK, Land area 132.3 sq m , Building area 102.68 sq m
(4号棟)、価格2650万円、4LDK、土地面積132.3m2、建物面積102.68m2
 (12 Building), Price 24.6 million yen, 4LDK, Land area 148.87 sq m , Building area 102.67 sq m
(12号棟)、価格2460万円、4LDK、土地面積148.87m2、建物面積102.67m2
 (17 Building), Price 27,800,000 yen, 4LDK, Land area 132.31 sq m , Building area 102.67 sq m
(17号棟)、価格2780万円、4LDK、土地面積132.31m2、建物面積102.67m2
Livingリビング  Same specifications living Joinery door interior high door specification
同仕様リビング 建具扉インテリアハイドア仕様
Local photos, including front road前面道路含む現地写真  All 17 compartments development subdivision of
全17区画の開発分譲地
Other Equipmentその他設備  Ikamu Hashimoto showrooms
イーカム橋本ショールーム
Location
|