New Homes » Kanto » Kanagawa Prefecture » Sagamihara Minami-ku
 
| | Sagamihara City, Kanagawa Prefecture, Minami-ku, 神奈川県相模原市南区 |
| JR Yokohama Line "Kobuchi" walk 15 minutes JR横浜線「古淵」歩15分 |
| ion, Ito-Yokado, Shimachu, Nitori Mall and, At a 15-minute walk from fulfilling Kobuchi Station of large-scale commercial facilities, New construction condominium 1 building Spacious LDK20 Pledge イオン、イトーヨーカドー、島忠、ニトリモールと、大型商業施設の充実した古淵駅より徒歩15分にて、新築分譲1棟 広々LDK20帖 |
| The latest enhancement equipment specifications [kitchen] Soft-close storage, Artificial marble sink, Dish dryer, Rectification plate Smart Food [bathroom] Mist sauna, 16 inches TV, Warm bath, Drying heating function ventilator [Joinery] door, Storage Interior high door etc. 最新の充実設備仕様 【キッチン】ソフトクローズ収納、人造大理石シンク、食洗乾燥機、整流板スマートフード 【浴室】ミストサウナ、16インチTV、保温浴槽、乾燥暖房機能換気扇 【建具】扉、収納インテリアハイドア etc. |
Features pickup 特徴ピックアップ | | Corresponding to the flat-35S / LDK20 tatami mats or more / It is close to the city / System kitchen / Bathroom Dryer / All room storage / Flat to the station / A quiet residential area / Mist sauna / Washbasin with shower / Face-to-face kitchen / Security enhancement / Toilet 2 places / Bathroom 1 tsubo or more / 2-story / South balcony / Double-glazing / Warm water washing toilet seat / TV with bathroom / Underfloor Storage / The window in the bathroom / TV monitor interphone / Urban neighborhood / Dish washing dryer / Water filter / Flat terrain / Attic storage フラット35Sに対応 /LDK20畳以上 /市街地が近い /システムキッチン /浴室乾燥機 /全居室収納 /駅まで平坦 /閑静な住宅地 /ミストサウナ /シャワー付洗面台 /対面式キッチン /セキュリティ充実 /トイレ2ヶ所 /浴室1坪以上 /2階建 /南面バルコニー /複層ガラス /温水洗浄便座 /TV付浴室 /床下収納 /浴室に窓 /TVモニタ付インターホン /都市近郊 /食器洗乾燥機 /浄水器 /平坦地 /屋根裏収納 | Event information イベント情報 | | ~ ~ A variety of equipment ・ Standard specification ~ ~ ・ Roof asphalt shingle roofing ・ Outer wall soft ricin finish + Ikamu original ripple finish ・ System kitchen Soft-close storage Dishwasher All-in-one water purification plug (shower faucet) Floor sliding door Current plate with smart food ・ Wide vanity Three-sided mirror (with storage) Single lever shower faucet ・ Unit bus (the next-generation energy-saving standards) Air-in shower Heating function with dryer Mist sauna standard Artificial marble of warm bath (high insulation specification) Bathroom 16 inches TV Karratto floor soft cushion ・ Entrance, Fingerprint lock ・ Intercom with color monitor (with recording function) ・ Joinery door, Receipt Interior high door specification ・ Each floor toilet Bidet Warm Rhett ・ Attic storage of effective space about 2 mat ensure ・ lighting equipment Living: Down Light 4 lights (with dimming function) ・ Aluminum sash All room part pair glass All opening screen door standard First floor of the shutter and the surface lattice standard ・ Ground survey, Ground improvement and construction according to the state ・ Construction Reinforced concrete mat foundation Basic packing method Glulam 3.5 cun angle (continuous columns 4 cun angle) etc ... ※ The above standard specifications are subject to change without prior notice. Please note. ~ ~ 多彩な設備・標準仕様 ~ ~ ・屋根アスファルトシングル葺き・外壁ソフトリシン仕上げ+イーカムオリジナルリップル仕上げ・システムキッチン ソフトクローズ収納 食洗機 オールインワン浄水栓(シャワー水栓) フロアスライドドア 整流板付きスマートフード・ワイド洗面化粧台 三面鏡(収納付き) シングルレバーシャワー水栓・ユニットバス(次世代省エネ基準) エアインシャワー 暖房機能付乾燥機 ミストサウナ標準 人造大理石の保温浴槽(高断熱仕様) 浴室16インチテレビ カッラット床ソフトクッション・玄関、指紋認証施錠・カラーモニター付インターホン(録画機能付き)・建具 扉、収納 インテリアハイドア仕様・各階トイレ ウォシュレット ウォームレット・有効スペース約2畳確保の小屋裏収納・照明器具 リビング:ダウンライト4灯(調光機能付き)・アルミサッシ 全居室部ペアガラス 全開口部網戸標準 1階部分シャッター及び面格子標準・地盤調査、状態に応じ地盤改良施工・構造 鉄筋コンクリート造りベタ基礎 基礎パッキン工法 集成材3.5寸角(通し柱4寸角)etc…※上記標準仕様は予告なく変更する場合があります。予めご了承ください。 | Property name 物件名 | | Garbo City Sagamihara Minami-ku Nishionuma 1-chome second term ガルボシティー相模原市南区西大沼1丁目2期 | Price 価格 | | 33,500,000 yen 3350万円 | Floor plan 間取り | | 5LDK 5LDK | Units sold 販売戸数 | | 1 units 1戸 | Total units 総戸数 | | 1 units 1戸 | Land area 土地面積 | | 138.12 sq m 138.12m2 | Building area 建物面積 | | 107.64 sq m 107.64m2 | Driveway burden-road 私道負担・道路 | | Nothing, Southwest 4m width (contact the road width 2m) 無、南西4m幅(接道幅2m) | Completion date 完成時期(築年月) | | January 2014 2014年1月 | Address 住所 | | Sagamihara City, Kanagawa Prefecture, Minami-ku, Nishionuma 1 神奈川県相模原市南区西大沼1 | Traffic 交通 | | JR Yokohama Line "Kobuchi" walk 15 minutes JR横浜線「古淵」歩15分
| Related links 関連リンク | | [Related Sites of this company] 【この会社の関連サイト】 | Person in charge 担当者より | | [Regarding this property.] Large shopping facility is also the introduction of newly built single-family of state-of-the-art facilities than fulfilling Kobuchi Station. 【この物件について】大型ショッピング施設も充実した古淵駅より最新設備の新築一戸建てのご紹介です。 | Contact お問い合せ先 | | TEL: 0800-603-1295 [Toll free] mobile phone ・ Also available from PHS Caller ID is not notified Please contact the "saw SUUMO (Sumo)" If it does not lead, If the real estate company TEL:0800-603-1295【通話料無料】携帯電話・PHSからもご利用いただけます 発信者番号は通知されません 「SUUMO(スーモ)を見た」と問い合わせください つながらない方、不動産会社の方は
| Building coverage, floor area ratio 建ぺい率・容積率 | | Fifty percent ・ Hundred percent 50%・100% | Time residents 入居時期 | | January 2014 will 2014年1月予定 | Land of the right form 土地の権利形態 | | Ownership 所有権 | Structure and method of construction 構造・工法 | | Wooden 2-story (framing method) 木造2階建(軸組工法) | Construction 施工 | | (Ltd.) Ikamu (株)イーカム | Use district 用途地域 | | One low-rise 1種低層 | Overview and notices その他概要・特記事項 | | Facilities: Public Water Supply, This sewage, Individual LPG, Building confirmation number: the H25 building certification No. KBI03420, Parking: car space 設備:公営水道、本下水、個別LPG、建築確認番号:第H25確認建築KBI03420号、駐車場:カースペース | Company profile 会社概要 | | <Seller> Kanagawa Governor (2) No. 024804 (the company), Kanagawa Prefecture Building Lots and Buildings Transaction Business Association (Corporation) metropolitan area real estate Fair Trade Council member (Ltd.) Ikamu Yubinbango252-0143 Sagamihara City, Kanagawa Prefecture Midori-ku Hashimoto 3-11-8 <売主>神奈川県知事(2)第024804号(社)神奈川県宅地建物取引業協会会員 (公社)首都圏不動産公正取引協議会加盟(株)イーカム〒252-0143 神奈川県相模原市緑区橋本3-11-8 |
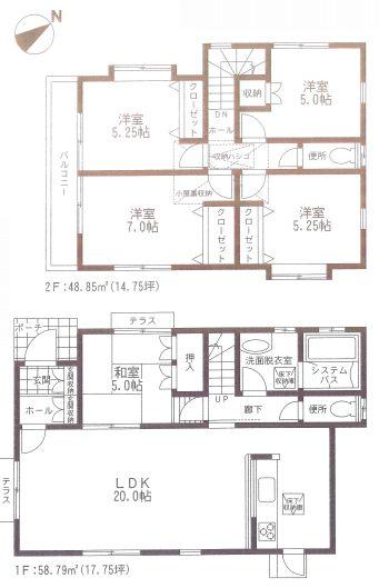
Floor plan間取り図  33,500,000 yen, 5LDK, Land area 138.12 sq m , Building area 107.64 sq m LDK20.0 Pledge Face-to-face kitchen 5LDK
3350万円、5LDK、土地面積138.12m2、建物面積107.64m2 LDK20.0帖 対面キッチン 5LDK
Same specifications photos (appearance)同仕様写真(外観)  Same specifications appearance photo (roof asphalt shingle roofing, Outer wall soft ricin + Ikamu original ripple finish)
同仕様外観写真(屋根アスファルトシングル葺き、外壁ソフトリシン+イーカムオリジナルリップル仕上げ)
Same specifications photo (bathroom)同仕様写真(浴室)  Mist sauna, 16 inches TV, Warm bath, TOTO
ミストサウナ、16インチTV、保温浴槽、TOTO
Same specifications photos (living)同仕様写真(リビング)  Joinery door interior high door specification
建具扉インテリアハイドア仕様
Same specifications photo (kitchen)同仕様写真(キッチン)  Artificial marble sink, Dish dryer, Takara
人造大理石シンク、食洗乾燥機、タカラ
Receipt収納  Ceiling height shoe closet
天井高シューズクロゼット
Supermarketスーパー  700m to Ito-Yokado Kobuchi shop
イトーヨーカドー古淵店まで700m
Same specifications photos (Other introspection)同仕様写真(その他内観)  Room same specifications
居室同仕様
Supermarketスーパー  850m until ion Sagamihara store
イオン相模原店まで850m
Junior high school中学校  700m to Sagamihara Municipal Onodai junior high school
相模原市立大野台中学校まで700m
Primary school小学校  550m to Sagamihara Municipal Onodai Elementary School
相模原市立大野台小学校まで550m
Hospital病院  450m until the medical corporation direct source Board Sagamihara south hospital
医療法人直源会相模原南病院まで450m
Other Equipmentその他設備  Ikamu Showroom
イーカムショールーム
Location
|