New Homes » Kanto » Kanagawa Prefecture » Sagamihara Minami-ku
 
| | Sagamihara City, Kanagawa Prefecture, Minami-ku, 神奈川県相模原市南区 |
| Odakyu line "Sagami" walk 21 minutes 小田急線「相模大野」歩21分 |
Features pickup 特徴ピックアップ | | Parking two Allowed / System kitchen / Bathroom Dryer / Yang per good / All room storage / A quiet residential area / LDK15 tatami mats or more / Japanese-style room / Washbasin with shower / Face-to-face kitchen / Wide balcony / Toilet 2 places / Bathroom 1 tsubo or more / 2-story / South balcony / Double-glazing / Otobasu / Warm water washing toilet seat / Underfloor Storage / The window in the bathroom / TV monitor interphone / Southwestward / Dish washing dryer / All room 6 tatami mats or more / Water filter / All rooms are two-sided lighting 駐車2台可 /システムキッチン /浴室乾燥機 /陽当り良好 /全居室収納 /閑静な住宅地 /LDK15畳以上 /和室 /シャワー付洗面台 /対面式キッチン /ワイドバルコニー /トイレ2ヶ所 /浴室1坪以上 /2階建 /南面バルコニー /複層ガラス /オートバス /温水洗浄便座 /床下収納 /浴室に窓 /TVモニタ付インターホン /南西向き /食器洗乾燥機 /全居室6畳以上 /浄水器 /全室2面採光 | Price 価格 | | 26,800,000 yen ~ 27,800,000 yen 2680万円 ~ 2780万円 | Floor plan 間取り | | 4LDK 4LDK | Units sold 販売戸数 | | 3 units 3戸 | Total units 総戸数 | | 3 units 3戸 | Land area 土地面積 | | 104.49 sq m ~ 114.44 sq m (measured) 104.49m2 ~ 114.44m2(実測) | Building area 建物面積 | | 97.71 sq m ~ 99.78 sq m (measured) 97.71m2 ~ 99.78m2(実測) | Driveway burden-road 私道負担・道路 | | Road width: 4.0m 道路幅:4.0m | Completion date 完成時期(築年月) | | 2013 late October 2013年10月下旬 | Address 住所 | | Sagamihara City, Kanagawa Prefecture, Minami-ku, Kamitsuruma 2 神奈川県相模原市南区上鶴間2 | Traffic 交通 | | Odakyu line "Sagami" walk 21 minutes Enoshima Odakyu "Higashirinkan" walk 13 minutes Denentoshi Tokyu "Chuorinkan" walk 29 minutes 小田急線「相模大野」歩21分 小田急江ノ島線「東林間」歩13分 東急田園都市線「中央林間」歩29分
| Related links 関連リンク | | [Related Sites of this company] 【この会社の関連サイト】 | Contact お問い合せ先 | | TEL: 0120-788213 [Toll free] Please contact the "saw SUUMO (Sumo)" TEL:0120-788213【通話料無料】「SUUMO(スーモ)を見た」と問い合わせください | Building coverage, floor area ratio 建ぺい率・容積率 | | Kenpei rate: 50%, Volume ratio: 100% 建ペい率:50%、容積率:100% | Time residents 入居時期 | | Consultation 相談 | Land of the right form 土地の権利形態 | | Ownership 所有権 | Structure and method of construction 構造・工法 | | Wooden 2-story 木造2階建 | Use district 用途地域 | | One low-rise 1種低層 | Land category 地目 | | field 畑 | Overview and notices その他概要・特記事項 | | Building confirmation number: first H25SBC- sure 01486H No. 建築確認番号:第H25SBC-確01486H号 | Company profile 会社概要 | | <Mediation> Governor of Tokyo (2) No. 085410 (Corporation) All Japan Real Estate Association (Corporation) metropolitan area real estate Fair Trade Council member (Ltd.) Archetype ・ Design Yubinbango194-0011 Machida, Tokyo Narusegaoka 2-1-3 <仲介>東京都知事(2)第085410号(公社)全日本不動産協会会員 (公社)首都圏不動産公正取引協議会加盟(株)アーキ・デザイン〒194-0011 東京都町田市成瀬が丘2-1-3 |
Same specifications photos (appearance)同仕様写真(外観)  Same specifications
同仕様
Same specifications photo (kitchen)同仕様写真(キッチン)  Same specifications
同仕様
Same specifications photos (living)同仕様写真(リビング)  Same specifications
同仕様
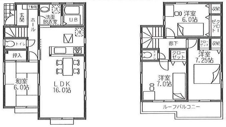
Floor plan間取り図  Price 26,800,000 yen, 4LDK, Land area 111.98 sq m , Building area 99.78 sq m
価格2680万円、4LDK、土地面積111.98m2、建物面積99.78m2
Same specifications photo (bathroom)同仕様写真(浴室)  Same specifications
同仕様
Same specifications photos (Other introspection)同仕様写真(その他内観)  Same specifications
同仕様
Location
|