New Homes » Kanto » Kanagawa Prefecture » Sagamihara Minami-ku
 
| | Sagamihara City, Kanagawa Prefecture, Minami-ku, 神奈川県相模原市南区 |
| Odawara Line Odakyu "Odakyusagamihara" walk 13 minutes 小田急小田原線「小田急相模原」歩13分 |
| Counter Kitchen Bathroom heating dryer Walk-in closet Underfloor Storage Flat 35 corresponding カウンターキッチン 浴室暖房乾燥機 ウォークインクローゼット 床下収納 フラット35対応 |
| Car space two Allowed City gas Counter Kitchen Zenshitsuminami direction Sunny カースペース2台可 都市ガス カウンターキッチン 全室南向き 日当たり良好 |
Features pickup 特徴ピックアップ | | Parking two Allowed / System kitchen / Bathroom Dryer / All room storage / Japanese-style room / Washbasin with shower / Face-to-face kitchen / Barrier-free / Toilet 2 places / 2-story / Warm water washing toilet seat / Underfloor Storage / TV monitor interphone / Dish washing dryer / Walk-in closet / City gas 駐車2台可 /システムキッチン /浴室乾燥機 /全居室収納 /和室 /シャワー付洗面台 /対面式キッチン /バリアフリー /トイレ2ヶ所 /2階建 /温水洗浄便座 /床下収納 /TVモニタ付インターホン /食器洗乾燥機 /ウォークインクロゼット /都市ガス | Price 価格 | | 33,800,000 yen 3380万円 | Floor plan 間取り | | 4LDK 4LDK | Units sold 販売戸数 | | 1 units 1戸 | Total units 総戸数 | | 2 units 2戸 | Land area 土地面積 | | 102.08 sq m (registration) 102.08m2(登記) | Building area 建物面積 | | 90.72 sq m (registration) 90.72m2(登記) | Driveway burden-road 私道負担・道路 | | Nothing, East 4.5m width 無、東4.5m幅 | Completion date 完成時期(築年月) | | November 2013 2013年11月 | Address 住所 | | Sagamihara City, Kanagawa Prefecture, Minami-ku, Minamidai 1 神奈川県相模原市南区南台1 | Traffic 交通 | | Odawara Line Odakyu "Odakyusagamihara" walk 13 minutes 小田急小田原線「小田急相模原」歩13分
| Contact お問い合せ先 | | TEL: 0800-603-6742 [Toll free] mobile phone ・ Also available from PHS Caller ID is not notified Please contact the "saw SUUMO (Sumo)" If it does not lead, If the real estate company TEL:0800-603-6742【通話料無料】携帯電話・PHSからもご利用いただけます 発信者番号は通知されません 「SUUMO(スーモ)を見た」と問い合わせください つながらない方、不動産会社の方は
| Building coverage, floor area ratio 建ぺい率・容積率 | | 60% ・ 180% 60%・180% | Time residents 入居時期 | | Consultation 相談 | Land of the right form 土地の権利形態 | | Ownership 所有権 | Structure and method of construction 構造・工法 | | Wooden 2-story 木造2階建 | Use district 用途地域 | | One middle and high 1種中高 | Overview and notices その他概要・特記事項 | | Facilities: Public Water Supply, This sewage, City gas, Building confirmation number: 01880, Parking: car space 設備:公営水道、本下水、都市ガス、建築確認番号:01880、駐車場:カースペース | Company profile 会社概要 | | <Mediation> Governor of Tokyo (2) No. 085180 (Ltd.) Principal Home Yubinbango194-0036 Machida, Tokyo Kiso east 2-3-22 Court ・ Pal 2F <仲介>東京都知事(2)第085180号(株)プリンシパルホーム〒194-0036 東京都町田市木曽東2-3-22コート・パル2F |
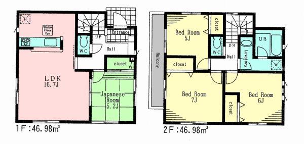
Floor plan間取り図  33,800,000 yen, 4LDK, Land area 102.08 sq m , Building area 90.72 sq m
3380万円、4LDK、土地面積102.08m2、建物面積90.72m2
Local appearance photo現地外観写真  Local (12 May 2013) Shooting
現地(2013年12月)撮影
 Local (12 May 2013) Shooting
現地(2013年12月)撮影
Livingリビング  Indoor (12 May 2016) Shooting
室内(2016年12月)撮影
Kitchenキッチン  Indoor (12 May 2016) Shooting
室内(2016年12月)撮影
Other introspectionその他内観  Indoor (12 May 2016) Shooting
室内(2016年12月)撮影
Non-living roomリビング以外の居室  Indoor (12 May 2016) Shooting
室内(2016年12月)撮影
Bathroom浴室  Indoor (12 May 2016) Shooting
室内(2016年12月)撮影
Wash basin, toilet洗面台・洗面所  Indoor (12 May 2016) Shooting
室内(2016年12月)撮影
Non-living roomリビング以外の居室  Indoor (12 May 2016) Shooting
室内(2016年12月)撮影
Receipt収納  Indoor (12 May 2016) Shooting
室内(2016年12月)撮影
Other Equipmentその他設備  Intercom with color monitor
カラーモニター付インターフォン
Location
|