New Homes » Kanto » Kanagawa Prefecture » Sagamihara Minami-ku
 
| | Sagamihara City, Kanagawa Prefecture, Minami-ku, 神奈川県相模原市南区 |
| JR Yokohama Line "Kobuchi" walk 22 minutes JR横浜線「古淵」歩22分 |
| ・ Sunny, A quiet residential area ・ Site 100 square meters more than spacious 4LDK. Car space 2 units can be. ・ LDK face-to-face kitchen. All rooms with storage, Equipment of enhancement with a bathroom ventilation heating dryer ・日当たり良好、閑静な住宅街・敷地100平米超のひろびろ4LDK。カースペース2台可能です。・対面キッチンのLDK。全室収納付、浴室換気暖房乾燥機付の充実の設備 |
| Counter kitchen bouncing of conversation with family. All rooms accommodating, You can use the clean widely living space. Parking space There is also a 2 car, It is also useful at the time of the second car and visitors. 家族との会話のはずむカウンターキッチン。全室収納付きで、スッキリ広く住空間をご使用できます。駐車スペースも2台分あり、セカンドカーや来客の時にも便利です。 |
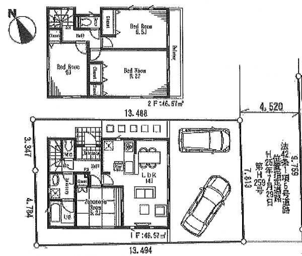
Features pickup 特徴ピックアップ | | Corresponding to the flat-35S / Parking two Allowed / Bathroom Dryer / All room storage / Shaping land / Washbasin with shower / Face-to-face kitchen / Toilet 2 places / TV monitor interphone / Water filter フラット35Sに対応 /駐車2台可 /浴室乾燥機 /全居室収納 /整形地 /シャワー付洗面台 /対面式キッチン /トイレ2ヶ所 /TVモニタ付インターホン /浄水器 | Price 価格 | | 31,800,000 yen 3180万円 | Floor plan 間取り | | 4LDK 4LDK | Units sold 販売戸数 | | 1 units 1戸 | Total units 総戸数 | | 2 units 2戸 | Land area 土地面積 | | 107.5 sq m (measured) 107.5m2(実測) | Building area 建物面積 | | 93.14 sq m (measured) 93.14m2(実測) | Driveway burden-road 私道負担・道路 | | Nothing, Southeast 4.5m width 無、南東4.5m幅 | Completion date 完成時期(築年月) | | December 2013 2013年12月 | Address 住所 | | Sagamihara City, Kanagawa Prefecture, Minami-ku, Onodai 4 神奈川県相模原市南区大野台4 | Traffic 交通 | | JR Yokohama Line "Kobuchi" walk 22 minutes JR横浜線「古淵」歩22分
| Related links 関連リンク | | [Related Sites of this company] 【この会社の関連サイト】 | Person in charge 担当者より | | Person in charge of real-estate and building Hideaki Suzuki industry experience: you through a 12-year community-based. Consultation of Jugae, New purchase, We are doing and will be looking for cordial. Please leave whatever Sagamihara things. 担当者宅建鈴木秀章業界経験:12年地域密着で貫いています。住替えのご相談、新規のご購入、誠心誠意尽くしてお探しいたします。相模原のことなら何でもお任せ下さい。 | Contact お問い合せ先 | | TEL: 0800-603-2572 [Toll free] mobile phone ・ Also available from PHS Caller ID is not notified Please contact the "saw SUUMO (Sumo)" If it does not lead, If the real estate company TEL:0800-603-2572【通話料無料】携帯電話・PHSからもご利用いただけます 発信者番号は通知されません 「SUUMO(スーモ)を見た」と問い合わせください つながらない方、不動産会社の方は
| Building coverage, floor area ratio 建ぺい率・容積率 | | Fifty percent ・ Hundred percent 50%・100% | Time residents 入居時期 | | Consultation 相談 | Land of the right form 土地の権利形態 | | Ownership 所有権 | Structure and method of construction 構造・工法 | | Wooden 2-story 木造2階建 | Use district 用途地域 | | One low-rise 1種低層 | Overview and notices その他概要・特記事項 | | Contact: Hideaki Suzuki, Facilities: Public Water Supply, This sewage, Building confirmation number: 01815, Parking: car space 担当者:鈴木秀章、設備:公営水道、本下水、建築確認番号:01815、駐車場:カースペース | Company profile 会社概要 | | <Mediation> Governor of Kanagawa Prefecture (5) Article 021528 No. Seiken Home Co., Ltd. Kobuchi shop Yubinbango252-0331 Sagamihara City, Kanagawa Prefecture, Minami-ku, Onodai 2-6-15 <仲介>神奈川県知事(5)第021528号セイケンホーム(株)古淵店〒252-0331 神奈川県相模原市南区大野台2-6-15 |
 Local appearance photo
現地外観写真
 Local photos, including front road
前面道路含む現地写真
Floor plan間取り図  31,800,000 yen, 4LDK, Land area 107.5 sq m , Building area 93.14 sq m
3180万円、4LDK、土地面積107.5m2、建物面積93.14m2
Primary school小学校  Elementary school to 590m Onodai Central Elementary School
小学校まで590m 大野台中央小学校
Junior high school中学校  470m Onodai until junior high school center junior high school
中学校まで470m 大野台中央中学校
Other Environmental Photoその他環境写真  600m to other Environmental Photo Onodai Children's Center
その他環境写真まで600m 大野台子どもセンター
Supermarketスーパー  Super up to 1200m food one Onodai shop
スーパーまで1200m フードワン大野台店
Convenience storeコンビニ  750m to a convenience store Family Mart
コンビニまで750m ファミリーマート
Shopping centreショッピングセンター  1100m Shopping center Don Quixote
ショッピングセンターまで1100m ドンキホーテ
 Shopping center 1300m ion Sagamihara store
ショッピングセンターまで1300m イオン相模原店
 Shopping center 1300m Ito-Yokado Kobuchi shop
ショッピングセンターまで1300m イトーヨーカドー古淵店
Streets around周辺の街並み  Forest 350m Komorebi to the periphery of the city skyline
周辺の街並みまで350m こもれびの森
Location
|