New Homes » Kanto » Kanagawa Prefecture » Sagamihara Minami-ku
 
| | Sagamihara City, Kanagawa Prefecture, Minami-ku, 神奈川県相模原市南区 |
| Odakyu line "Sagami" bus 13 minutes Kitasato East Hospital walk 2 minutes 小田急線「相模大野」バス13分北里東病院歩2分 |
| Access to Sagamiono good ☆ Hospital near ☆ Spacious 3LDK ☆ 相模大野へのアクセス良好☆病院近く☆広々3LDK☆ |
| Simple modern housing ☆ There car space ☆ LDK16 Pledge ☆ シンプルモダン住宅☆カースペース有り☆LDK16帖☆ |
Features pickup 特徴ピックアップ | | Year Available / System kitchen / Bathroom Dryer / Yang per good / All room storage / LDK15 tatami mats or more / Japanese-style room / Shaping land / Face-to-face kitchen / 2-story / Double-glazing / Warm water washing toilet seat / Underfloor Storage / The window in the bathroom / TV monitor interphone / Ventilation good / Dish washing dryer / Water filter 年内入居可 /システムキッチン /浴室乾燥機 /陽当り良好 /全居室収納 /LDK15畳以上 /和室 /整形地 /対面式キッチン /2階建 /複層ガラス /温水洗浄便座 /床下収納 /浴室に窓 /TVモニタ付インターホン /通風良好 /食器洗乾燥機 /浄水器 | Price 価格 | | 26,800,000 yen 2680万円 | Floor plan 間取り | | 3LDK 3LDK | Units sold 販売戸数 | | 1 units 1戸 | Total units 総戸数 | | 1 units 1戸 | Land area 土地面積 | | 72.01 sq m (registration) 72.01m2(登記) | Building area 建物面積 | | 71.98 sq m (registration) 71.98m2(登記) | Driveway burden-road 私道負担・道路 | | Nothing 無 | Completion date 完成時期(築年月) | | November 2013 2013年11月 | Address 住所 | | Sagamihara City, Kanagawa Prefecture, Minami-ku, Kitasato 2 神奈川県相模原市南区北里2 | Traffic 交通 | | Odakyu line "Sagami" bus 13 minutes Kitasato East Hospital walk 2 minutes 小田急線「相模大野」バス13分北里東病院歩2分
| Contact お問い合せ先 | | TEL: 0800-603-6742 [Toll free] mobile phone ・ Also available from PHS Caller ID is not notified Please contact the "saw SUUMO (Sumo)" If it does not lead, If the real estate company TEL:0800-603-6742【通話料無料】携帯電話・PHSからもご利用いただけます 発信者番号は通知されません 「SUUMO(スーモ)を見た」と問い合わせください つながらない方、不動産会社の方は
| Building coverage, floor area ratio 建ぺい率・容積率 | | Fifty percent ・ Hundred percent 50%・100% | Time residents 入居時期 | | Consultation 相談 | Land of the right form 土地の権利形態 | | Ownership 所有権 | Structure and method of construction 構造・工法 | | Wooden 2-story 木造2階建 | Use district 用途地域 | | One low-rise 1種低層 | Overview and notices その他概要・特記事項 | | Facilities: Public Water Supply, This sewage, Building confirmation number: KB103362, Parking: car space 設備:公営水道、本下水、建築確認番号:KB103362、駐車場:カースペース | Company profile 会社概要 | | <Mediation> Governor of Tokyo (2) No. 085180 (Ltd.) Principal Home Yubinbango194-0036 Machida, Tokyo Kiso east 2-3-22 Court ・ Pal 2F <仲介>東京都知事(2)第085180号(株)プリンシパルホーム〒194-0036 東京都町田市木曽東2-3-22コート・パル2F |
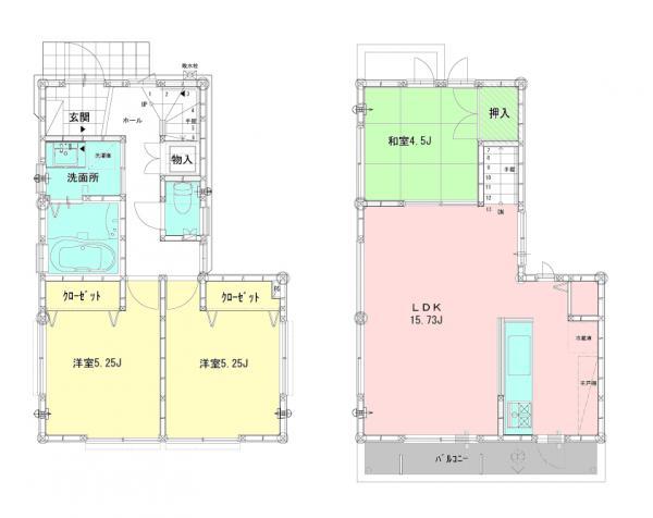
Floor plan間取り図  26,800,000 yen, 3LDK, Land area 72.01 sq m , Building area 71.98 sq m
2680万円、3LDK、土地面積72.01m2、建物面積71.98m2
Local appearance photo現地外観写真  Local (11 May 2013) Shooting
現地(2013年11月)撮影
Livingリビング  Local (11 May 2013) Shooting
現地(2013年11月)撮影
 Local (11 May 2013) Shooting
現地(2013年11月)撮影
Bathroom浴室  Local (11 May 2013) Shooting
現地(2013年11月)撮影
Kitchenキッチン  Local (11 May 2013) Shooting
現地(2013年11月)撮影
Wash basin, toilet洗面台・洗面所  Three sides with mirrors Storage is full slide
三面鏡付 収納庫はフルスライド
Livingリビング  A bright and airy LDK
明るく開放感のあるLDK
Local photos, including front road前面道路含む現地写真  Appearance is simple modern tone
外観はシンプルモダン調で
Location
|