|
|
Sagamihara City, Kanagawa Prefecture, Minami-ku,
神奈川県相模原市南区
|
|
JR Yokohama Line "Fuchinobe" walk 23 minutes
JR横浜線「淵野辺」歩23分
|
|
[Present] now, To customers all contact, Popular soft fluffy HAPPY WAON pillow gift! !
【プレゼント】今なら、お問い合わせいただいたお客さま全員に、人気のふんわりやわらかHAPPY WAON抱き枕プレゼント!!
|
|
■ Flat 35S corresponding ■ Per southeast road, Good per sun ■ A quiet residential area ■ A variety of equipment such as the popularity of face-to-face kitchen
■フラット35S対応 ■南東道路につき、陽当たり良好 ■閑静な住宅街 ■人気の対面式キッチンなど多彩な設備
|
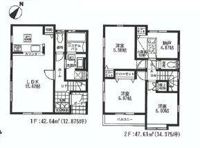
Features pickup 特徴ピックアップ | | Corresponding to the flat-35S / System kitchen / Bathroom Dryer / All room storage / LDK15 tatami mats or more / Corner lot / Washbasin with shower / Face-to-face kitchen / 2-story / Double-glazing / Warm water washing toilet seat / TV with bathroom / Underfloor Storage / The window in the bathroom / TV monitor interphone / Dish washing dryer / Water filter / Storeroom フラット35Sに対応 /システムキッチン /浴室乾燥機 /全居室収納 /LDK15畳以上 /角地 /シャワー付洗面台 /対面式キッチン /2階建 /複層ガラス /温水洗浄便座 /TV付浴室 /床下収納 /浴室に窓 /TVモニタ付インターホン /食器洗乾燥機 /浄水器 /納戸 |
Price 価格 | | 31,800,000 yen 3180万円 |
Floor plan 間取り | | 3LDK + S (storeroom) 3LDK+S(納戸) |
Units sold 販売戸数 | | 1 units 1戸 |
Land area 土地面積 | | 74.1 sq m 74.1m2 |
Building area 建物面積 | | 90.25 sq m 90.25m2 |
Driveway burden-road 私道負担・道路 | | Nothing, Southeast 4m width, Southwest 4m width 無、南東4m幅、南西4m幅 |
Completion date 完成時期(築年月) | | May 2014 2014年5月 |
Address 住所 | | Sagamihara City, Kanagawa Prefecture, Minami-ku, Onodai 1 神奈川県相模原市南区大野台1 |
Traffic 交通 | | JR Yokohama Line "Fuchinobe" walk 23 minutes JR Yokohama Line "Kobuchi" walk 22 minutes JR Yokohama Line "Yabe" walk 29 minutes JR横浜線「淵野辺」歩23分 JR横浜線「古淵」歩22分 JR横浜線「矢部」歩29分
|
Related links 関連リンク | | [Related Sites of this company] 【この会社の関連サイト】 |
Contact お問い合せ先 | | TEL: 0800-805-3596 [Toll free] mobile phone ・ Also available from PHS Caller ID is not notified Please contact the "saw SUUMO (Sumo)" If it does not lead, If the real estate company TEL:0800-805-3596【通話料無料】携帯電話・PHSからもご利用いただけます 発信者番号は通知されません 「SUUMO(スーモ)を見た」と問い合わせください つながらない方、不動産会社の方は
|
Building coverage, floor area ratio 建ぺい率・容積率 | | 60% ・ 200% 60%・200% |
Time residents 入居時期 | | June 2014 schedule 2014年6月予定 |
Land of the right form 土地の権利形態 | | Ownership 所有権 |
Structure and method of construction 構造・工法 | | Wooden 2-story 木造2階建 |
Use district 用途地域 | | Two mid-high 2種中高 |
Other limitations その他制限事項 | | Set-back: already セットバック:済 |
Overview and notices その他概要・特記事項 | | Facilities: Public Water Supply, This sewage, City gas, Building confirmation number: the H25 building certification No. KBI05875, Parking: car space 設備:公営水道、本下水、都市ガス、建築確認番号:第H25確認建築KBI05875号、駐車場:カースペース |
Company profile 会社概要 | | <Mediation> Minister of Land, Infrastructure and Transport (1) the first 008,536 No. ion housing (Ltd.) Four Members Yubinbango104-0033, Chuo-ku, Tokyo Shinkawa 1-24-12 <仲介>国土交通大臣(1)第008536号イオンハウジング(株)フォーメンバーズ〒104-0033 東京都中央区新川1-24-12 |