New Homes » Kanto » Kanagawa Prefecture » Sagamihara Minami-ku
 
| | Sagamihara City, Kanagawa Prefecture, Minami-ku, 神奈川県相模原市南区 |
| Odakyu line "Sagami" walk 19 minutes 小田急線「相模大野」歩19分 |
| A house with a blow of a quiet residential area. Your family spacious living of everyone is comfortable and welcoming 17 quires more than. Clean living space in each room with storage. 閑静な住宅地の吹抜けのある家。ご家族みんながゆったりくつろげる17帖超のひろびろリビング。各居室収納付ですっきり住空間。 |
| Living in the blow-specification, Bright space. Face-to-face kitchen that can housework while looking at the face of the family, Also size 17 tatami than, LDK also increases likely relaxation time of family reunion. Supermarkets and convenience stores are also useful in the vicinity every day of shopping. Elementary school a 7-minute walk to attend small children also reasonably. リビングは吹抜け仕様で、明るい空間。家族の顔をみながら家事のできる対面キッチン、広さも17帖超で、家族団らんの時間も増えそうなくつろぎのLDK。スーパーやコンビニも近く毎日のお買い物に便利です。小さなお子様も無理なく通える徒歩7分の小学校。 |
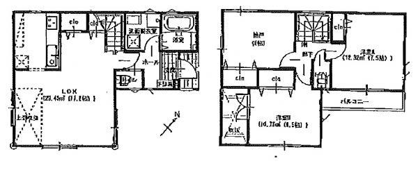
Features pickup 特徴ピックアップ | | Bathroom Dryer / All room storage / LDK15 tatami mats or more / Shaping land / Washbasin with shower / Face-to-face kitchen / City gas / All rooms are two-sided lighting 浴室乾燥機 /全居室収納 /LDK15畳以上 /整形地 /シャワー付洗面台 /対面式キッチン /都市ガス /全室2面採光 | Price 価格 | | 32.7 million yen 3270万円 | Floor plan 間取り | | 3LDK 3LDK | Units sold 販売戸数 | | 1 units 1戸 | Total units 総戸数 | | 2 units 2戸 | Land area 土地面積 | | 83.2 sq m (measured) 83.2m2(実測) | Building area 建物面積 | | 88.19 sq m (measured) 88.19m2(実測) | Driveway burden-road 私道負担・道路 | | Nothing, Northeast 4m width (contact the road width 7.6m) 無、北東4m幅(接道幅7.6m) | Completion date 完成時期(築年月) | | November 2013 2013年11月 | Address 住所 | | Sagamihara City, Kanagawa Prefecture, Minami-ku, Misono 2 神奈川県相模原市南区御園2 | Traffic 交通 | | Odakyu line "Sagami" walk 19 minutes 小田急線「相模大野」歩19分
| Related links 関連リンク | | [Related Sites of this company] 【この会社の関連サイト】 | Person in charge 担当者より | | Person in charge of real-estate and building Ryoji Yoneoka industry experience: is accurate advice based on 23 years of experience I think that if you can. It is also abundant information other than the real estate for the local native. 担当者宅建米岡亮二業界経験:23年経験に基づいた的確なアドバイスができればと思っています。地元出身のため不動産以外の情報も豊富です。 | Contact お問い合せ先 | | TEL: 0800-603-2572 [Toll free] mobile phone ・ Also available from PHS Caller ID is not notified Please contact the "saw SUUMO (Sumo)" If it does not lead, If the real estate company TEL:0800-603-2572【通話料無料】携帯電話・PHSからもご利用いただけます 発信者番号は通知されません 「SUUMO(スーモ)を見た」と問い合わせください つながらない方、不動産会社の方は
| Building coverage, floor area ratio 建ぺい率・容積率 | | 60% ・ 200% 60%・200% | Time residents 入居時期 | | Consultation 相談 | Land of the right form 土地の権利形態 | | Ownership 所有権 | Structure and method of construction 構造・工法 | | Wooden 2-story 木造2階建 | Use district 用途地域 | | One middle and high 1種中高 | Other limitations その他制限事項 | | Quasi-fire zones 準防火地域 | Overview and notices その他概要・特記事項 | | Contact: Ryoji Yoneoka, Facilities: Public Water Supply, This sewage, City gas, Building confirmation number: h25KBI03757, Parking: car space 担当者:米岡亮二、設備:公営水道、本下水、都市ガス、建築確認番号:h25KBI03757、駐車場:カースペース | Company profile 会社概要 | | <Mediation> Governor of Kanagawa Prefecture (5) Article 021528 No. Seiken Home Co., Ltd. Kobuchi shop Yubinbango252-0331 Sagamihara City, Kanagawa Prefecture, Minami-ku, Onodai 2-6-15 <仲介>神奈川県知事(5)第021528号セイケンホーム(株)古淵店〒252-0331 神奈川県相模原市南区大野台2-6-15 |
 Local photos, including front road
前面道路含む現地写真
 Local appearance photo
現地外観写真
Floor plan間取り図  32.7 million yen, 3LDK, Land area 83.2 sq m , Building area 88.19 sq m
3270万円、3LDK、土地面積83.2m2、建物面積88.19m2
 Local appearance photo
現地外観写真
 Living
リビング
 Kitchen
キッチン
 Non-living room
リビング以外の居室
Primary school小学校  It is unusual elementary school such brass band exists in the 550m elementary school to Taniguchi stand elementary school (city in three schools only). It won the gold medal in the recent years contest, There is also a track record that became a county representative. There seems to be an image of the "Taniguchi stand Small = Wind" is among the local residents.
谷口台小学校まで550m 小学校においてこのような吹奏楽団が存在することは珍しい小学校(市内で3校のみ)。 近年コンクールで金賞を受賞し、県代表となった実績もある。地域住民の間では「谷口台小=吹奏楽」のイメージがあるようだ。
Compartment figure区画図  32.7 million yen, 3LDK, Land area 83.2 sq m , Building area 88.19 sq m
3270万円、3LDK、土地面積83.2m2、建物面積88.19m2
 Living
リビング
 Non-living room
リビング以外の居室
Junior high school中学校  Asamizodai 1300m until junior high school
麻溝台中学校まで1300m
 Living
リビング
Supermarketスーパー  Super open until life Sagamihara Wakamatsu shop from 650m 9 am until 24. And align the local vegetables sales and food allergy conscious goods
ライフ相模原若松店まで650m 9時半から24時まで営業のスーパー。地場野菜の販売や食物アレルギー配慮した品を揃えている
 Super sales from at 800m 10 to super Sanwa Toyomachi shop until 21 pm. Focusing on fresh food processed food and such as part of the grocery, We offer the necessary to life goods
スーパー三和豊町店まで800m 10時から21時まで営業のスーパー。生鮮食品を中心に加工食品や一部の日用雑貨など、生活に必要な品を取り揃えてい
Drug storeドラッグストア  700m drugstore to create SD
クリエイトSDまで700m ドラッグストア
Supermarketスーパー  Super 750m 24-hour until the Edo and. Useful assortment to shopping every day from fresh food to prepared foods
江戸やまで750m 24時間営業のスーパー。生鮮食品から惣菜まで毎日のお買いものに便利な品ぞろえ
Location
|