New Homes » Kanto » Kanagawa Prefecture » Sagamihara Minami-ku
 
| | Sagamihara City, Kanagawa Prefecture, Minami-ku, 神奈川県相模原市南区 |
| JR Sagami Line "Sobudaishita" walk 13 minutes JR相模線「相武台下」歩13分 |
| 2 wayside Available ・ Parking two Allowed ・ All the living room facing south 2沿線利用可・駐車2台可・全居室南向き |
| It is also a good per sun on a land area 50 square meters have all Shitsuminami direction. Spacious with a roof balcony. New Iso elementary school 210m Eich junior high school 1500m Isobe clinic 750m Sanga children Garden 750m Corresponding to Takaraya Isobe shop 950m flat 35S, Parking two Allowed, 2 along the line more accessible, Land 50 square meters or more, See the mountain, Super close, Facing south, System kitchen, Bathroom Dryer, Yang per good, All room storage, A quiet residential area, LDK15 tatami mats or more, Around traffic fewerese-style room, Washbasin with shower, Face-to-face kitchen, Toilet 2 places, Bathroom 1 tsubo or more, 2-story, Double-glazing, Zenshitsuminami direction, Warm water washing toilet seat, The window in the bathroom, TV monitor interphone, Ventilation good, All room 6 tatami mats or more, roof balcony, Floor heating 敷地面積50坪あり全室南向きで陽当たりも良好です。広々ルーフバルコニー付。新磯小学校 210m 相陽中学校 1500m 磯部クリニック 750m サンガこども園750m たからや磯部店950m フラット35Sに対応、駐車2台可、2沿線以上利用可、土地50坪以上、山が見える、スーパーが近い、南向き、システムキッチン、浴室乾燥機、陽当り良好、全居室収納、閑静な住宅地、LDK15畳以上、周辺交通量少なめ、和室、シャワー付洗面台、対面式キッチン、トイレ2ヶ所、浴室1坪以上、2階建、複層ガラス、全室南向き、温水洗浄便座、浴室に窓、TVモニタ付インターホン、通風良好、全居室6畳以上、ルーフバルコニー、床暖房 |
Features pickup 特徴ピックアップ | | Corresponding to the flat-35S / Parking two Allowed / 2 along the line more accessible / Land 50 square meters or more / See the mountain / Super close / Facing south / System kitchen / Bathroom Dryer / Yang per good / All room storage / A quiet residential area / LDK15 tatami mats or more / Around traffic fewer / Japanese-style room / Washbasin with shower / Face-to-face kitchen / Toilet 2 places / Bathroom 1 tsubo or more / 2-story / Double-glazing / Zenshitsuminami direction / Warm water washing toilet seat / The window in the bathroom / TV monitor interphone / Ventilation good / All room 6 tatami mats or more / roof balcony / Floor heating フラット35Sに対応 /駐車2台可 /2沿線以上利用可 /土地50坪以上 /山が見える /スーパーが近い /南向き /システムキッチン /浴室乾燥機 /陽当り良好 /全居室収納 /閑静な住宅地 /LDK15畳以上 /周辺交通量少なめ /和室 /シャワー付洗面台 /対面式キッチン /トイレ2ヶ所 /浴室1坪以上 /2階建 /複層ガラス /全室南向き /温水洗浄便座 /浴室に窓 /TVモニタ付インターホン /通風良好 /全居室6畳以上 /ルーフバルコニー /床暖房 | Price 価格 | | 29,800,000 yen 2980万円 | Floor plan 間取り | | 4LDK 4LDK | Units sold 販売戸数 | | 2 units 2戸 | Land area 土地面積 | | 165.29 sq m ・ 165.31 sq m (registration) 165.29m2・165.31m2(登記) | Building area 建物面積 | | 99.36 sq m (measured) 99.36m2(実測) | Driveway burden-road 私道負担・道路 | | Road width: 5m 道路幅:5m | Completion date 完成時期(築年月) | | February 2014 schedule 2014年2月予定 | Address 住所 | | Sagamihara City, Kanagawa Prefecture, Minami-ku, Yihe 神奈川県相模原市南区新戸 | Traffic 交通 | | JR Sagami Line "Sobudaishita" walk 13 minutes Odakyu Odawara Line "Sobudaimae" bus 13 minutes new Iso town development center before walk 2 minutes JR Sagami Line "lower groove" walk 27 minutes JR相模線「相武台下」歩13分 小田急小田原線「相武台前」バス13分新磯まちづくりセンター前歩2分 JR相模線「下溝」歩27分
| Person in charge 担当者より | | Rep Asama Yuki Age: 20 Daigyokai Experience: 10 years "that important on looking house is the concept of your own, What kind of property, where, You need want or express purpose to buy how much. That we will support from a variety of perspectives regardless only to a variety of information and comparison such as a single point also for " 担当者浅間 勇輝年齢:20代業界経験:10年「住まい探しの上で大事な事はお客様自身のコンセプトです、どんな物件を、どこで、いくらで買いたいか明確な目的が必要です。その為にも様々な情報や比較対象等一点だけに拘らず様々な視点からサポート致します」 | Contact お問い合せ先 | | TEL: 0800-603-8480 [Toll free] mobile phone ・ Also available from PHS Caller ID is not notified Please contact the "saw SUUMO (Sumo)" If it does not lead, If the real estate company TEL:0800-603-8480【通話料無料】携帯電話・PHSからもご利用いただけます 発信者番号は通知されません 「SUUMO(スーモ)を見た」と問い合わせください つながらない方、不動産会社の方は
| Most price range 最多価格帯 | | 29 million yen (2 units) 2900万円台(2戸) | Building coverage, floor area ratio 建ぺい率・容積率 | | Kenpei rate: 50%, Volume ratio: 80% 建ペい率:50%、容積率:80% | Time residents 入居時期 | | Consultation 相談 | Land of the right form 土地の権利形態 | | Ownership 所有権 | Structure and method of construction 構造・工法 | | Wooden 2-story 木造2階建 | Use district 用途地域 | | One low-rise 1種低層 | Land category 地目 | | Residential land 宅地 | Overview and notices その他概要・特記事項 | | Contact: Asama Yuki, Building confirmation number: 02246 担当者:浅間 勇輝、建築確認番号:02246 | Company profile 会社概要 | | <Mediation> Kanagawa Governor (2) Article 026 475 issue (stock) residence of square HOMESyubinbango252-0231 Sagamihara, Kanagawa Prefecture, Chuo-ku, Sagamihara 5-1-2A <仲介>神奈川県知事(2)第026475号(株)住まいの広場HOMES〒252-0231 神奈川県相模原市中央区相模原5-1-2A |
Other localその他現地  It is also a good per sun on a land area 50 square meters have all Shitsuminami direction. Spacious with a roof balcony.
敷地面積50坪あり全室南向きで陽当たりも良好です。広々ルーフバルコニー付。
Same specifications photos (living)同仕様写真(リビング)  All room pair glass, Shutter shutters standard
全居室ペアガラス、シャッター雨戸標準
Same specifications photo (kitchen)同仕様写真(キッチン)  Artificial marble counter ・ Pair type water purifier with system Kitchen
人造大理石カウンター・一対型浄水器付システムキッチン
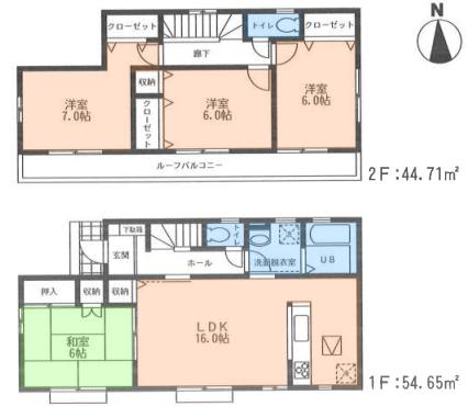
Floor plan間取り図  (2), Price 29,800,000 yen, 4LDK, Land area 165.31 sq m , Building area 99.36 sq m
(2)、価格2980万円、4LDK、土地面積165.31m2、建物面積99.36m2
 Rendering (appearance)
完成予想図(外観)
Same specifications photo (bathroom)同仕様写真(浴室)  1 tsubo size ・ Barrier-free type ・ With bathroom dryer
1坪サイズ・バリアフリータイプ・浴室乾燥機付
 Local photos, including front road
前面道路含む現地写真
Hospital病院  Isobe 750m to clinic
磯部クリニックまで750m
 Same specifications photos (Other introspection)
同仕様写真(その他内観)
 The entire compartment Figure
全体区画図
 Other local
その他現地
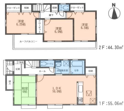
Floor plan間取り図  (1), Price 29,800,000 yen, 4LDK, Land area 165.29 sq m , Building area 99.36 sq m
(1)、価格2980万円、4LDK、土地面積165.29m2、建物面積99.36m2
 Local photos, including front road
前面道路含む現地写真
Kindergarten ・ Nursery幼稚園・保育園  Sanga 750m to children Garden
サンガこども園まで750m
 Same specifications photos (Other introspection)
同仕様写真(その他内観)
 Other local
その他現地
 Local photos, including front road
前面道路含む現地写真
Supermarketスーパー  950m until Takaraya Isobe shop
たからや磯部店まで950m
 Same specifications photos (Other introspection)
同仕様写真(その他内観)
 Other local
その他現地
 Same specifications photos (Other introspection)
同仕様写真(その他内観)
Location
|