New Homes » Kanto » Kanagawa Prefecture » Sagamihara Minami-ku
 
| | Sagamihara City, Kanagawa Prefecture, Minami-ku, 神奈川県相模原市南区 |
| Odakyu line "Sagami" walk 22 minutes 小田急線「相模大野」歩22分 |
| Parking two Allowed, Immediate Available, All rooms are two-sided lighting, Zenshitsuminami direction, Corner lot, Flat to the station, Pre-ground survey, Seismic fit, 2 along the line more accessible, Super close, It is close to the city, Facing south, System kitchen, Bathroom Inui 駐車2台可、即入居可、全室2面採光、全室南向き、角地、駅まで平坦、地盤調査済、耐震適合、2沿線以上利用可、スーパーが近い、市街地が近い、南向き、システムキッチン、浴室乾 |
| Parking two Allowed, Immediate Available, All rooms are two-sided lighting, Zenshitsuminami direction, Corner lot, Flat to the station, Pre-ground survey, Seismic fit, 2 along the line more accessible, Super close, It is close to the city, Facing south, System kitchen, Bathroom Dryer, Yang per good, All room storage, Siemens south road, A quiet residential area, LDK15 tatami mats or more, Around traffic fewerese-style room, Starting station, Shaping land, garden, Washbasin with shower, Face-to-face kitchen, Wide balcony, Barrier-free, Toilet 2 places, Bathroom 1 tsubo or more, 2-story, South balcony, Double-glazing, Otobasu, Warm water washing toilet seat, Underfloor Storage, The window in the bathroom, TV monitor interphone, Urban neighborhood, Ventilation good, Water filter, City gas, Flat terrain 駐車2台可、即入居可、全室2面採光、全室南向き、角地、駅まで平坦、地盤調査済、耐震適合、2沿線以上利用可、スーパーが近い、市街地が近い、南向き、システムキッチン、浴室乾燥機、陽当り良好、全居室収納、南側道路面す、閑静な住宅地、LDK15畳以上、周辺交通量少なめ、和室、始発駅、整形地、庭、シャワー付洗面台、対面式キッチン、ワイドバルコニー、バリアフリー、トイレ2ヶ所、浴室1坪以上、2階建、南面バルコニー、複層ガラス、オートバス、温水洗浄便座、床下収納、浴室に窓、TVモニタ付インターホン、都市近郊、通風良好、浄水器、都市ガス、平坦地 |
Features pickup 特徴ピックアップ | | Pre-ground survey / Seismic fit / Parking two Allowed / Immediate Available / 2 along the line more accessible / Super close / It is close to the city / Facing south / System kitchen / Bathroom Dryer / Yang per good / All room storage / Flat to the station / Siemens south road / A quiet residential area / LDK15 tatami mats or more / Around traffic fewer / Corner lot / Japanese-style room / Starting station / Shaping land / garden / Washbasin with shower / Face-to-face kitchen / Wide balcony / Barrier-free / Toilet 2 places / Bathroom 1 tsubo or more / 2-story / South balcony / Double-glazing / Zenshitsuminami direction / Otobasu / Warm water washing toilet seat / Underfloor Storage / The window in the bathroom / TV monitor interphone / Urban neighborhood / Ventilation good / Water filter / City gas / All rooms are two-sided lighting / Flat terrain 地盤調査済 /耐震適合 /駐車2台可 /即入居可 /2沿線以上利用可 /スーパーが近い /市街地が近い /南向き /システムキッチン /浴室乾燥機 /陽当り良好 /全居室収納 /駅まで平坦 /南側道路面す /閑静な住宅地 /LDK15畳以上 /周辺交通量少なめ /角地 /和室 /始発駅 /整形地 /庭 /シャワー付洗面台 /対面式キッチン /ワイドバルコニー /バリアフリー /トイレ2ヶ所 /浴室1坪以上 /2階建 /南面バルコニー /複層ガラス /全室南向き /オートバス /温水洗浄便座 /床下収納 /浴室に窓 /TVモニタ付インターホン /都市近郊 /通風良好 /浄水器 /都市ガス /全室2面採光 /平坦地 | Price 価格 | | 33,800,000 yen ・ 35,800,000 yen 3380万円・3580万円 | Floor plan 間取り | | 4LDK 4LDK | Units sold 販売戸数 | | 2 units 2戸 | Total units 総戸数 | | 2 units 2戸 | Land area 土地面積 | | 98.04 sq m ・ 102.08 sq m (29.65 tsubo ・ 30.87 square meters) 98.04m2・102.08m2(29.65坪・30.87坪) | Building area 建物面積 | | 90.72 sq m ・ 93.96 sq m (27.44 tsubo ・ 28.42 tsubo) (measured) 90.72m2・93.96m2(27.44坪・28.42坪)(実測) | Driveway burden-road 私道負担・道路 | | Road width: 4.5m, Concrete pavement, There is interest in the position designated road to each building. 道路幅:4.5m、コンクリート舗装、位置指定道路の持分が各棟にあり。 | Completion date 完成時期(築年月) | | 2013 mid-December 2013年12月中旬 | Address 住所 | | Sagamihara City, Kanagawa Prefecture, Minami-ku, Minamidai 1 神奈川県相模原市南区南台1 | Traffic 交通 | | Odakyu line "Sagami" walk 22 minutes Odawara Line Odakyu "Odakyusagamihara" walk 13 minutes Enoshima Odakyu "Higashirinkan" walk 24 minutes 小田急線「相模大野」歩22分 小田急小田原線「小田急相模原」歩13分 小田急江ノ島線「東林間」歩24分
| Related links 関連リンク | | [Related Sites of this company] 【この会社の関連サイト】 | Person in charge 担当者より | | Rep Hikita Yuichi Age: 20s [Favorite food] ramen [hobby] game [Word] We sincerely do our best. 担当者疋田 雄一年齢:20代【好きな食べ物】ラーメン 【趣味】ゲーム 【一言】誠実に全力を尽くします。 | Contact お問い合せ先 | | TEL: 0800-603-2732 [Toll free] mobile phone ・ Also available from PHS Caller ID is not notified Please contact the "saw SUUMO (Sumo)" If it does not lead, If the real estate company TEL:0800-603-2732【通話料無料】携帯電話・PHSからもご利用いただけます 発信者番号は通知されません 「SUUMO(スーモ)を見た」と問い合わせください つながらない方、不動産会社の方は
| Building coverage, floor area ratio 建ぺい率・容積率 | | Kenpei rate: 60%, Volume ratio: 180% 建ペい率:60%、容積率:180% | Time residents 入居時期 | | Immediate available 即入居可 | Land of the right form 土地の権利形態 | | Ownership 所有権 | Structure and method of construction 構造・工法 | | Wooden 2-story (framing method) 木造2階建(軸組工法) | Use district 用途地域 | | One middle and high 1種中高 | Land category 地目 | | Mountain forest 山林 | Other limitations その他制限事項 | | Regulations have by the Landscape Act, Height district, Quasi-fire zones, Height ceiling Yes, Shade limit Yes, Corner-cutting Yes 景観法による規制有、高度地区、準防火地域、高さ最高限度有、日影制限有、隅切り有 | Overview and notices その他概要・特記事項 | | Contact: Hikita Yuichi 担当者:疋田 雄一 | Company profile 会社概要 | | <Mediation> Governor of Tokyo (1) No. 089264 (Corporation) Tokyo Metropolitan Government Building Lots and Buildings Transaction Business Association (Corporation) metropolitan area real estate Fair Trade Council member (Ltd.) Urban Home Machida branch Yubinbango194-0022 Tokyo Machida Morino 1-34-10 first Yazawa building first floor <仲介>東京都知事(1)第089264号(公社)東京都宅地建物取引業協会会員 (公社)首都圏不動産公正取引協議会加盟(株)アーバンホーム町田支店〒194-0022 東京都町田市森野1-34-10 第1矢沢ビル1階 |
Local appearance photo現地外観写真  Local (12 May 2013) Shooting
現地(2013年12月)撮影
Livingリビング  Local (12 May 2013) Shooting
現地(2013年12月)撮影
View photos from the dwelling unit住戸からの眺望写真  Local (12 May 2013) Shooting
現地(2013年12月)撮影
Floor plan間取り図  (1 Building), Price 35,800,000 yen, 4LDK, Land area 98.04 sq m , Building area 93.96 sq m
(1号棟)、価格3580万円、4LDK、土地面積98.04m2、建物面積93.96m2
Local appearance photo現地外観写真  Local (12 May 2013) Shooting
現地(2013年12月)撮影
Livingリビング  Local (12 May 2013) Shooting
現地(2013年12月)撮影
Bathroom浴室  Local (12 May 2013) Shooting
現地(2013年12月)撮影
Kitchenキッチン  Local (12 May 2013) Shooting
現地(2013年12月)撮影
Non-living roomリビング以外の居室  Local (12 May 2013) Shooting
現地(2013年12月)撮影
Local photos, including front road前面道路含む現地写真  Local (12 May 2013) Shooting
現地(2013年12月)撮影
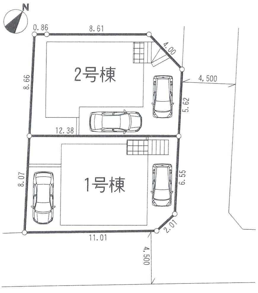
 The entire compartment Figure
全体区画図
Floor plan間取り図  (Building 2), Price 33,800,000 yen, 4LDK, Land area 102.08 sq m , Building area 90.72 sq m
(2号棟)、価格3380万円、4LDK、土地面積102.08m2、建物面積90.72m2
Local appearance photo現地外観写真  Local (12 May 2013) Shooting
現地(2013年12月)撮影
Bathroom浴室  Local (12 May 2013) Shooting
現地(2013年12月)撮影
Non-living roomリビング以外の居室  Local (12 May 2013) Shooting
現地(2013年12月)撮影
Local appearance photo現地外観写真  Local (12 May 2013) Shooting
現地(2013年12月)撮影
Non-living roomリビング以外の居室  Local (12 May 2013) Shooting
現地(2013年12月)撮影
 Local (12 May 2013) Shooting
現地(2013年12月)撮影
 Local (12 May 2013) Shooting
現地(2013年12月)撮影
 Local (12 May 2013) Shooting
現地(2013年12月)撮影
 Local (12 May 2013) Shooting
現地(2013年12月)撮影
 Primary school
小学校
 Junior high school
中学校
Location
|