New Homes » Kanto » Kanagawa Prefecture » Sagamihara Minami-ku
 
| | Sagamihara City, Kanagawa Prefecture, Minami-ku, 神奈川県相模原市南区 |
| JR Yokohama Line "Kobuchi" walk 22 minutes JR横浜線「古淵」歩22分 |
| It is newly built condominiums that can walk in the flat from the train station. Car space that can also be 2 car site is also good yang per well living environment. Since it entered the one inside from the street, Traffic volume does not worry. 駅から平坦で歩くことが出来る新築分譲住宅です。カースペースも2台分可能な敷地は陽当り良く住環境も良好です。通りからは1本内側に入りますので、交通量も心配ありません。 |
| Parking two Allowed, It is close to the city, System kitchen, Bathroom Dryer, Flat to the station, A quiet residential area, Around traffic fewerese-style room, Shaping land, Washbasin with shower, Face-to-face kitchen, Wide balcony, Barrier-free, Toilet 2 places, Bathroom 1 tsubo or more, 2-story, 2 or more sides balcony, Southeast direction, Double-glazing, Otobasu, Warm water washing toilet seat, Underfloor Storage, The window in the bathroom, TV monitor interphone, Leafy residential area, Southwestward, All rooms are two-sided lighting, A large gap between the neighboring house, Flat terrain 駐車2台可、市街地が近い、システムキッチン、浴室乾燥機、駅まで平坦、閑静な住宅地、周辺交通量少なめ、和室、整形地、シャワー付洗面台、対面式キッチン、ワイドバルコニー、バリアフリー、トイレ2ヶ所、浴室1坪以上、2階建、2面以上バルコニー、東南向き、複層ガラス、オートバス、温水洗浄便座、床下収納、浴室に窓、TVモニタ付インターホン、緑豊かな住宅地、南西向き、全室2面採光、隣家との間隔が大きい、平坦地 |
Features pickup 特徴ピックアップ | | Parking two Allowed / It is close to the city / System kitchen / Bathroom Dryer / Flat to the station / A quiet residential area / Around traffic fewer / Japanese-style room / Shaping land / Washbasin with shower / Face-to-face kitchen / Wide balcony / Barrier-free / Toilet 2 places / Bathroom 1 tsubo or more / 2-story / 2 or more sides balcony / Double-glazing / Otobasu / Warm water washing toilet seat / Underfloor Storage / The window in the bathroom / TV monitor interphone / Leafy residential area / All rooms are two-sided lighting / A large gap between the neighboring house / Flat terrain 駐車2台可 /市街地が近い /システムキッチン /浴室乾燥機 /駅まで平坦 /閑静な住宅地 /周辺交通量少なめ /和室 /整形地 /シャワー付洗面台 /対面式キッチン /ワイドバルコニー /バリアフリー /トイレ2ヶ所 /浴室1坪以上 /2階建 /2面以上バルコニー /複層ガラス /オートバス /温水洗浄便座 /床下収納 /浴室に窓 /TVモニタ付インターホン /緑豊かな住宅地 /全室2面採光 /隣家との間隔が大きい /平坦地 | Price 価格 | | 30,800,000 yen ~ 31,800,000 yen 3080万円 ~ 3180万円 | Floor plan 間取り | | 4LDK 4LDK | Units sold 販売戸数 | | 2 units 2戸 | Total units 総戸数 | | 2 units 2戸 | Land area 土地面積 | | 100.06 sq m ~ 107.5 sq m 100.06m2 ~ 107.5m2 | Building area 建物面積 | | 93.14 sq m ~ 93.15 sq m 93.14m2 ~ 93.15m2 | Driveway burden-road 私道負担・道路 | | Road width: 4.5m, Asphaltic pavement 道路幅:4.5m、アスファルト舗装 | Completion date 完成時期(築年月) | | 2013 mid-November 2013年11月中旬 | Address 住所 | | Sagamihara City, Kanagawa Prefecture, Minami-ku, Onodai 4-16 神奈川県相模原市南区大野台4-16 | Traffic 交通 | | JR Yokohama Line "Kobuchi" walk 22 minutes JR横浜線「古淵」歩22分
| Person in charge 担当者より | | Person in charge of real-estate and building FP Toru Uemura Age: 30 Daigyokai experience: to cherish the smile that he inherited from his father 12 years actor, We are striving every day as the first to be set up to your role of everyone. Also I think there are a variety of questions after you purchase. When such, Me in, please contact us at any time if set up to your role. 担当者宅建FP上村とおる年齢:30代業界経験:12年俳優の父から受け継いだ笑顔を大切にし、皆様のお役にたてることを第一として日々邁進しております。 御購入頂いた後も様々なご質問があるかと思います。 そんな時、私でお役にたてるならいつでもご連絡下さい。 | Contact お問い合せ先 | | TEL: 0800-601-4977 [Toll free] mobile phone ・ Also available from PHS Caller ID is not notified Please contact the "saw SUUMO (Sumo)" If it does not lead, If the real estate company TEL:0800-601-4977【通話料無料】携帯電話・PHSからもご利用いただけます 発信者番号は通知されません 「SUUMO(スーモ)を見た」と問い合わせください つながらない方、不動産会社の方は
| Building coverage, floor area ratio 建ぺい率・容積率 | | Kenpei rate: 50%, Volume ratio: 100% 建ペい率:50%、容積率:100% | Time residents 入居時期 | | Immediate available 即入居可 | Land of the right form 土地の権利形態 | | Ownership 所有権 | Structure and method of construction 構造・工法 | | Wooden 2-story 木造2階建 | Use district 用途地域 | | One low-rise 1種低層 | Land category 地目 | | Residential land 宅地 | Other limitations その他制限事項 | | Regulations have by the Landscape Act 景観法による規制有 | Overview and notices その他概要・特記事項 | | Contact: Toru Uemura 担当者:上村とおる | Company profile 会社概要 | | <Mediation> Governor of Kanagawa Prefecture (5) No. 021289 (the company), Kanagawa Prefecture Building Lots and Buildings Transaction Business Association (Corporation) metropolitan area real estate Fair Trade Council member Co., Ltd. Shun Hing development Yubinbango252-0344 Sagamihara City, Kanagawa Prefecture, Minami-ku, Kobuchi 2-16-9 <仲介>神奈川県知事(5)第021289号(社)神奈川県宅地建物取引業協会会員 (公社)首都圏不動産公正取引協議会加盟(株)信興開発〒252-0344 神奈川県相模原市南区古淵2-16-9 |
Local appearance photo現地外観写真  1 Building's appearance. Bright live the sun Komu insert.
1号棟外観です。陽が差しこむ明るいお住まいです。
Kitchenキッチン  1 Building is in the kitchen. It summarizes in a chic impression.
1号棟のキッチンです。 シックな印象でまとめています。
Livingリビング  Is the living of 1 Building. The color of the floor also matches the building.
1号棟のリビングです。 床の色も建物にマッチしています。
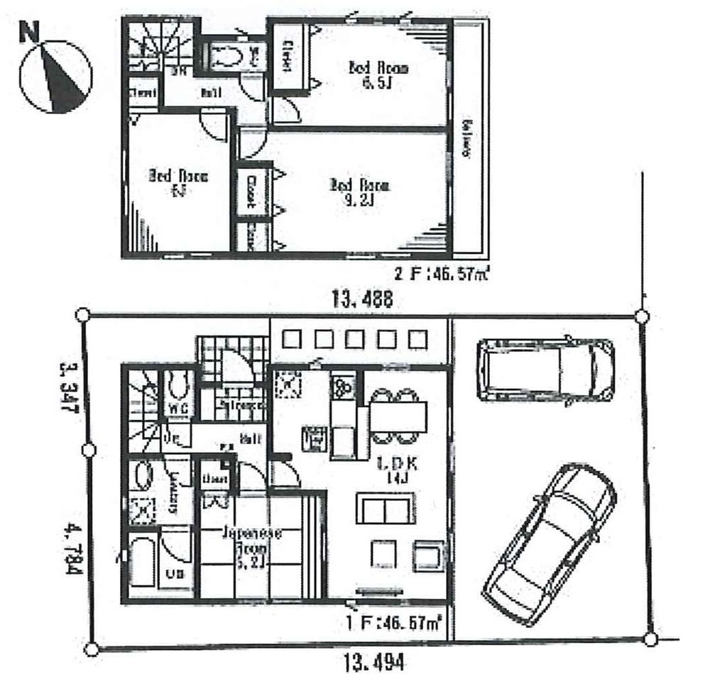
Floor plan間取り図  (1 Building), Price 31,800,000 yen, 4LDK, Land area 107.5 sq m , Building area 93.14 sq m
(1号棟)、価格3180万円、4LDK、土地面積107.5m2、建物面積93.14m2
Livingリビング  Also it has been summarized in a chic image Building 2.
2号棟もシックなイメージでまとめられています。
Bathroom浴室  It is a bathroom of 1 Building.
1号棟の浴室です。
Non-living roomリビング以外の居室  The second floor of the room of 1 Building.
1号棟の2階のお部屋です。
Shopping centreショッピングセンター  Avail Nitori Mall 1284m to Sagamihara store
Availニトリモール相模原店まで1284m
The entire compartment Figure全体区画図  Road in the center. South has spread, such as the garden of the adjacent land.
中央に道路。南面は隣地のお庭などが広がっています。
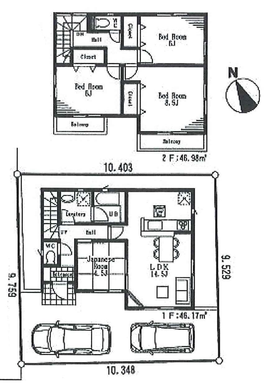
Floor plan間取り図  (Building 2), Price 30,800,000 yen, 4LDK, Land area 100.06 sq m , Building area 93.15 sq m
(2号棟)、価格3080万円、4LDK、土地面積100.06m2、建物面積93.15m2
Livingリビング  Is the living of Building 2.
2号棟のリビングです。
Bathroom浴室  It is a bathroom of Building 2.
2号棟の浴室です。
Non-living roomリビング以外の居室  Is a Japanese-style room of 1 Building.
1号棟の和室です。
Supermarketスーパー  1241m until the food one Onodai shop
フードワン大野台店まで1241m
Non-living roomリビング以外の居室  2 Building on the second floor of the room.
2号棟2階のお部屋です。
Supermarketスーパー  1522m until the ion Sagamihara store
イオン相模原店まで1522m
Non-living roomリビング以外の居室  Building 2 is a Japanese-style room.
2号棟和室です。
Home centerホームセンター  1392m until Shimachu Co., Ltd. Holmes Sagamihara store
島忠ホームズ相模原店まで1392m
Primary school小学校  740m to Sagamihara Municipal Onodai Central Elementary School
相模原市立大野台中央小学校まで740m
Kindergarten ・ Nursery幼稚園・保育園  1148m to Ohno culture kindergarten
大野文化幼稚園まで1148m
Junior high school中学校  637m to Sagamihara Municipal Onodai junior high school
相模原市立大野台中学校まで637m
Location
|