New Homes » Kanto » Kanagawa Prefecture » Sagamihara Minami-ku
 
| | Sagamihara City, Kanagawa Prefecture, Minami-ku, 神奈川県相模原市南区 |
| Odakyu line "Sagami" walk 26 minutes 小田急線「相模大野」歩26分 |
| Clear of 4LDK + it is with a loft. ゆとりの4LDK+ロフト付です。 |
| Through the Sakaigawa promenade from JR Machida Station, It is almost flat from the train station, Close to the Kazenoko Square There, It is child-rearing in the friendly environment. Please have a look once. JR町田駅より境川遊歩道を通り、ほぼ駅から平坦です、近くには風の子広場が有り、子育てに優しい環境です。是非一度御覧下さい。 |
Features pickup 特徴ピックアップ | | Corresponding to the flat-35S / Parking three or more possible / 2 along the line more accessible / System kitchen / Bathroom Dryer / All room storage / A quiet residential area / LDK15 tatami mats or more / Around traffic fewer / Toilet 2 places / Underfloor Storage / All living room flooring / Dish washing dryer / All room 6 tatami mats or more / Living stairs フラット35Sに対応 /駐車3台以上可 /2沿線以上利用可 /システムキッチン /浴室乾燥機 /全居室収納 /閑静な住宅地 /LDK15畳以上 /周辺交通量少なめ /トイレ2ヶ所 /床下収納 /全居室フローリング /食器洗乾燥機 /全居室6畳以上 /リビング階段 | Price 価格 | | 39,800,000 yen 3980万円 | Floor plan 間取り | | 4LDK 4LDK | Units sold 販売戸数 | | 1 units 1戸 | Total units 総戸数 | | 1 units 1戸 | Land area 土地面積 | | 150.87 sq m (registration) 150.87m2(登記) | Building area 建物面積 | | 103.91 sq m 103.91m2 | Driveway burden-road 私道負担・道路 | | 20.2 sq m , North 4m width (contact the road width 4m) 20.2m2、北4m幅(接道幅4m) | Completion date 完成時期(築年月) | | 1 month after the contract 契約後1ヶ月 | Address 住所 | | Sagamihara City, Kanagawa Prefecture, Minami-ku, Kamitsuruma Hon 8-51 No. No. 5 神奈川県相模原市南区上鶴間本町8-51番5号 | Traffic 交通 | | Odakyu line "Sagami" walk 26 minutes Enoshima Odakyu "Higashirinkan" walk 24 minutes JR Yokohama Line "Machida" walk 25 minutes 小田急線「相模大野」歩26分 小田急江ノ島線「東林間」歩24分 JR横浜線「町田」歩25分
| Contact お問い合せ先 | | (Ltd.) Rains TEL: 0800-601-4884 [Toll free] mobile phone ・ Also available from PHS Caller ID is not notified Please contact the "saw SUUMO (Sumo)" If it does not lead, If the real estate company (株)レインズTEL:0800-601-4884【通話料無料】携帯電話・PHSからもご利用いただけます 発信者番号は通知されません 「SUUMO(スーモ)を見た」と問い合わせください つながらない方、不動産会社の方は
| Building coverage, floor area ratio 建ぺい率・容積率 | | 60% ・ 200% 60%・200% | Time residents 入居時期 | | 1 month after the contract 契約後1ヶ月 | Land of the right form 土地の権利形態 | | Ownership 所有権 | Structure and method of construction 構造・工法 | | Wooden 2-story (framing method) 木造2階建(軸組工法) | Construction 施工 | | (Ltd.) Matsui Construction Co., Ltd. (株)松井建設 | Use district 用途地域 | | One middle and high 1種中高 | Other limitations その他制限事項 | | Quasi-fire zones 準防火地域 | Overview and notices その他概要・特記事項 | | Facilities: Public Water Supply, This sewage, Individual LPG, Building confirmation number: No. H24 confirmation architecture KBI 05152 No., Parking: car space 設備:公営水道、本下水、個別LPG、建築確認番号:第H24確認建築KBI 05152号、駐車場:カースペース | Company profile 会社概要 | | <Seller> Kanagawa Governor (6) Article 018 453 issue (stock) Rains Yubinbango252-0318 Sagamihara City, Kanagawa Prefecture, Minami-ku, Kamitsuruma Honcho 5-24-23 <売主>神奈川県知事(6)第018453号(株)レインズ〒252-0318 神奈川県相模原市南区上鶴間本町5-24-23 |
Local appearance photo現地外観写真  Local (12 May 2013) Shooting
現地(2013年12月)撮影
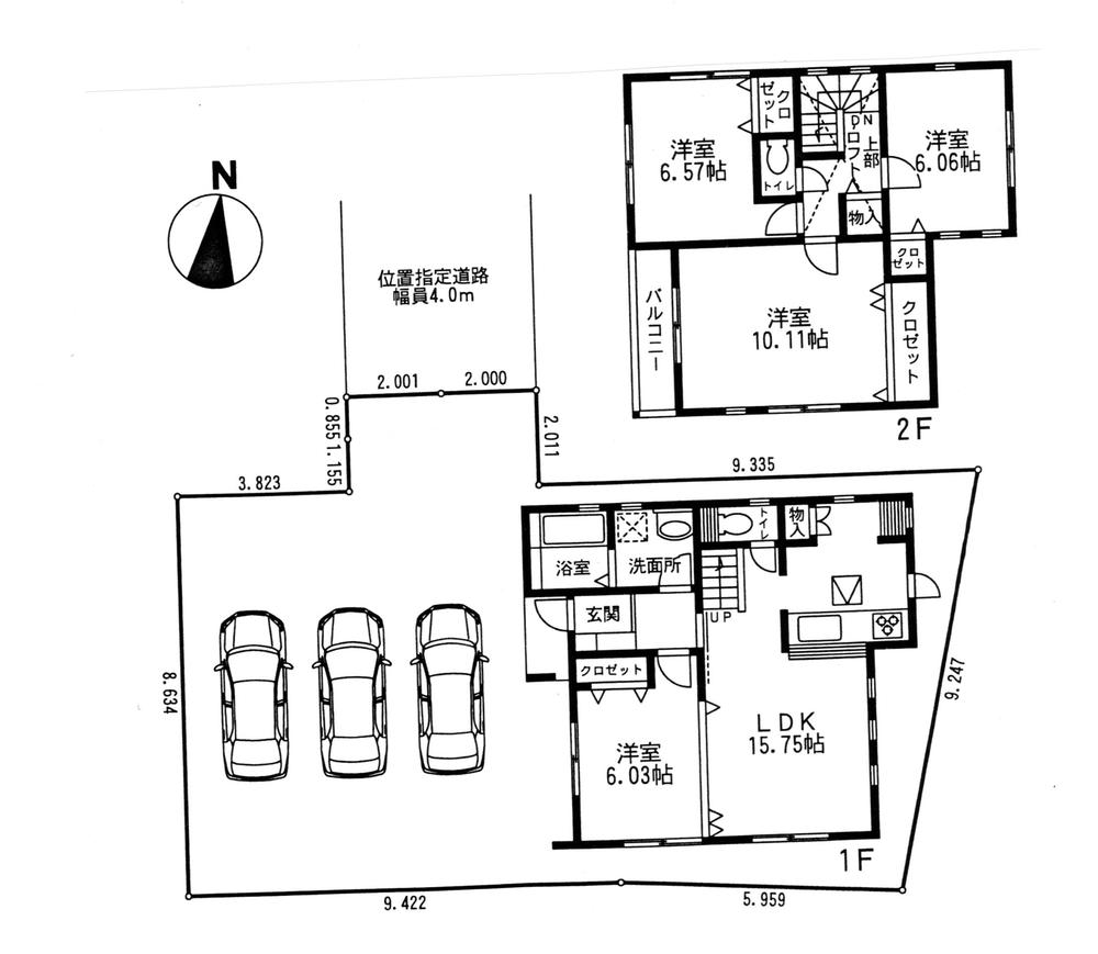
Floor plan間取り図  39,800,000 yen, 4LDK, Land area 150.87 sq m , Building area 103.91 sq m
3980万円、4LDK、土地面積150.87m2、建物面積103.91m2
Livingリビング  Indoor (12 May 2013) Shooting
室内(2013年12月)撮影
Bathroom浴室  Indoor (12 May 2013) Shooting
室内(2013年12月)撮影
Kitchenキッチン  Indoor (12 May 2013) Shooting
室内(2013年12月)撮影
Toiletトイレ  Indoor (12 May 2013) Shooting
室内(2013年12月)撮影
Wash basin, toilet洗面台・洗面所  Shampoo is vanity
洗髪洗面化粧台です
Otherその他  PIN is a number with a post.
暗証番号つきポストです。
Kitchenキッチン  It is housework space.
家事スペースです。
Location
|