New Homes » Kanto » Kanagawa Prefecture » Aoba-ku, Yokohama City
 
| | Yokohama City, Kanagawa Prefecture, Aoba-ku, 神奈川県横浜市青葉区 |
| Denentoshi Tokyu "Aobadai" 8 minutes Tana High School before walk 2 minutes by bus 東急田園都市線「青葉台」バス8分田奈高校前歩2分 |
| Denentoshi Tokyu "Aobadai". Residential home town of the new concept Tokyu Railway give. Town admire the moon "Neue Aobadai Tsukinoniwa", birth. 東急田園都市線「青葉台」。東急電鉄が贈る新コンセプトの一戸建てタウン。月を愛でる街「ノイエ青葉台 月ノ庭」、誕生。 |
| Family and talk irreplaceable time Ya, Home Town that made the hope of wanting to enjoy a peaceful their time. ◆ The nearest station express station. Denentoshi Tokyu "Aobadai". ◆ Easy also commute. To Shibuya 25 minutes, Comfortable access of direct 41 minutes to Otemachi. ◆ Parenting also safe. Child-rearing generations many, Lush living environment. ◆ In everyday shopping is within walking distance. Convenience preeminent location of about 5 minutes to super. 家族と語り合うかけがえのない時間や、穏やかな自分の時間を楽しんでほしいという願いを込めてつくった一戸建てタウン。◆最寄り駅は急行停車駅。東急田園都市線「青葉台」。◆通勤もらくらく。渋谷まで25分、大手町まで直通41分の快適アクセス。◆子育ても安心。子育て世代も多く、緑豊かな住環境。◆日常のお買い物は徒歩圏で。スーパーまで約5分の利便性抜群の立地。 |
Local guide map 現地案内図 | | Local guide map 現地案内図 | Features pickup 特徴ピックアップ | | Pre-ground survey / Year Available / LDK18 tatami mats or more / Super close / Facing south / System kitchen / Bathroom Dryer / All room storage / Siemens south road / A quiet residential area / Or more before road 6m / Corner lot / Japanese-style room / Shaping land / Face-to-face kitchen / Security enhancement / Toilet 2 places / 2-story / 2 or more sides balcony / South balcony / Double-glazing / Zenshitsuminami direction / Warm water washing toilet seat / Nantei / Underfloor Storage / The window in the bathroom / Atrium / TV monitor interphone / Leafy residential area / Urban neighborhood / All living room flooring / Wood deck / Dish washing dryer / Walk-in closet / Water filter / Living stairs / City gas / BS ・ CS ・ CATV / Maintained sidewalk / roof balcony / Flat terrain / Floor heating / Development subdivision in / terrace / Readjustment land within 地盤調査済 /年内入居可 /LDK18畳以上 /スーパーが近い /南向き /システムキッチン /浴室乾燥機 /全居室収納 /南側道路面す /閑静な住宅地 /前道6m以上 /角地 /和室 /整形地 /対面式キッチン /セキュリティ充実 /トイレ2ヶ所 /2階建 /2面以上バルコニー /南面バルコニー /複層ガラス /全室南向き /温水洗浄便座 /南庭 /床下収納 /浴室に窓 /吹抜け /TVモニタ付インターホン /緑豊かな住宅地 /都市近郊 /全居室フローリング /ウッドデッキ /食器洗乾燥機 /ウォークインクロゼット /浄水器 /リビング階段 /都市ガス /BS・CS・CATV /整備された歩道 /ルーフバルコニー /平坦地 /床暖房 /開発分譲地内 /テラス /区画整理地内 | Event information イベント情報 | | Open House (Please make a reservation beforehand) schedule / During the public time / 10:00 ~ 17:00 オープンハウス(事前に必ず予約してください)日程/公開中時間/10:00 ~ 17:00 | Property name 物件名 | | [Tokyu Corporation of single-family houses] Neue Aobadai Tsukinoniwa 【東急電鉄の戸建住宅】 ノイエ青葉台 月ノ庭 | Price 価格 | | 55,600,000 yen ~ 59,500,000 yen 5560万円 ~ 5950万円 | Floor plan 間取り | | 4LDK 4LDK | Units sold 販売戸数 | | 9 units 9戸 | Total units 総戸数 | | 19 units 19戸 | Land area 土地面積 | | 126.61 sq m ~ 126.92 sq m (38.29 tsubo ~ 38.39 tsubo) (measured) 126.61m2 ~ 126.92m2(38.29坪 ~ 38.39坪)(実測) | Building area 建物面積 | | 99.24 sq m ~ 101.31 sq m (30.01 tsubo ~ 30.64 tsubo) (measured) 99.24m2 ~ 101.31m2(30.01坪 ~ 30.64坪)(実測) | Driveway burden-road 私道負担・道路 | | Road-side outer wall retreat 1m 道路側外壁後退1m | Completion date 完成時期(築年月) | | June 2013 2013年6月 | Address 住所 | | Yokohama City, Kanagawa Prefecture, Aoba-ku, Katsuradai 2-38 No. 21 outside 神奈川県横浜市青葉区桂台2-38番21外 | Traffic 交通 | | Denentoshi Tokyu "Aobadai" 8 minutes Tana High School before walk 2 minutes by bus 東急田園都市線「青葉台」バス8分田奈高校前歩2分
| Related links 関連リンク | | [Related Sites of this company] 【この会社の関連サイト】 | Contact お問い合せ先 | | Tokyu Livable, Inc. Aobadai Center TEL: 0120-477-109 (mobile phone ・ Also available from PHS. ) Please contact the "saw SUUMO (Sumo)" 東急リバブル株式会社 青葉台センターTEL:0120-477-109(携帯電話・PHSからもご利用いただけます。)「SUUMO(スーモ)を見た」と問い合わせください | Sale schedule 販売スケジュール | | ◆ 2013 December 28 (Sat) ~ It will be the year-end and New Year holidays until January 4 (Saturday). ◆ New model published in! ! ◆ First-come-first-served basis application accepted! ! ◆2013年12月28日(土) ~ 1月4日(土)まで年末年始休業となります。◆新モデル公開中!!◆先着順申込受付!! | Expenses 諸費用 | | Other expenses: town fee: 3000 yen / Year その他諸費用:町内会費:3000円/年 | Building coverage, floor area ratio 建ぺい率・容積率 | | Kenpei rate: 40%, Volume ratio: 80% 建ペい率:40%、容積率:80% | Time residents 入居時期 | | Immediate available 即入居可 | Land of the right form 土地の権利形態 | | Ownership 所有権 | Structure and method of construction 構造・工法 | | Wooden 2-story (2 × 4 construction method) 木造2階建(2×4工法) | Construction 施工 | | Tokyu Construction Co., Ltd. ・ Tokyu Green System Co., Ltd. 東急建設株式会社・東急グリーンシステム株式会社 | Use district 用途地域 | | One low-rise 1種低層 | Land category 地目 | | Residential land 宅地 | Other limitations その他制限事項 | | Residential land development construction regulation area, Height district, Site area minimum Yes, Setback Yes 宅地造成工事規制区域、高度地区、敷地面積最低限度有、壁面後退有 | Overview and notices その他概要・特記事項 | | Building confirmation number: No. H24 confirmation architecture KBI No. 06514 (2012 December 12) Other 建築確認番号:第H24確認建築KBI 06514号(平成24年12月12日)他 | Company profile 会社概要 | | <Seller> Minister of Land, Infrastructure and Transport (10) No. 002621 (one company) Real Estate Association (Corporation) metropolitan area real estate Fair Trade Council member Tokyu Corporation (Corporation) Yubinbango150-0036, Shibuya-ku, Tokyo Nanpeidaichō 5-6 <mediation> Minister of Land, Infrastructure and Transport (10) No. 2611 (one company) Real Estate Association ( <売主>国土交通大臣(10)第002621号(一社)不動産協会会員 (公社)首都圏不動産公正取引協議会加盟東京急行電鉄(株)〒150-0036 東京都渋谷区南平台町5-6<仲介>国土交通大臣(10)第2611号(一社)不動産協会会員 (一社)不動産流通経営協会会員東急リバブル株式会社(仲介)〒150-0043 東京都渋谷区道玄坂1-9-5 |
Rendering (appearance)完成予想図(外観)  Local (July 2013)
現地(2013年7月)
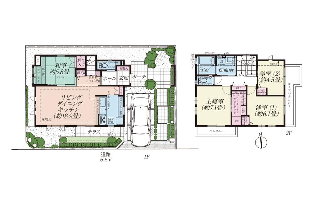
Floor plan間取り図  (no.1-6), Price 58,400,000 yen, 4LDK, Land area 126.92 sq m , Building area 100.22 sq m
(no.1-6)、価格5840万円、4LDK、土地面積126.92m2、建物面積100.22m2
Local guide map現地案内図  Denentoshi Tokyu "Aobadai" bus 8 minutes from the train station, Tokyu 2-minute walk from the "Tana high school before."
東急田園都市線「青葉台」駅からバス8分、東急バス「田奈高校前」から徒歩2分
 Neue Aobadai Tsukinoniwa Surrounding environment map
ノイエ青葉台月ノ庭 周辺環境地図
Other Equipmentその他設備  Equipped with a wide-fired burner of the glass top gas stove new development in which the width of a wide range of thermal cooking spread. Heat-resistant glass top plate of, It will be clean in just wipe a quick.
幅広い火力で料理の幅が広がるガラストップガスコンロ新開発のワイド火力バーナーを搭載。耐熱ガラスのトッププレートは、サッと拭くだけでキレイになります。
 I can use pull out the lift-up shower water washing head to help you when and cleaning washing hair, It is very convenient when you wash the shampoo and bowl.
髪を洗う時やお掃除に役立つリフトアップ式シャワー水洗ヘッドを引き出して使えるので、洗髪やボウルを洗う時にもとても便利です。
 Easy-to-use good mirror back with storage in with storage Since all the back of the wooden three-sided mirror 3-surface mirror is made to the storage rack, You can plenty of houses the cosmetics and accessories.
収納付で使い勝手のいい鏡裏収納付 木製3面鏡3面鏡の裏はすべて収納棚になっているので、化粧品や小物をたっぷりと収納できます。
 Operation sound also firmly washed in high dishwasher powerful quiet and energy-saving effect, To every nook and corner in a lot of hot air, Firmly Drying. Kuranai is always clean because it also eradication. It is easy to clean.
動作音も静かで省エネ効果も高い食器洗い乾燥機パワフルにしっかり洗浄し、たっぷりの温風でスミズミまで、しっかり乾燥。除菌もできるので庫内はいつも清潔。お手入れもカンタンです。
Local appearance photo現地外観写真  Local (May 2013) Shooting
現地(2013年5月)撮影
Livingリビング  Room (May 2013) Shooting
室内(2013年5月)撮影
Other introspectionその他内観  Room (May 2013) Shooting
室内(2013年5月)撮影
 Room (May 2013) Shooting
室内(2013年5月)撮影
Station駅  Tokyu Denentoshi 2540m to aobadai station
東急田園都市線 青葉台駅まで2540m
Primary school小学校  Yokohama Municipal Onda 100m up to elementary school
横浜市立恩田小学校まで100m
Supermarketスーパー  Until Inageya 475m
いなげやまで475m
Other Equipmentその他設備  Adopt a high population marble top quality and full of beauty and cleanliness population marble. Not only the beauty of the look, This counter top excellent in maintenance.
美観と清潔感にあふれた人口大理石トップクオリティの高い人口大理石を採用。見た目の美しさだけでなく、メンテナンス性にも優れたカウンタートップです。
Drug storeドラッグストア  Create S ・ D Until Katsuradai shop 650m
クリエイトS・D 桂台店まで650m
 Until the Sand rack 650m
サンドラックまで650m
Hospital病院  Katsuradai 630m until the internal medicine clinic
桂台内科クリニックまで630m
 410m until the arc dental clinic
アークデンタルクリニックまで410m
Convenience storeコンビニ  thanks 540m to Aoba Wakakusadai shop
サンクス 青葉若草台店まで540m
 FamilyMart Aoba Sumiyoshidai up to 350m
ファミリーマート 青葉すみよし台まで350m
Location
|