New Homes » Kanto » Kanagawa Prefecture » Aoba-ku, Yokohama City
 
| | Yokohama City, Kanagawa Prefecture, Aoba-ku, 神奈川県横浜市青葉区 |
| Denentoshi Tokyu "Aobadai" walk 16 minutes 東急田園都市線「青葉台」歩16分 |
| 2 station is within walking distance of a good location! Super is a well-equipped life information immediately, Newly built single-family finally the completion of the lush surrounding environment! 2駅が徒歩圏内の好立地!スーパーがスグのライフインフォメーション整った、緑豊かな周辺環境の新築一戸建てついに完成! |
| ■ Denentoshi Tokyu "Aobadai" station, "Tana" station is accessible! ■ All rooms are two-sided lighting, 6 Pledge more bright and airy room! ■ Spacious living space of LDK adopted counter kitchen! ■ Standard fully equipped, such as dishwashers and water purifier! ■ There is a garden in south! ■ Surrounding environment well-equipped life information, such as super! ■ Guests preview at any time per completed housing. Please feel free to contact us. ■東急田園都市線「青葉台」駅、「田奈」駅が利用可! ■全室2面採光、6帖以上の明るく開放的室内! ■LDKはカウンターキッチン採用のゆったり住空間! ■食器洗浄機や浄水器など標準設備充実! ■南面に庭あり! ■スーパーなどライフインフォメーションの整った周辺環境! ■完成住宅につきいつでもご内覧いただけます。お気軽にお問い合わせ下さい。 |
Features pickup 特徴ピックアップ | | Super close / Facing south / System kitchen / Bathroom Dryer / Yang per good / A quiet residential area / Around traffic fewer / Japanese-style room / Washbasin with shower / Face-to-face kitchen / Toilet 2 places / Bathroom 1 tsubo or more / 2-story / South balcony / Double-glazing / Warm water washing toilet seat / Nantei / The window in the bathroom / TV monitor interphone / Leafy residential area / Mu front building / Ventilation good / Good view / Dish washing dryer / All room 6 tatami mats or more / Water filter / City gas / All rooms are two-sided lighting / Located on a hill スーパーが近い /南向き /システムキッチン /浴室乾燥機 /陽当り良好 /閑静な住宅地 /周辺交通量少なめ /和室 /シャワー付洗面台 /対面式キッチン /トイレ2ヶ所 /浴室1坪以上 /2階建 /南面バルコニー /複層ガラス /温水洗浄便座 /南庭 /浴室に窓 /TVモニタ付インターホン /緑豊かな住宅地 /前面棟無 /通風良好 /眺望良好 /食器洗乾燥機 /全居室6畳以上 /浄水器 /都市ガス /全室2面採光 /高台に立地 | Price 価格 | | 42,800,000 yen 4280万円 | Floor plan 間取り | | 4LDK 4LDK | Units sold 販売戸数 | | 1 units 1戸 | Total units 総戸数 | | 1 units 1戸 | Land area 土地面積 | | 125.05 sq m (measured) 125.05m2(実測) | Building area 建物面積 | | 93.56 sq m (measured) 93.56m2(実測) | Driveway burden-road 私道負担・道路 | | Nothing, Southeast 4.5m width 無、南東4.5m幅 | Completion date 完成時期(築年月) | | April 2013 2013年4月 | Address 住所 | | Yokohama City, Kanagawa Prefecture, Aoba-ku, Tana-cho 神奈川県横浜市青葉区田奈町 | Traffic 交通 | | Denentoshi Tokyu "Aobadai" walk 16 minutes Denentoshi Tokyu "Tana" walk 7 minutes 東急田園都市線「青葉台」歩16分 東急田園都市線「田奈」歩7分
| Related links 関連リンク | | [Related Sites of this company] 【この会社の関連サイト】 | Person in charge 担当者より | | Rep Komuro TakeMinoru Age: strive every day so that you are able to the satisfaction to the 20's customers, I will do my best in all sincerity. 担当者小室 武稔年齢:20代お客様に満足をしていただけるよう日々努力し、誠心誠意頑張ります。 | Contact お問い合せ先 | | TEL: 0800-603-0562 [Toll free] mobile phone ・ Also available from PHS Caller ID is not notified Please contact the "saw SUUMO (Sumo)" If it does not lead, If the real estate company TEL:0800-603-0562【通話料無料】携帯電話・PHSからもご利用いただけます 発信者番号は通知されません 「SUUMO(スーモ)を見た」と問い合わせください つながらない方、不動産会社の方は
| Building coverage, floor area ratio 建ぺい率・容積率 | | Fifty percent ・ 80% 50%・80% | Time residents 入居時期 | | Consultation 相談 | Land of the right form 土地の権利形態 | | Ownership 所有権 | Structure and method of construction 構造・工法 | | Wooden 2-story 木造2階建 | Use district 用途地域 | | One low-rise 1種低層 | Overview and notices その他概要・特記事項 | | Contact: Komuro TakeMinoru, Facilities: Public Water Supply, This sewage, City gas, Building confirmation number: 03938, Parking: car space 担当者:小室 武稔、設備:公営水道、本下水、都市ガス、建築確認番号:03938、駐車場:カースペース | Company profile 会社概要 | | <Mediation> Minister of Land, Infrastructure and Transport (3) No. 006,185 (one company) National Housing Industry Association (Corporation) metropolitan area real estate Fair Trade Council member Asahi Housing Corporation Yokohama Yubinbango221-0835 Yokohama-shi, Kanagawa, Kanagawa-ku, Tsuruya-cho, 2-26 - 2 fourth Yasuda Building second floor <仲介>国土交通大臣(3)第006185号(一社)全国住宅産業協会会員 (公社)首都圏不動産公正取引協議会加盟朝日住宅(株)横浜店〒221-0835 神奈川県横浜市神奈川区鶴屋町2-26ー2 第4安田ビル2階 |
 Local appearance photo
現地外観写真
 Living
リビング
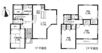
Floor plan間取り図  42,800,000 yen, 4LDK, Land area 125.05 sq m , Building area 93.56 sq m
4280万円、4LDK、土地面積125.05m2、建物面積93.56m2
 Local appearance photo
現地外観写真
 Bathroom
浴室
 Kitchen
キッチン
 Non-living room
リビング以外の居室
 Wash basin, toilet
洗面台・洗面所
 Receipt
収納
 Toilet
トイレ
 Other Equipment
その他設備
Supermarketスーパー  400m until the food one Tana shop
フードワン田奈店まで400m
 View photos from the dwelling unit
住戸からの眺望写真
 Non-living room
リビング以外の居室
 Other Equipment
その他設備
 650m to Tokyu Store Chain
東急ストアまで650m
Primary school小学校  Yokohama Municipal Tana 300m up to elementary school
横浜市立田奈小学校まで300m
Location
|