2013December
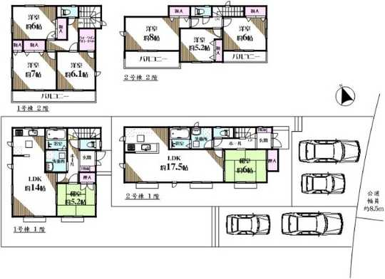
55,800,000 yen, 4LDK, 97.91 sq m
New Homes » Kanto » Kanagawa Prefecture » Aoba-ku, Yokohama City
 
| | Yokohama City, Kanagawa Prefecture, Aoba-ku, 神奈川県横浜市青葉区 |
| Denentoshi Tokyu "Fujigaoka" walk 14 minutes 東急田園都市線「藤が丘」歩14分 |
Price 価格 | | 55,800,000 yen 5580万円 | Floor plan 間取り | | 4LDK 4LDK | Units sold 販売戸数 | | 1 units 1戸 | Land area 土地面積 | | 154.68 sq m (measured) 154.68m2(実測) | Building area 建物面積 | | 97.91 sq m (measured) 97.91m2(実測) | Driveway burden-road 私道負担・道路 | | Nothing, Southeast 8.5m width (contact the road width 2.8m) 無、南東8.5m幅(接道幅2.8m) | Completion date 完成時期(築年月) | | December 2013 2013年12月 | Address 住所 | | Yokohama City, Kanagawa Prefecture, Aoba-ku, Umegaoka 神奈川県横浜市青葉区梅が丘 | Traffic 交通 | | Denentoshi Tokyu "Fujigaoka" walk 14 minutes Denentoshi Tokyu "Aobadai" walk 20 minutes 東急田園都市線「藤が丘」歩14分 東急田園都市線「青葉台」歩20分
| Person in charge 担当者より | | The person in charge Ishii Ryosuke 担当者石井 亮介 | Contact お問い合せ先 | | Sumitomo Real Estate Sales Co., Ltd. Tama Plaza business center TEL: 045-904-1551 Please inquire as "saw SUUMO (Sumo)" 住友不動産販売(株)たまプラーザ営業センターTEL:045-904-1551「SUUMO(スーモ)を見た」と問い合わせください | Building coverage, floor area ratio 建ぺい率・容積率 | | Fifty percent ・ 80% 50%・80% | Land of the right form 土地の権利形態 | | Ownership 所有権 | Structure and method of construction 構造・工法 | | Wooden 2-story 木造2階建 | Use district 用途地域 | | One low-rise 1種低層 | Other limitations その他制限事項 | | / Terrain: flat /地勢:平坦 | Overview and notices その他概要・特記事項 | | Contact: Ishii Ryosuke, Parking: car space 担当者:石井 亮介、駐車場:カースペース | Company profile 会社概要 | | <Mediation> Minister of Land, Infrastructure and Transport (11) No. 002077 (one company) Real Estate Association (Corporation) metropolitan area real estate Fair Trade Council member Sumitomo Real Estate Sales Co., Ltd. Tama Plaza business center Yubinbango225-0002 Yokohama City, Kanagawa Prefecture, Aoba-ku, Utsukushigaoka 5-1-1 AXIS'91 building the fourth floor <仲介>国土交通大臣(11)第002077号(一社)不動産協会会員 (公社)首都圏不動産公正取引協議会加盟住友不動産販売(株)たまプラーザ営業センター〒225-0002 神奈川県横浜市青葉区美しが丘5-1-1 AXIS'91ビル4階 |
Local appearance photo現地外観写真  Local (1)
現地(1)
 Floor plan
間取り図
Location
|