New Homes » Kanto » Kanagawa Prefecture » Aoba-ku, Yokohama City
 
| | Yokohama City, Kanagawa Prefecture, Aoba-ku, 神奈川県横浜市青葉区 |
| Denentoshi Tokyu "Azamino" walk 23 minutes 東急田園都市線「あざみ野」歩23分 |
| You can preview for a complete listing! Not have under hesitate to contact us 完成物件のため内覧可能です!お気軽にお問い合わせ下いませ |
| Parking two Allowed, LDK18 tatami mats or more, Facing south, System kitchen, Bathroom Dryer, Yang per good, All room storage, A quiet residential areaese-style room, Face-to-face kitchen, Toilet 2 places, Bathroom 1 tsubo or more, 2-story, South balcony, All living room flooring, Floor heating 駐車2台可、LDK18畳以上、南向き、システムキッチン、浴室乾燥機、陽当り良好、全居室収納、閑静な住宅地、和室、対面式キッチン、トイレ2ヶ所、浴室1坪以上、2階建、南面バルコニー、全居室フローリング、床暖房 |
Features pickup 特徴ピックアップ | | Parking two Allowed / LDK18 tatami mats or more / Facing south / System kitchen / Bathroom Dryer / Yang per good / All room storage / A quiet residential area / Japanese-style room / Face-to-face kitchen / Toilet 2 places / Bathroom 1 tsubo or more / 2-story / South balcony / All living room flooring / Floor heating 駐車2台可 /LDK18畳以上 /南向き /システムキッチン /浴室乾燥機 /陽当り良好 /全居室収納 /閑静な住宅地 /和室 /対面式キッチン /トイレ2ヶ所 /浴室1坪以上 /2階建 /南面バルコニー /全居室フローリング /床暖房 | Price 価格 | | 51,800,000 yen ~ 54,800,000 yen 5180万円 ~ 5480万円 | Floor plan 間取り | | 4LDK 4LDK | Units sold 販売戸数 | | 2 units 2戸 | Total units 総戸数 | | 2 units 2戸 | Land area 土地面積 | | 163.31 sq m ~ 182.65 sq m 163.31m2 ~ 182.65m2 | Building area 建物面積 | | 101.84 sq m ~ 101.85 sq m 101.84m2 ~ 101.85m2 | Driveway burden-road 私道負担・道路 | | Road width: 4.5m, Asphaltic pavement 道路幅:4.5m、アスファルト舗装 | Completion date 完成時期(築年月) | | 2013 early November 2013年11月上旬 | Address 住所 | | Yokohama City, Kanagawa Prefecture, Aoba-ku, Oba-cho 神奈川県横浜市青葉区大場町 | Traffic 交通 | | Denentoshi Tokyu "Azamino" walk 23 minutes 東急田園都市線「あざみ野」歩23分
| Related links 関連リンク | | [Related Sites of this company] 【この会社の関連サイト】 | Contact お問い合せ先 | | TEL: 045-482-5878 Please inquire as "saw SUUMO (Sumo)" TEL:045-482-5878「SUUMO(スーモ)を見た」と問い合わせください | Building coverage, floor area ratio 建ぺい率・容積率 | | Kenpei rate: 40%, Volume ratio: 80% 建ペい率:40%、容積率:80% | Time residents 入居時期 | | Consultation 相談 | Land of the right form 土地の権利形態 | | Ownership 所有権 | Structure and method of construction 構造・工法 | | 2-story wooden 木造2階建て | Use district 用途地域 | | One low-rise 1種低層 | Land category 地目 | | Residential land 宅地 | Overview and notices その他概要・特記事項 | | Building confirmation number: the H25 building certification No. KBI02091, 02092 No. 建築確認番号:第H25確認建築KBI02091号、02092号 | Company profile 会社概要 | | <Mediation> Governor of Kanagawa Prefecture (1) Article 027 006 issue (stock) Victory Home Yokohama branch Yubinbango224-0041 Yokohama, Kanagawa Prefecture Tsuzuki-ku Nakamachidai 1-2-20 Frontier building 502 <仲介>神奈川県知事(1)第027006号(株)ビクトリーホーム横浜支店〒224-0041 神奈川県横浜市都筑区仲町台1-2-20 フロンティアビル502 |
Local appearance photo現地外観写真  1 Building ・ Local (12 May 2013) Shooting
1号棟・現地(2013年12月)撮影
Livingリビング  Local (12 May 2013) Shooting
現地(2013年12月)撮影
Bathroom浴室  Indoor (12 May 2013) Shooting
室内(2013年12月)撮影
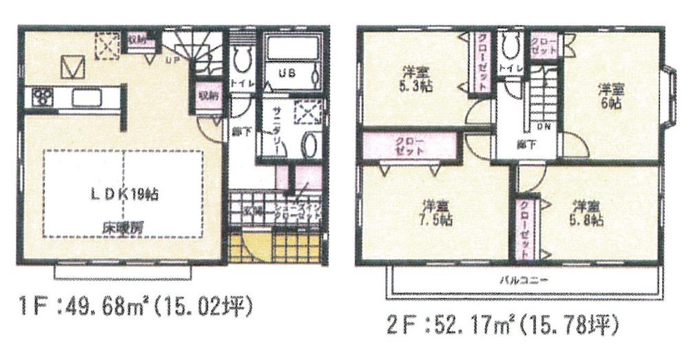
Floor plan間取り図  (1), Price 54,800,000 yen, 4LDK, Land area 163.31 sq m , Building area 101.84 sq m
(1)、価格5480万円、4LDK、土地面積163.31m2、建物面積101.84m2
Local appearance photo現地外観写真  Building 2 ・ Local (12 May 2013) Shooting
2号棟・現地(2013年12月)撮影
Kitchenキッチン  Indoor (12 May 2013) Shooting
室内(2013年12月)撮影
Local photos, including front road前面道路含む現地写真  Indoor (12 May 2013) Shooting
室内(2013年12月)撮影
 The entire compartment Figure
全体区画図
Floor plan間取り図  (2), Price 51,800,000 yen, 4LDK, Land area 182.65 sq m , Building area 101.85 sq m
(2)、価格5180万円、4LDK、土地面積182.65m2、建物面積101.85m2
Location
|