New Homes » Kanto » Kanagawa Prefecture » Aoba-ku, Yokohama City
 
| | Yokohama City, Kanagawa Prefecture, Aoba-ku, 神奈川県横浜市青葉区 |
| Denentoshi Tokyu "Azamino" walk 12 minutes 東急田園都市線「あざみ野」歩12分 |
Price 価格 | | 78,800,000 yen 7880万円 | Floor plan 間取り | | 3LDK 3LDK | Units sold 販売戸数 | | 1 units 1戸 | Land area 土地面積 | | 129.14 sq m (measured) 129.14m2(実測) | Building area 建物面積 | | 101.02 sq m (measured) 101.02m2(実測) | Driveway burden-road 私道負担・道路 | | Nothing 無 | Completion date 完成時期(築年月) | | February 2014 2014年2月 | Address 住所 | | Yokohama City, Kanagawa Prefecture, Aoba-ku, Azaminominami 4 神奈川県横浜市青葉区あざみ野南4 | Traffic 交通 | | Denentoshi Tokyu "Azamino" walk 12 minutes Denentoshi Tokyu "Eda" walk 13 minutes 東急田園都市線「あざみ野」歩12分 東急田園都市線「江田」歩13分
| Contact お問い合せ先 | | TEL: 0800-805-6236 [Toll free] mobile phone ・ Also available from PHS Caller ID is not notified Please contact the "saw SUUMO (Sumo)" If it does not lead, If the real estate company TEL:0800-805-6236【通話料無料】携帯電話・PHSからもご利用いただけます 発信者番号は通知されません 「SUUMO(スーモ)を見た」と問い合わせください つながらない方、不動産会社の方は
| Building coverage, floor area ratio 建ぺい率・容積率 | | 40% ・ 80% 40%・80% | Time residents 入居時期 | | Consultation 相談 | Land of the right form 土地の権利形態 | | Ownership 所有権 | Structure and method of construction 構造・工法 | | Wooden 2-story 木造2階建 | Use district 用途地域 | | One low-rise 1種低層 | Overview and notices その他概要・特記事項 | | Facilities: Public Water Supply, This sewage, City gas, Building confirmation number: No. 02323, Parking: car space 設備:公営水道、本下水、都市ガス、建築確認番号:02323号、駐車場:カースペース | Company profile 会社概要 | | <Mediation> Minister of Land, Infrastructure and Transport (3) The 006,183 No. housing Information Center Azamino shop Seongnam Construction (Ltd.) Yubinbango225-0005 Kanagawa Prefecture, Aoba-ku, Yokohama City Ekoda 3-6-1 <仲介>国土交通大臣(3)第006183号住宅情報館 あざみ野店城南建設(株)〒225-0005 神奈川県横浜市青葉区荏子田3-6-1 |
Other localその他現地  Local Photos
現地写真
 Local Photos
現地写真
Local photos, including front road前面道路含む現地写真  Frontal road
前面道路
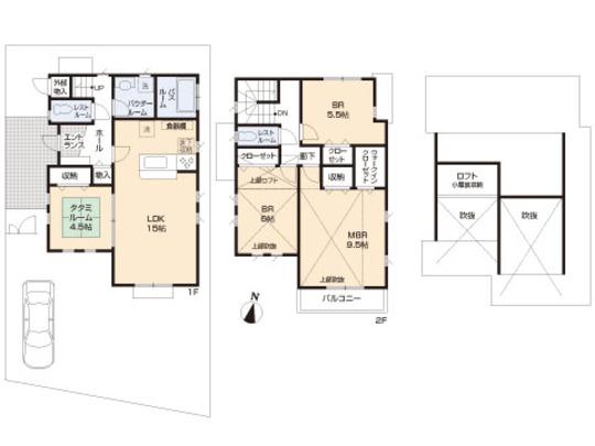
Floor plan間取り図  78,800,000 yen, 3LDK, Land area 129.14 sq m , Building area 101.02 sq m floor plan
7880万円、3LDK、土地面積129.14m2、建物面積101.02m2 間取り図
Otherその他  Frontal road
前面道路
 Denentoshi Azamino Station appearance
田園都市線 あざみ野駅外観
Location
|