New Homes » Kanto » Kanagawa Prefecture » Aoba-ku, Yokohama City
 
| | Yokohama City, Kanagawa Prefecture, Aoba-ku, 神奈川県横浜市青葉区 |
| Denentoshi Tokyu "Tana" walk 13 minutes 東急田園都市線「田奈」歩13分 |
| ◆ Corner lot Exposure to the sun ・ Ventilation good 3 face lighting Flat terrain ◆ ◆ 2-story large 4LDK + shoes cloak ◆ ◆ Car space two possible ◆ ◆ A quiet residential area Well-equipped ◆ ◆角地 陽当り・通風良好 3面採光 平坦地◆◆2階建て大型4LDK+シューズクローク◆◆カースペース2台可能◆◆閑静な住宅街 充実の設備◆ |
| Corner lot, A quiet residential area, 2 along the line more accessible, Flat terrain, Flat to the station, Or more before road 6m, Construction housing performance with evaluation, Long-term high-quality housing, Parking two Allowed, System kitchen, Bathroom Dryer, Yang per good, All room storage, LDK15 tatami mats or moreese-style room, Shaping land, Washbasin with shower, Face-to-face kitchen, Wide balcony, 3 face lighting, Toilet 2 places, Bathroom 1 tsubo or more, 2-story, South balcony, Double-glazing, Zenshitsuminami direction, Warm water washing toilet seat, Nantei, Underfloor Storage, The window in the bathroom, TV monitor interphone, Leafy residential area, Ventilation good, Floor heating 角地、閑静な住宅地、2沿線以上利用可、平坦地、駅まで平坦、前道6m以上、建設住宅性能評価付、長期優良住宅、駐車2台可、システムキッチン、浴室乾燥機、陽当り良好、全居室収納、LDK15畳以上、和室、整形地、シャワー付洗面台、対面式キッチン、ワイドバルコニー、3面採光、トイレ2ヶ所、浴室1坪以上、2階建、南面バルコニー、複層ガラス、全室南向き、温水洗浄便座、南庭、床下収納、浴室に窓、TVモニタ付インターホン、緑豊かな住宅地、通風良好、床暖房 |
Features pickup 特徴ピックアップ | | Construction housing performance with evaluation / Long-term high-quality housing / Parking two Allowed / 2 along the line more accessible / System kitchen / Bathroom Dryer / Yang per good / All room storage / Flat to the station / A quiet residential area / LDK15 tatami mats or more / Or more before road 6m / Corner lot / Japanese-style room / Shaping land / Washbasin with shower / Face-to-face kitchen / Wide balcony / 3 face lighting / Toilet 2 places / Bathroom 1 tsubo or more / 2-story / South balcony / Double-glazing / Zenshitsuminami direction / Warm water washing toilet seat / Nantei / Underfloor Storage / The window in the bathroom / TV monitor interphone / Leafy residential area / Ventilation good / Flat terrain / Floor heating 建設住宅性能評価付 /長期優良住宅 /駐車2台可 /2沿線以上利用可 /システムキッチン /浴室乾燥機 /陽当り良好 /全居室収納 /駅まで平坦 /閑静な住宅地 /LDK15畳以上 /前道6m以上 /角地 /和室 /整形地 /シャワー付洗面台 /対面式キッチン /ワイドバルコニー /3面採光 /トイレ2ヶ所 /浴室1坪以上 /2階建 /南面バルコニー /複層ガラス /全室南向き /温水洗浄便座 /南庭 /床下収納 /浴室に窓 /TVモニタ付インターホン /緑豊かな住宅地 /通風良好 /平坦地 /床暖房 | Event information イベント情報 | | Local tours (Please be sure to ask in advance) schedule / Now open 現地見学会(事前に必ずお問い合わせください)日程/公開中 | Price 価格 | | 59,800,000 yen 5980万円 | Floor plan 間取り | | 4LDK 4LDK | Units sold 販売戸数 | | 1 units 1戸 | Total units 総戸数 | | 1 units 1戸 | Land area 土地面積 | | 148.73 sq m (measured) 148.73m2(実測) | Building area 建物面積 | | 101.43 sq m (measured) 101.43m2(実測) | Driveway burden-road 私道負担・道路 | | Nothing, East 6.5m width, North 4.5m width 無、東6.5m幅、北4.5m幅 | Completion date 完成時期(築年月) | | January 2014 2014年1月 | Address 住所 | | Yokohama City, Kanagawa Prefecture, Aoba-ku, Enokigaoka 神奈川県横浜市青葉区榎が丘 | Traffic 交通 | | Denentoshi Tokyu "Tana" walk 13 minutes Denentoshi Tokyu "Aobadai" walk 11 minutes Denentoshi Tokyu "Fujigaoka" walk 23 minutes 東急田園都市線「田奈」歩13分 東急田園都市線「青葉台」歩11分 東急田園都市線「藤が丘」歩23分
| Related links 関連リンク | | [Related Sites of this company] 【この会社の関連サイト】 | Person in charge 担当者より | | Person in charge of real-estate and building Tokuyama Hitoshi tree Age: The father of the 30's two children. It is always the customer's point of view, We will carry out suggestions of looking important My Home. Your house hunting can become a comfortable stay with peace of mind, Patiently, We will be happy to help in all sincerity. Please feel free to contact us. 担当者宅建徳山 仁樹年齢:30代二児の父親です。常にお客様の目線で、大切なマイホーム探しのご提案をさせていただきます。安心して快適にお過ごしになれるお家探しを、根気よく、誠心誠意お手伝いさせていただきます。お気軽にご相談下さい。 | Contact お問い合せ先 | | TEL: 0800-603-1899 [Toll free] mobile phone ・ Also available from PHS Caller ID is not notified Please contact the "saw SUUMO (Sumo)" If it does not lead, If the real estate company TEL:0800-603-1899【通話料無料】携帯電話・PHSからもご利用いただけます 発信者番号は通知されません 「SUUMO(スーモ)を見た」と問い合わせください つながらない方、不動産会社の方は
| Building coverage, floor area ratio 建ぺい率・容積率 | | 40% ・ 80% 40%・80% | Time residents 入居時期 | | February 2014 schedule 2014年2月予定 | Land of the right form 土地の権利形態 | | Ownership 所有権 | Structure and method of construction 構造・工法 | | Wooden 2-story 木造2階建 | Use district 用途地域 | | One low-rise 1種低層 | Overview and notices その他概要・特記事項 | | Contact: Tokuyama Jin Ju, Facilities: Public Water Supply, This sewage, City gas, Building confirmation number: No. HPA-13-04450-1, Parking: car space 担当者:徳山 仁樹、設備:公営水道、本下水、都市ガス、建築確認番号:第HPA-13-04450-1号、駐車場:カースペース | Company profile 会社概要 | | <Mediation> Minister of Land, Infrastructure and Transport (2) No. 007,179 (one company) Real Estate Association (Corporation) metropolitan area real estate Fair Trade Council member (Ltd.) Benhausu business Lesson 2 Yubinbango220-0003 Kanagawa Prefecture, Nishi-ku, Yokohama-shi Kusu, Mie 10-1 <仲介>国土交通大臣(2)第007179号(一社)不動産協会会員 (公社)首都圏不動産公正取引協議会加盟(株)ベンハウス営業第2課〒220-0003 神奈川県横浜市西区楠町10-1 |
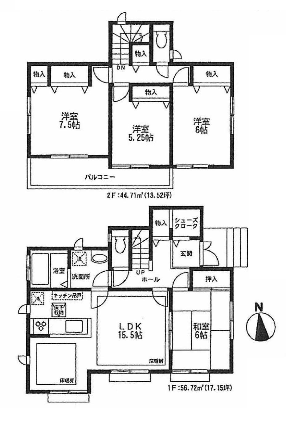
Floor plan間取り図  59,800,000 yen, 4LDK, Land area 148.73 sq m , Building area 101.43 sq m floor plan
5980万円、4LDK、土地面積148.73m2、建物面積101.43m2 間取り図
Compartment figure区画図  59,800,000 yen, 4LDK, Land area 148.73 sq m , Building area 101.43 sq m layout
5980万円、4LDK、土地面積148.73m2、建物面積101.43m2 配置図
Local appearance photo現地外観写真  Local (12 May 2013) Shooting
現地(2013年12月)撮影
 Local (12 May 2013) Shooting
現地(2013年12月)撮影
 Local (12 May 2013) Shooting
現地(2013年12月)撮影
 Local (12 May 2013) Shooting
現地(2013年12月)撮影
Station駅  Aobadai Station
青葉台駅
Primary school小学校  Enokigaoka elementary school
榎が丘小学校
Junior high school中学校  Aobadai junior high school
青葉台中学校
Local photos, including front road前面道路含む現地写真  Local (12 May 2013) Shooting
現地(2013年12月)撮影
 Local (12 May 2013) Shooting
現地(2013年12月)撮影
 Local (12 May 2013) Shooting
現地(2013年12月)撮影
Location
|